Bildegalleri

Velkommen til Nordraaks vei 54B presentert av Mona Zomlot v/EIE eiendomsmegling avdeling Sandvika
Solgt
Romslig enebolig over 3 plan med altan, kjellerstue, råloft og garasje - attraktiv beliggenhet på Stabekk
Prisantydning12 000 000 kr
Nøkkelinfo
- Boligtype
- Enebolig
- Eieform
- Eier (Selveier)
- Soverom
- 2
- Internt bruksareal
- 162 m² (BRA-i)
- Bruksareal
- 201 m²
- Eksternt bruksareal
- 39 m² (BRA-e)
- Balkong/Terrasse
- 14 m² (TBA)
- Etasje
- 3
- Byggeår
- 1958
- Energimerking
- G - Rød
- Tomteareal
- 920 m² (eiet)
Fasiliteter
Barnevennlig
Balkong/Terrasse
Garasje/P-plass
Offentlig vann/kloakk
Parkett
Peis/Ildsted
Turterreng
Sentralt
Lademulighet
Om boligen
Velkommen til Nordraaks vei 54B, presentert av Mona Zomlot v/EIE Sandvika.
Dette er en romslig enebolig over tre plan med mange muligheter, ideell for deg som ønsker å forme ditt eget drømmehjem. Boligen er godt tatt vare på, men har i hovedsak en eldre standard.
Eiendommen ligger i et attraktivt og barnevennlig område på Stabekk med kort avstand til skoler, barnehager, kollektivtransport og et bredt utvalg av butikker.
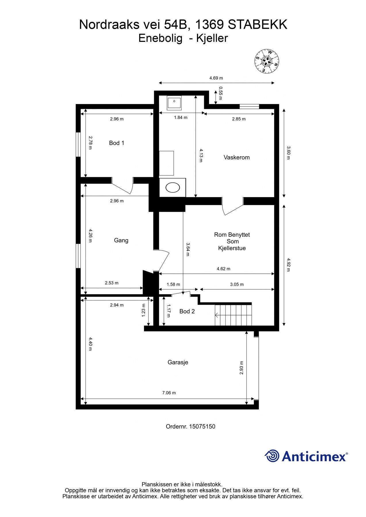
Planløsningen er familievennlig med entré, bad, separat toalett, stue med utgang til solrik altan, kjøkken og to soverom i første etasje. I kjelleren er det gang, vaskerom, kjellerstue og to boder som gir praktiske oppbevaringsmuligheter. Loftsetasjen har to rom som i dag benyttes som soverom, samt et råloft.
Boligen disponerer garasje i kjeller på 27 kvm samt en frittliggende garasje på ca. 12 kvm.
Dette er en romslig enebolig over tre plan med mange muligheter, ideell for deg som ønsker å forme ditt eget drømmehjem. Boligen er godt tatt vare på, men har i hovedsak en eldre standard.
Eiendommen ligger i et attraktivt og barnevennlig område på Stabekk med kort avstand til skoler, barnehager, kollektivtransport og et bredt utvalg av butikker.
Planløsningen er familievennlig med entré, bad, separat toalett, stue med utgang til solrik altan, kjøkken og to soverom i første etasje. I kjelleren er det gang, vaskerom, kjellerstue og to boder som gir praktiske oppbevaringsmuligheter. Loftsetasjen har to rom som i dag benyttes som soverom, samt et råloft.
Boligen disponerer garasje i kjeller på 27 kvm samt en frittliggende garasje på ca. 12 kvm.
NB: Knappen for å vise hele beskrivelsen har kun en visuell effekt.
NB: Knappen for å vise hele beskrivelsen har kun en visuell effekt.
Salgsoppgaven beskriver vesentlig og lovpålagt informasjon om eiendommen
Se komplett salgsoppgaveNyttige lenker
Nærområdet
EIE eiendomsmegling Bærum
Annonseinformasjon
| FINN-kode | 425461513 |
|---|---|
| Sist endret | 25. sep. 2025 10:50 |
| Referanse | 36251537 |
Annonsene kan være mangelfulle i forhold til lovpålagt opplysningsplikt. Før bindende avtale inngås oppfordres interessenter til å innhente komplett informasjon fra meglerforetaket, selger eller utleier.










































































