Bildegalleri

Velkommen til leilighet på Skogsåsen 4 med en unik beliggenhet.
Solgt
Skogen som nærmeste nabo på Myrvoll
Lekker og usjenert 4-roms hjørne-/endeleilighet fra 2023. To uteplasser og garasjeplass med lader. Varmtv./fyring inkl.
Prisantydning6 570 000 kr
Nøkkelinfo
- Boligtype
- Leilighet
- Eieform
- Eier (Selveier)
- Soverom
- 3
- Internt bruksareal
- 91 m² (BRA-i)
- Bruksareal
- 96 m²
- Eksternt bruksareal
- 5 m² (BRA-e)
- Balkong/Terrasse
- 29 m² (TBA)
- Etasje
- 1
- Byggeår
- 2023
- Energimerking
- A - Rød
- Rom
- 4
- Tomteareal
- 6 625 m² (eiet)
Fasiliteter
Balkong/Terrasse
Barnevennlig
Bredbåndstilknytning
Garasje/P-plass
Golfbane
Heis
Kjæledyr tillatt
Ingen gjenboere
Offentlig vann/kloakk
Parkett
Rolig
Sentralt
Vaktmester-/vektertjeneste
Turterreng
Lademulighet
Balansert ventilasjon
Om boligen
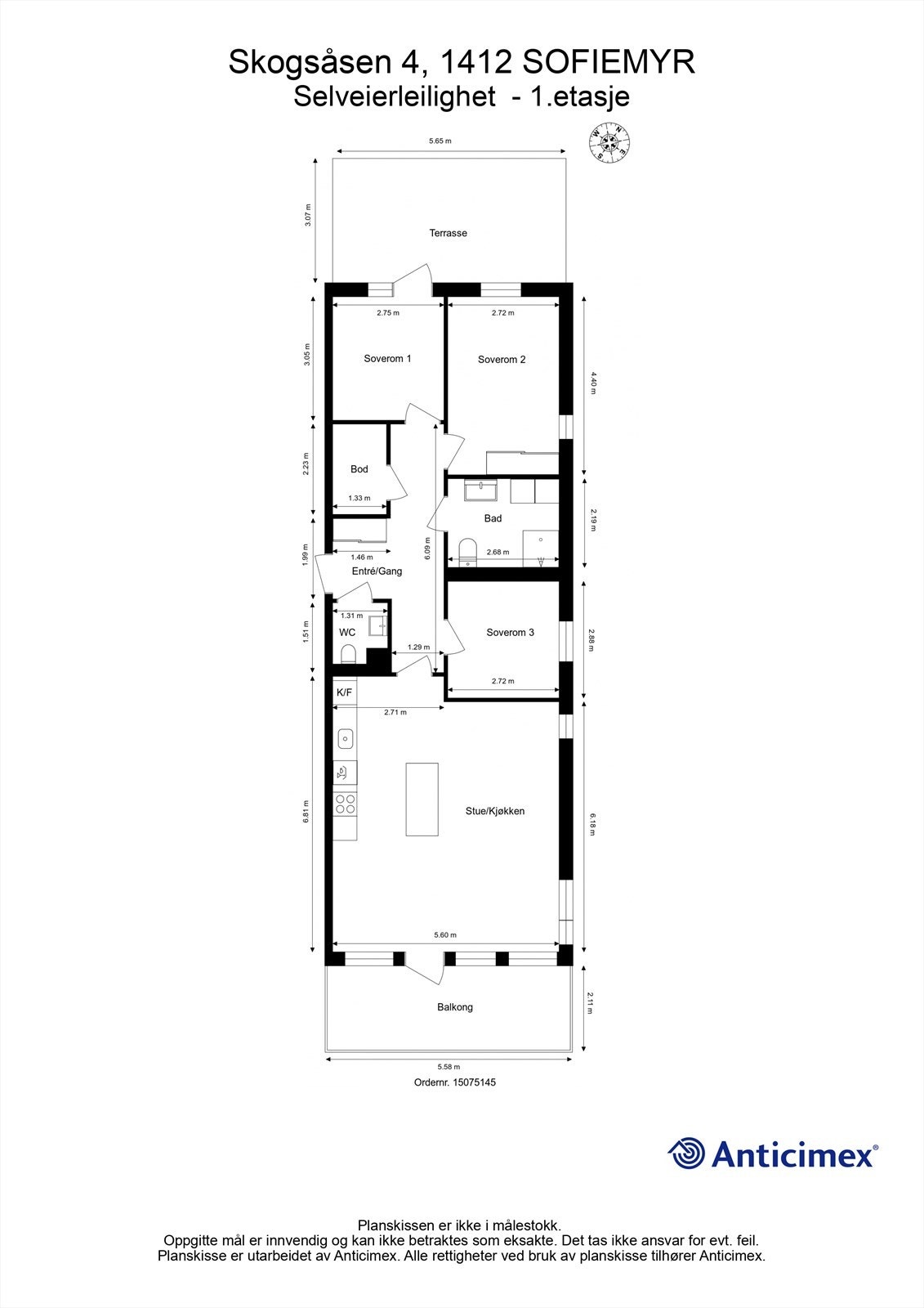
Denne moderne 4-roms selveierleiligheten ligger i et rolig og barnevennlig nabolag, med umiddelbar tilgang til flotte turmuligheter i marka. Med kort gangavstand til både buss og tog, er hverdagen enkel. I nærheten finner du Myrvoll torg, som har alt du trenger: Kiwi, apotek og et koselig bakeri.
Den har en praktisk entré med skyvedørsgarderobe og en lys stue/kjøkken-løsning med store vinduer og utgang til en romslig balkong på 12 kvm. Kjøkkenet fra Marbodal er stilrent og godt utstyrt med integrerte hvitevarer og kjøkkenøy. Det er tre gode soverom, et lekkert bad med dusjhjørne og plass til vaskemaskin og tørketrommel, i tillegg til separat WC. Utgang fra et soverom til 17 kvm terrasse. Leiligheten har en praktisk innvendig bod og utvendig bod på 5 kvm
Ca. 2,5 år igjen av nybygg garanti
Den har en praktisk entré med skyvedørsgarderobe og en lys stue/kjøkken-løsning med store vinduer og utgang til en romslig balkong på 12 kvm. Kjøkkenet fra Marbodal er stilrent og godt utstyrt med integrerte hvitevarer og kjøkkenøy. Det er tre gode soverom, et lekkert bad med dusjhjørne og plass til vaskemaskin og tørketrommel, i tillegg til separat WC. Utgang fra et soverom til 17 kvm terrasse. Leiligheten har en praktisk innvendig bod og utvendig bod på 5 kvm
Ca. 2,5 år igjen av nybygg garanti
NB: Knappen for å vise hele beskrivelsen har kun en visuell effekt.
NB: Knappen for å vise hele beskrivelsen har kun en visuell effekt.
Salgsoppgaven beskriver vesentlig og lovpålagt informasjon om eiendommen
Se komplett salgsoppgaveNærområdet
Attentus Eiendomsmegling
Annonseinformasjon
| FINN-kode | 425571521 |
|---|---|
| Sist endret | 16. des. 2025 09:30 |
| Referanse | ATE2.2588 |
Annonsene kan være mangelfulle i forhold til lovpålagt opplysningsplikt. Før bindende avtale inngås oppfordres interessenter til å innhente komplett informasjon fra meglerforetaket, selger eller utleier.

























































