Bildegalleri

Velkommen til en nyere og fin familiebolig i Tunlandvegen 35!
Lys & attraktiv tomannsbolig fra 2021 med store uteplasser, hage & dobbelgarasje | 3 sov, 2 bad + vaskerom | Sportsbod
Nøkkelinfo
- Boligtype
- Tomannsbolig
- Eieform
- Eier (Selveier)
- Soverom
- 3
- Internt bruksareal
- 123 m² (BRA-i)
- Bruksareal
- 128 m²
- Eksternt bruksareal
- 5 m² (BRA-e)
- Balkong/Terrasse
- 61 m² (TBA)
- Byggeår
- 2021
- Energimerking
- B - Oransje
- Rom
- 4
- Tomteareal
- 437 m² (eiet)
Fasiliteter
Om boligen
Velkommen til en hyggelig halvpart tomannsbolig i et nyere, barnevennlig nabolag på Dal. Dette er et trygt og fint sted å bo for barnefamilier, med gangavstand til skole, barnehage, idrettsanlegg, butikk, togstasjon og buss. Området byr også på fine turmuligheter sommer som vinter. Kun 15 min til Gardermoen og Jessheim sentrum.
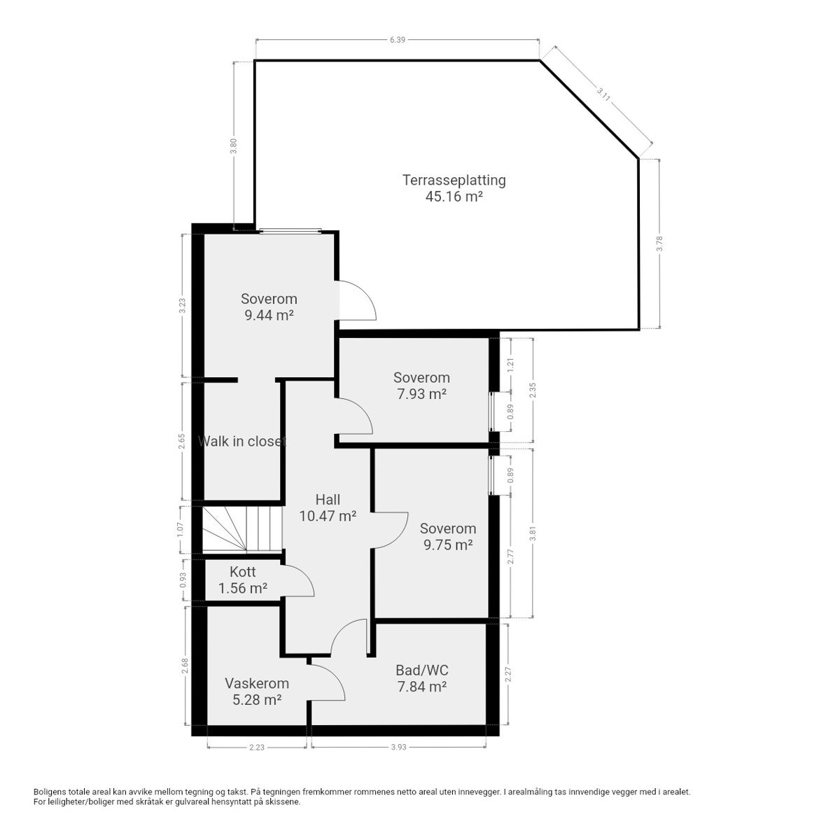
Huset ble oppført i 2021 og har god løsning fordelt på to plan, tilpasset det moderne familielivet. I 1.etg ligger åpen stue og kjøkken med peis, romslig entré og bad. I underetasjen er det 3 soverom (ett med walk-in), bad, separat vaskerom og kott.
Livet utendørs kan nytes på store og solrike uteplasser, med trygg plass til lek og avslapning. Dobbelgarasje m/EL og utebod.
Boligen har gjennomgående god standard. Her kan du flytte rett inn!
Salgsoppgaven beskriver vesentlig og lovpålagt informasjon om eiendommen
Se komplett salgsoppgaveNyttige lenker
Nærområdet
Proaktiv Eiendomsmegling Lørenskog
Annonseinformasjon
| FINN-kode | 425817435 |
|---|---|
| Sist endret | 28. sep. 2025 06:59 |
| Referanse | 63250141 |
Annonsene kan være mangelfulle i forhold til lovpålagt opplysningsplikt. Før bindende avtale inngås oppfordres interessenter til å innhente komplett informasjon fra meglerforetaket, selger eller utleier.




























































