Bildegalleri

Lekker og gjennomgående 3-roms loftsleilighet med rolig og sentral beliggenhet i kanskje Vikas roligste gate.
Solgt
VIKA / FROGNER
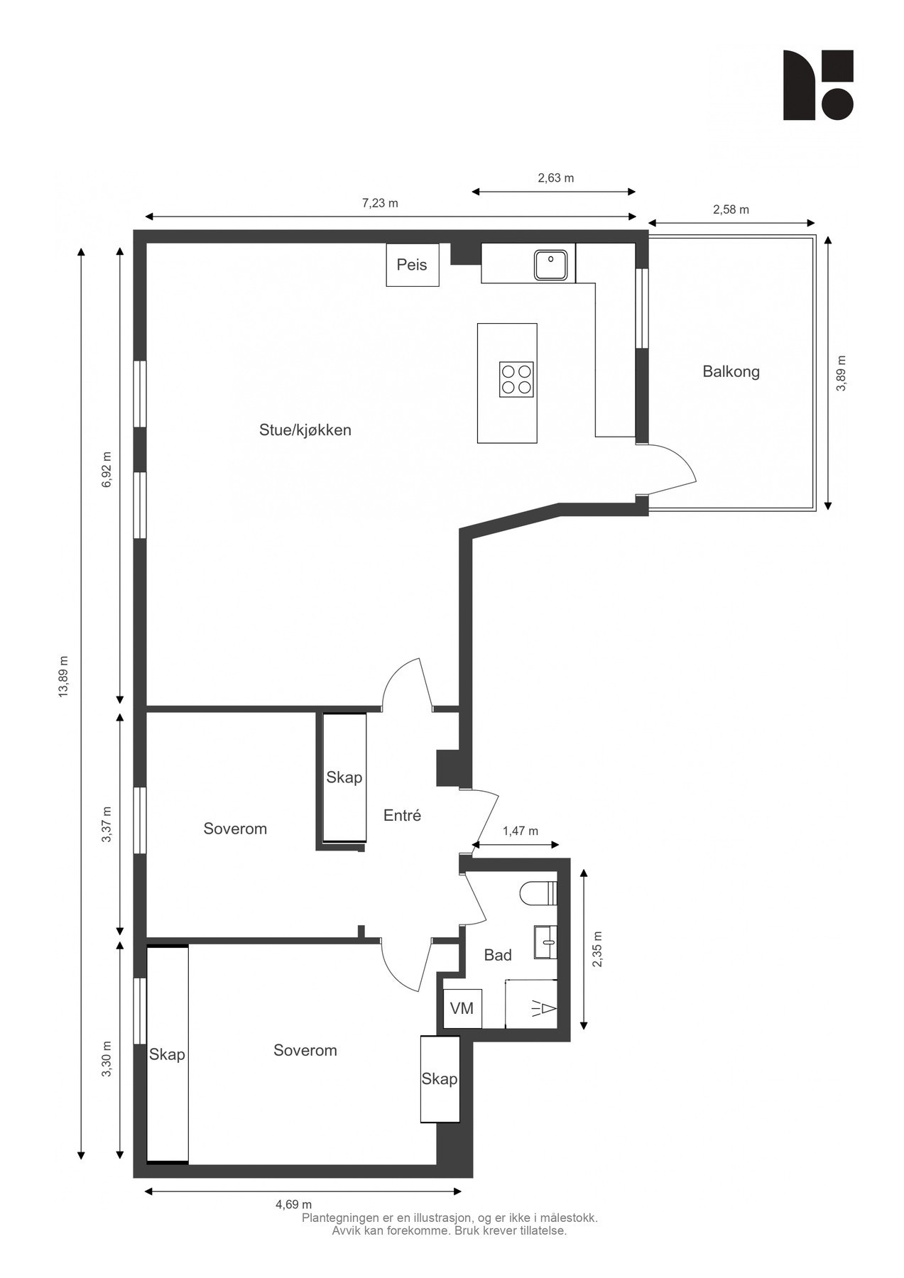
Lekker 3-roms toppleilighet med gulvareal på 81m2. Solrik takterrasse på 10m2. Peisovn - varmtv. ink. - Ingen dok.avgift
Prisantydning8 150 000 kr
Nøkkelinfo
- Boligtype
- Leilighet
- Eieform
- Andel
- Soverom
- 2
- Internt bruksareal
- 69 m² (BRA-i)
- Bruksareal
- 77 m²
- Eksternt bruksareal
- 8 m² (BRA-e)
- Balkong/Terrasse
- 10 m² (TBA)
- Etasje
- 5
- Byggeår
- 1895
- Energimerking
- G - Oransje
- Rom
- 3
- Tomteareal
- 512 m² (eiet)
Fasiliteter
Barnevennlig
Balkong/Terrasse
Kabel-TV
Offentlig vann/kloakk
Ingen gjenboere
Peis/Ildsted
Utsikt
Sentralt
Moderne
Rolig
Om boligen
Lekker og gjennomgående 3-roms loftsleilighet med rolig og sentral beliggenhet i Vikas kanskje roligste gate. Leiligheten har et gulvareal på 81m² og holder gjennomgående god standard hvor man kombinerer moderne løsninger med rustikke detaljer som synlige takbjelker og en eksponert teglsteinsvegg. Med takhøyde på opptil 3,69 meter, rikelig lysinnslipp og en privat vestvendt takterrasse, får du her en unik bolig som både er luftig og stilfull.
- Eksklusiv Svane kjøkken og skapinnredning
- Peis, vinduer, balkongdør og tak fra 2024
- Solrik terrasse på 10m²
- Takhøyde på opptil 3.69m
- IN-ordning som reduserer felleskostnadene til 3407,-
- Varmtvann inkl. i felleskost.
- Ingen dok.avgift
- 2 boder
- Stor felles takterrasse, lett tilgjengelig fra leiligheten
- Kort vei til Aker Brygge, Tjuvholmen, Solli og Nasjonalteateret
- Eksklusiv Svane kjøkken og skapinnredning
- Peis, vinduer, balkongdør og tak fra 2024
- Solrik terrasse på 10m²
- Takhøyde på opptil 3.69m
- IN-ordning som reduserer felleskostnadene til 3407,-
- Varmtvann inkl. i felleskost.
- Ingen dok.avgift
- 2 boder
- Stor felles takterrasse, lett tilgjengelig fra leiligheten
- Kort vei til Aker Brygge, Tjuvholmen, Solli og Nasjonalteateret
NB: Knappen for å vise hele beskrivelsen har kun en visuell effekt.
NB: Knappen for å vise hele beskrivelsen har kun en visuell effekt.
Salgsoppgaven beskriver vesentlig og lovpålagt informasjon om eiendommen
Se komplett salgsoppgaveNyttige lenker
Nærområdet
EIE eiendomsmegling Røa, Skøyen og Ullern
Annonseinformasjon
| FINN-kode | 426679794 |
|---|---|
| Sist endret | 14. des. 2025 12:04 |
| Referanse | 50250338 |
Annonsene kan være mangelfulle i forhold til lovpålagt opplysningsplikt. Før bindende avtale inngås oppfordres interessenter til å innhente komplett informasjon fra meglerforetaket, selger eller utleier.



















































