Bildegalleri

Velkommen til Ulsholtveien 4G - Nå kan denne drømmeboligen med en fantastisk utsikt bli din!
Solgt
ROLIG OG BARNEVENNLIG PÅ GAMLE FURUSET
Innholdsrikt og påkostet rekkehus med fantastiske solforhold, stor markterrasse og vidstrakt utsikt - Garasjeplass
Prisantydning6 300 000 kr
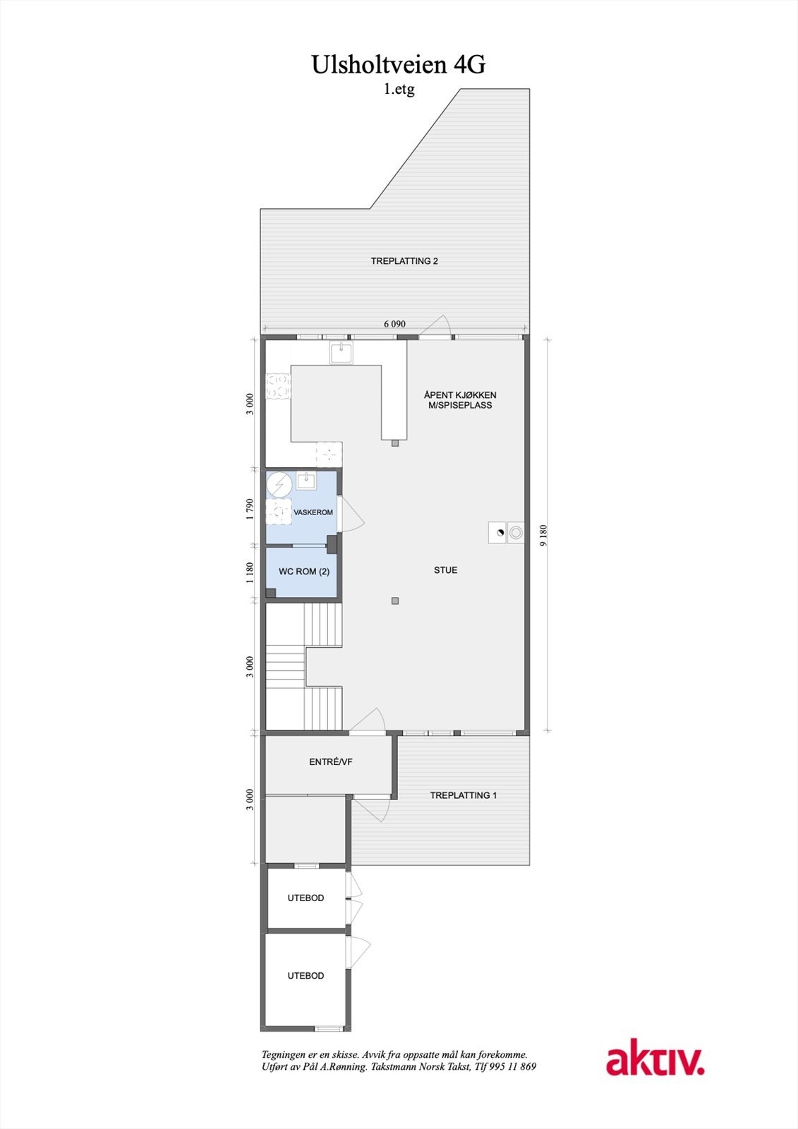
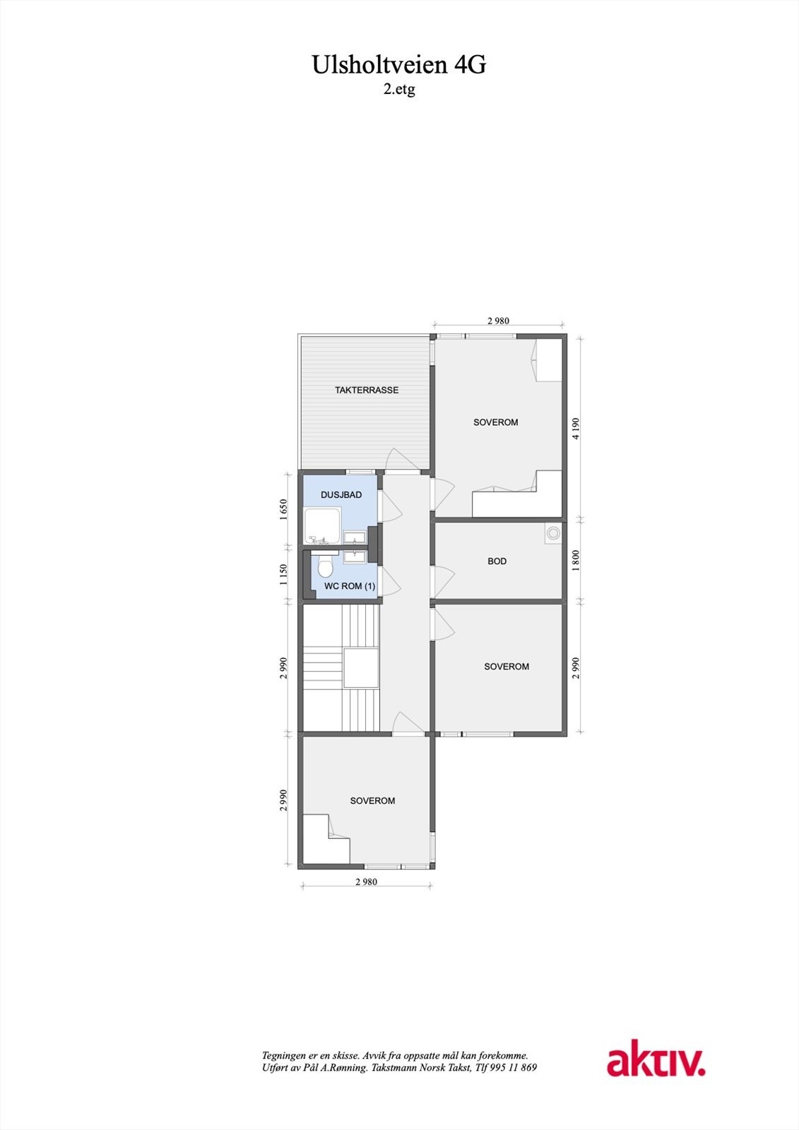
Nøkkelinfo
- Boligtype
- Rekkehus
- Eieform
- Andel
- Soverom
- 3
- Internt bruksareal
- 118 m² (BRA-i)
- Bruksareal
- 126 m²
- Eksternt bruksareal
- 8 m² (BRA-e)
- Balkong/Terrasse
- 9 m² (TBA)
- Etasje
- 2
- Byggeår
- 1978
- Energimerking
- F - Rød
- Rom
- 4
- Tomt
- Eiet
Fasiliteter
Takterrasse
Balkong/Terrasse
Barnevennlig
Bredbåndstilknytning
Garasje/P-plass
Hage
Kjæledyr tillatt
Offentlig vann/kloakk
Peis/Ildsted
Rolig
Sentralt
Utsikt
Vaktmester-/vektertjeneste
Lademulighet
Om boligen
Drømmer du om å bo i et nabolag hvor barna trygt kan vokse opp med gangavstand til både skole og barnehage? Landlig og stille, men likevel med kort reisevei til Oslo sentrum?
Det moderne og stilfulle rekkehuset vi nå selger har mange kvaliteter du vil sette pris på i hverdagen. Dette er et hjem inspirert av den nordiske stilen, med fokus på høy bokvalitet, god arealutnyttelse og smarte innredningløsninger. Beliggende i utsiktsrekka har man også en av borettslagets aller beste beliggenheter. Ute på de solrike terrassene kan både store og små få utfolde seg fritt.
- Sosial stue med åpen kjøkkenløsning
- Lekker peis
- Bad og v.rom
- Solrike uteplasser med gode solforhold.
- Garasjeplass
- Gangavst. til kollektivt - både buss og tog
- "ALT" i nærheten
Det moderne og stilfulle rekkehuset vi nå selger har mange kvaliteter du vil sette pris på i hverdagen. Dette er et hjem inspirert av den nordiske stilen, med fokus på høy bokvalitet, god arealutnyttelse og smarte innredningløsninger. Beliggende i utsiktsrekka har man også en av borettslagets aller beste beliggenheter. Ute på de solrike terrassene kan både store og små få utfolde seg fritt.
- Sosial stue med åpen kjøkkenløsning
- Lekker peis
- Bad og v.rom
- Solrike uteplasser med gode solforhold.
- Garasjeplass
- Gangavst. til kollektivt - både buss og tog
- "ALT" i nærheten
NB: Knappen for å vise hele beskrivelsen har kun en visuell effekt.
NB: Knappen for å vise hele beskrivelsen har kun en visuell effekt.
Salgsoppgaven beskriver vesentlig og lovpålagt informasjon om eiendommen
Se komplett salgsoppgaveNærområdet
Aktiv Gamle Oslo/Bjørvika
Prisstatistikk
Ulsholtveien 4G
4 459 klikk
på annonsen
54 826 kr
prisantydning per kvadratmeter
Prisfordeling
Pris per m² ligger 1 826 kr over snittet for rekkehus i Furuset.
Grafen viser antall rekkehus solgt i Furuset siste året fordelt på pris per m² - totalt 61 rekkehus
Antall boliger
Kvadratmeterpris tilsvarer prisantydning pluss fellesgjeld per kvadratmeter (p-rom eller BRA-i). Prisene i grafen er avrundet til nærmeste 1000 kr.
Annonseinformasjon
| FINN-kode | 426699872 |
|---|---|
| Sist endret | 26. sep. 2025 19:14 |
| Referanse | 1002250281 |
Annonsene kan være mangelfulle i forhold til lovpålagt opplysningsplikt. Før bindende avtale inngås oppfordres interessenter til å innhente komplett informasjon fra meglerforetaket, selger eller utleier.










































