Bildegalleri

Velkommen til en nyere 3-roms hjørneleilighet, beliggende i attraktive Harbitz Torg
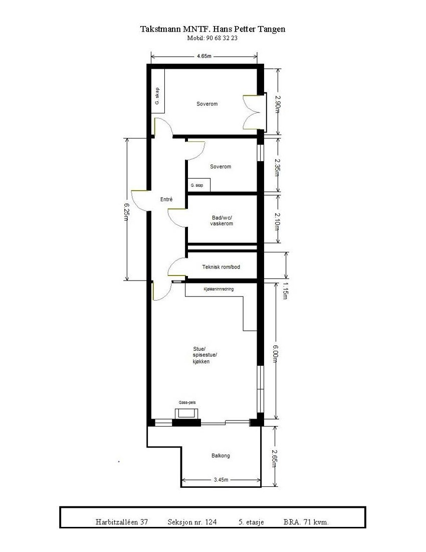
Moderne og lekker 3-r hjørneleilighet i 5 etg - Solrik balkong 10 kvm - Garasje - VV/fyring - Heis - Felles takterrasse
Nøkkelinfo
- Boligtype
- Leilighet
- Eieform
- Eier (Selveier)
- Soverom
- 2
- Internt bruksareal
- 71 m² (BRA-i)
- Bruksareal
- 76 m²
- Eksternt bruksareal
- 5 m² (BRA-e)
- Balkong/Terrasse
- 10 m² (TBA)
- Etasje
- 5
- Byggeår
- 2019
- Energimerking
- G - Mørkegrønn
- Rom
- 3
- Tomteareal
- 9 215 m² (eiet)
- Boligselgerforsikring
- Ja
Fasiliteter
Om boligen
Velkommen til en nyere 3-roms hjørneleilighet, beliggende i attraktive Harbitz Torg. Boligen ligger i et hyggelig sameie fra 2019 og har god intern beliggenhet. Her får du kvaliteter som balansert ventilasjon, som sikrer et godt inneklima, og vannbåren gulvvarme som gir lun oppvarming. Varme dager kan nytes på leilighetens balkong. Via kjelleren kan man ta seg tørrskodd til alle fasilitetene Harbitz Torg har å tilby.
- Attraktiv hjørneleilighet i 5. etasje fra 2019
- Balkong med gassuttak til grill
- Gasspeis
- Store vinduer og masse lys
- Akonto fyring og varmtvann inkl
- Enstavs eikeparkett med vannbåren gulvvarme
- Innvendig bod og kjellerbod
- Grønne fellesområder uten biltrafikk og felles takterrasse
- Easy living
- Garasjeplass med lader
Harbitz Torg kombiner easy living med en hyggelig nabolagsfølelse.
Salgsoppgaven beskriver vesentlig og lovpålagt informasjon om eiendommen
Se komplett salgsoppgaveNyttige lenker
Nærområdet

PrivatMegleren Dyve & Partnere
Annonseinformasjon
| FINN-kode | 427096348 |
|---|---|
| Sist endret | 27. sep. 2025 13:34 |
| Referanse | 159250663 |
Annonsene kan være mangelfulle i forhold til lovpålagt opplysningsplikt. Før bindende avtale inngås oppfordres interessenter til å innhente komplett informasjon fra meglerforetaket, selger eller utleier.


































