


EiendomsMegler 1 v/Anton Kopreitan har gleden av presentere en innholdsrik halvpart av 2 mannsbolig på Persaunet.
Salgsoppgaven beskriver vesentlig og lovpålagt informasjon om eiendommen
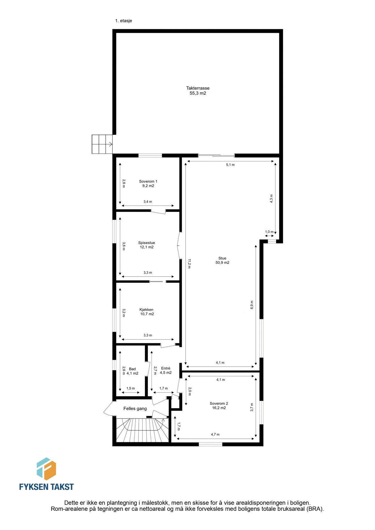
Se komplett salgsoppgaveLossiusvegen 3
på annonsen
prisantydning per kvadratmeter
Pris per m² ligger 3 593 kr under snittet for tomannsboliger i Trondheim Øst.
Grafen viser antall tomannsboliger solgt i Trondheim Øst siste året fordelt på pris per m² - totalt 160 tomannsboliger
Antall boliger
Kvadratmeterpris tilsvarer prisantydning pluss fellesgjeld per kvadratmeter (p-rom eller BRA-i). Prisene i grafen er avrundet til nærmeste 1000 kr.












| FINN-kode | 428441711 |
|---|---|
| Sist endret | 30. jan. 2026 11:39 |
| Referanse | 36250188 |
Annonsene kan være mangelfulle i forhold til lovpålagt opplysningsplikt. Før bindende avtale inngås oppfordres interessenter til å innhente komplett informasjon fra meglerforetaket, selger eller utleier.