Bildegalleri

Leiligheten ligger fint til i 3. etasje med balkong. Illustrasjon
Ny og moderne 2-roms med balkong på Rodeløkka under bygging. Felles takterrasse. Heis. Kontraktsposisjon.
Prisantydning5 690 000 kr
Nøkkelinfo
- Boligtype
- Leilighet
- Eieform
- Andel
- Soverom
- 1
- Internt bruksareal
- 39 m² (BRA-i)
- Bruksareal
- 39 m²
- Eksternt bruksareal
- 2 m² (BRA-e)
- Balkong/Terrasse
- 3 m² (TBA)
- Etasje
- 3
- Byggeår
- 2026
- Rom
- 2
- Tomteareal
- 2 210 m² (eiet)
Fasiliteter
Balkong/Terrasse
Parkett
Heis
Rolig
Moderne
Sentralt
Turterreng
Offentlig vann/kloakk
Bredbåndstilknytning
Visning
Alle våre visninger har påmelding. På denne måten sikrer vi at megler har god oversikt og tid til å imøtekomme alle interessenter på beste måte. Dette er veldig verdifullt for boligkjøpere og for oss. Det er enkelt å melde seg på, og du kan like enkelt melde deg av.
Kontakt også gjerne megler i forkant av visning dersom du har spørsmål.
VisningspåmeldingOm boligen
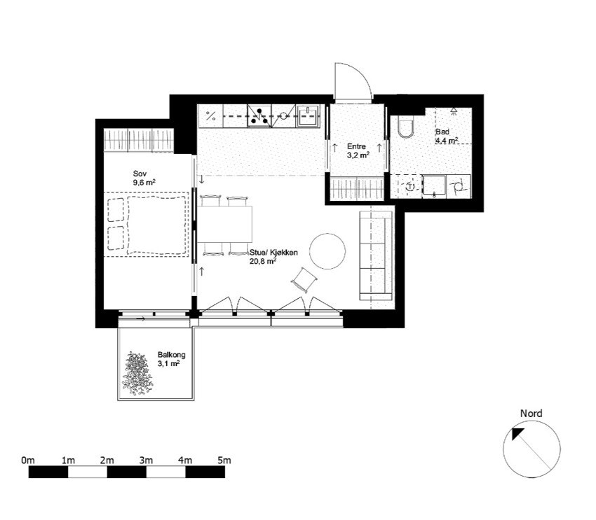
Privatmegleren har gleden av å presentere en helt ny 2-roms leilighet på 39 kvm i det populære boligprosjektet Marstrandgata. Leiligheten har en effektiv planløsning, balkong og heis.
Høydepunkter:
- 39 kvm med effektiv planløsning
- Balkong
- Bod i kjeller for ekstra lagringsplass
- Heis til etasjeplan med enkel adkomst
- Vannbåren varme
- Svært attraktiv beliggenhet i et moderne boligprosjekt
- Estimert overtakelse Q4 2026
Dette er et salg av kontraktsposisjon som betyr at du kjøper leiligheten på gjeldende kontraktsvilkår. Estimert overtakelse er Q4 2026.
NB: Knappen for å vise hele beskrivelsen har kun en visuell effekt.
NB: Knappen for å vise hele beskrivelsen har kun en visuell effekt.
Salgsoppgaven beskriver vesentlig og lovpålagt informasjon om eiendommen
Se komplett salgsoppgaveNyttige lenker
Nærområdet

PrivatMegleren Dyve & Partnere
Kun det beste på dine vegne
Annonseinformasjon
| FINN-kode | 428587844 |
|---|---|
| Sist endret | 15. jan. 2026 03:11 |
| Referanse | 159250087 |
Annonsene kan være mangelfulle i forhold til lovpålagt opplysningsplikt. Før bindende avtale inngås oppfordres interessenter til å innhente komplett informasjon fra meglerforetaket, selger eller utleier.












