Bildegalleri

Richard Withs gate 23
Attraktiv næringseiendom - Kontor, møterom & kantine - Stor verkstedhall - Fremstår som velholdt!
Nøkkelinfo
- Etasje
- 2.
- Eieform
- Eier (Selveier)
- Areal
- 725 m²
- Byggeår
- 1980
- Tomteareal
- 972 m² (eiet)
Type lokale
Fasiliteter
Kort om eiendommen
Velholdt næringseiendom i Stokmarknes sentrum. Eiendommen ansees som attraktiv, hensyntatt lokale forhold, spesielt grunnet den meget sentrale beliggenheten og bygningenes potensiale for ulike virksomheter og bruksområder.
Innhold
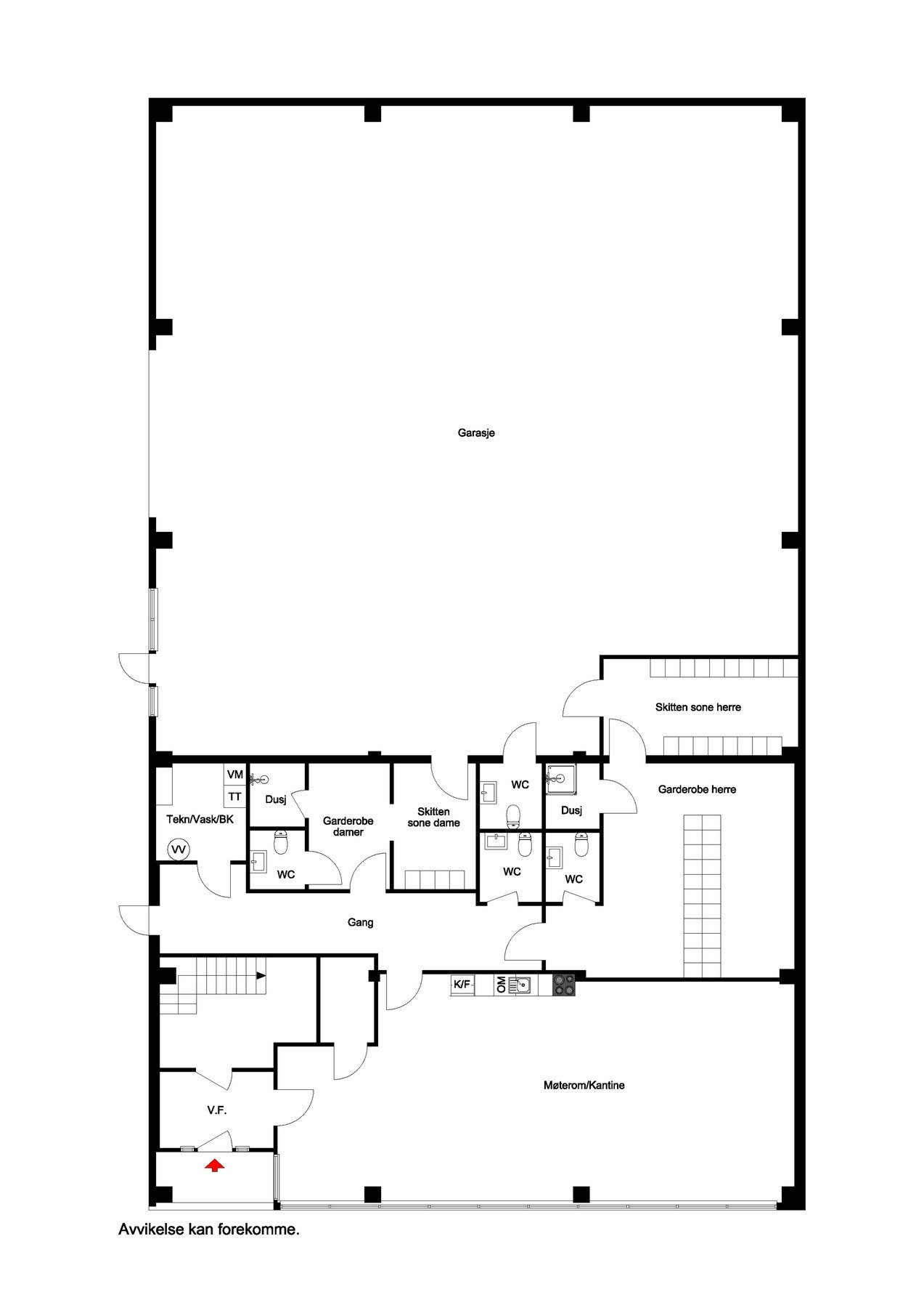
I byggets første etasje (bakkeplan) finner man personalrom, To gode garderober med dusj og WC, to "grovgarderober med tørkemuligheter for klær, vaskerom og et stort møterom/kantine. Fra garderober er det direkte inngang til en stor verkstedhall.
I andre etasje finner man 4 kontorer som kan omgjøres til flere, Arkiv/lager, datarom, WC og møterom.
Standard
Bygningen gir generelt et tilfredsstillende/godt helhetsinntrykk, hensyntatt byggeår, dette bl.a.
grunnet de utført påkostninger og generell standard.
Det er utført div. påkostninger, bl.a. nevnes utvendig platekledning på vegger, skifte av taktekke, innredet personalrom i 1. etg., skifte av 1 port samt utbedring av gulv i del av lager inkl. sluk. Div. utvendige arbeider, bl.a. asfalt.
Oppvarming
Oppvarming ved elektrisitet.
Beskaffenhet
Areal iht matrikkelutskrift/målebrev/skylddeling.
Tomtens arrondering: Flat.
Beliggenhet
Eiendommen ligger i Stokmarknes sentrum med sentral plassering, enkel adkomst og god synlighet.
Adkomst
Eiendommen har god adkomst fra offentlig vei.
Parkeringsforhold
Opparbeidet trafikk- og parkeringsareal på eiendommen, asfaltert.
Beskrivelse (type bolig)
Næringseiendom, med areal ca. 1,0 da. med påstående næringsbygg med meget sentral plassering i Stokmarknes sentrum som vesentlig er inneholdende verksted/ lager samt personalrom. Eiendommen er beliggende i etablert og attraktivt næringsområde.
Næringsbygg er i matrikkelen er kodet slik:
Bygning 1 av 2: Verkstedbygning: Næringsgruppe: Bygge- og anleggsvirksomhet.
Bygning 2 av 2: Butikk/forretningsbygning: Næringsgruppe: Varehandel, reparasjon av motorvogner.
Sentrale lover
Eiendommen selges som den er ved kjøpers besiktigelse eller på tidspunkt for aksept av kjøpers bud, dersom kjøper ikke besiktiger eiendommen. Eiendommen selges som den er jfr avhendingslovens paragraf 3-9, dog slik at forhold dekket av avhendingslovens § 3-9, andre punktum ikke kan utgjøre en mangel.
Avhendingslovens § 3-9 fravikes videre slik at kjøper ikke kan gjøre gjeldende som mangel forhold etter avhendingslovens § 3-8 (1), andre setning hvor opplysningene er gitt av andre enn selger. § 3-9 fravikes videre slik at forsømte opplysninger fra selgers side bare skal ansees som mangel dersom disse er vesentlige for kjøper og er dokumentert kjent av selger.
Avhendingslovens § 4-19, andre ledd fravikes slik at reklamasjon senest kan skje 1 år etter overtagelse av eiendommen.
Kjøper er oppfordret til selv å befare/undersøke eiendommen og forhold knyttet til denne, eventuelt ved bruk av dertil egnede fagpersoner. Kjøper kan ikke gjøre gjeldende som mangel noe han måtte kjenne til ved signering av kjøpekontrakten.
Forbehold
Det tas forbehold om trykkfeil i salgsoppgaven.
Salgsoppgaven er ufullstendig uten alle vedlegg.
Overtakelse
Overtagelse kan ikke finne sted før selgers nye bygg er ferdigstilt og overtatt. Dette er p.t. antydet til 01.10.2025.
Bygget kan overtas av ny eier før dette med Hadsel Maskin som leietaker frem til selgers nye bygg står ferdig til innflytting.
Det tas forbehold om overtagelse inntil 3 mnd før antydet ferdigstillelse eller inntil 3 mnd etter antydet ferdigstillelse. Selger plikter å gi både kjøper og megler skriftlig varsel minimum 3 uker før den endelige overtagelsesdatoen
Nyttige lenker
Nærområdet
Møysalen & Partners
Annonseinformasjon
| FINN-kode | 429565413 |
|---|---|
| Sist endret | 30. sep. 2025 07:17 |
| Referanse | R-75240153 |
Annonsene kan være mangelfulle i forhold til lovpålagt opplysningsplikt. Før bindende avtale inngås oppfordres interessenter til å innhente komplett informasjon fra meglerforetaket, selger eller utleier.

































