Bildegalleri

- Resalg av Lille Gartnerløkken B1-104, presentert av Privatmegleren v/ Ximena Andrea Sagenes -
Salg av kontrakt | Romslig 3 roms eierleilighet med innglasset i balkong i 1.etg | Like v/ Horisont senter
Nøkkelinfo
- Boligtype
- Leilighet
- Eieform
- Eier (Selveier)
- Soverom
- 2
- Internt bruksareal
- 87 m² (BRA-i)
- Bruksareal
- 105 m²
- Eksternt bruksareal
- 5 m² (BRA-e)
- Innglasset balkong
- 13 m² (BRA-b)
- Etasje
- 1
- Byggeår
- 2026
- Rom
- 3
- Tomteareal
- 7 000 m² (eiet)
Visning
Om boligen
Salg av kontraktsposisjon:
Privatmegleren presenterer eiendom B1-104 i Lille Gartnerløkken.
Boligsameiet Lille Gartnerløkken er beliggende like ved Horisont senter i Åsane. Her har du alt du trenger i hverdagen i kort avstand, for øvrig er det også flotte tur- og friområder og et godt kollektivtilbud.
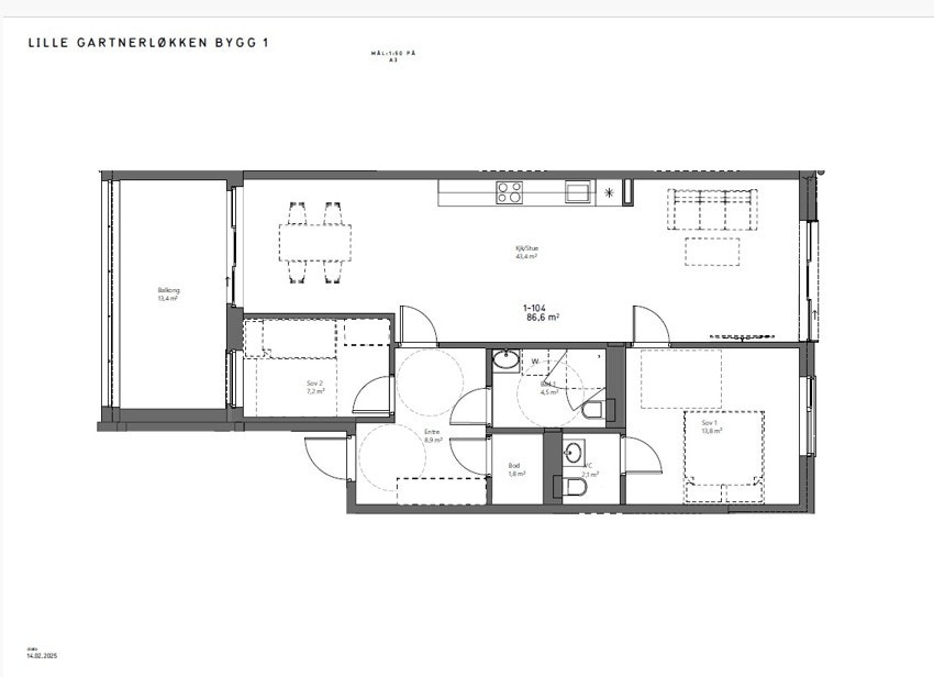
Dette er en romslig 3-roms eierleilighet som er innflytningsklar i slutten av 2026. Boligen har god standard og en fin planløsning. Herunder kan nevnes, et moderne kjøkken fra Designa, 1 stavs parkett og lyse overflater. Som en fin forlengelse av stuen har du en innglasset balkong, samt kan du ta morgenkaffen på uteplassen mot øst.
Boligen inneholder følgende rom:
1. etasje: Entré, bad, wc, 2 soverom, en gjennomsidig belyst stue/kjøkkenløsning og bod. Innglasset balkong mot vest.
Ekstern bod.
Salgsoppgaven beskriver vesentlig og lovpålagt informasjon om eiendommen
Se komplett salgsoppgaveNyttige lenker
Nærområdet

PrivatMegleren Vikebø & Jørgensen Nybygg
Annonseinformasjon
| FINN-kode | 430514081 |
|---|---|
| Sist endret | 15. jan. 2026 03:13 |
| Referanse | 194250362 |
Annonsene kan være mangelfulle i forhold til lovpålagt opplysningsplikt. Før bindende avtale inngås oppfordres interessenter til å innhente komplett informasjon fra meglerforetaket, selger eller utleier.










