Bildegalleri

Lys og moderne enebolig på solrik hjørnetomt i et attraktivt og familievennlig område på Prestmosen i Nannestad! Her bor du i et rolig og trygt nabolag med kort vei til skoler, barnehager, idrettsanlegg, turstier og butikker .
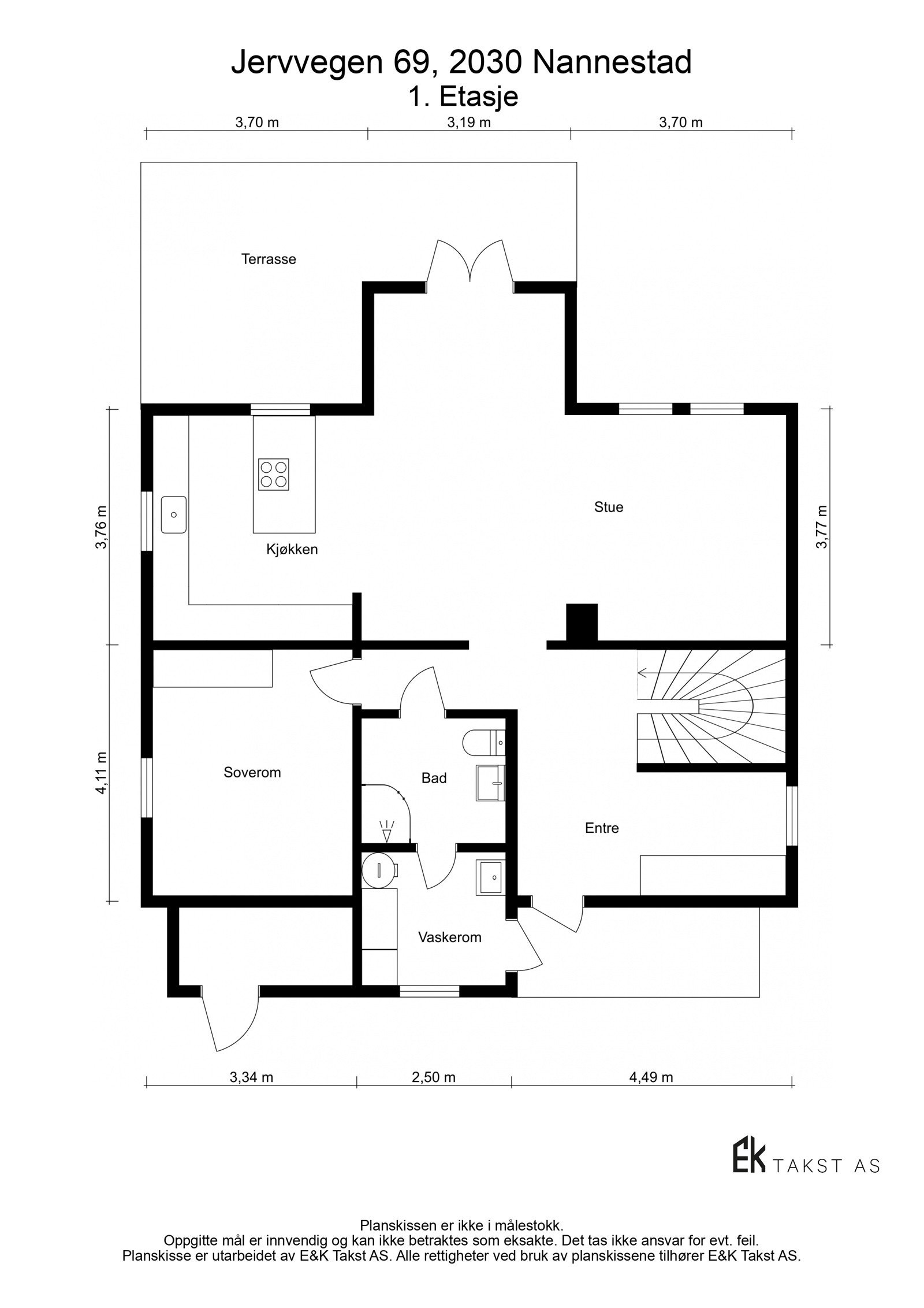
Familievennlig enebolig med nytt kjøkken fra 2023 - 5 soverom - 2 stuer - Solrik hjørnetomt - Garasje m/elbillader ++
Nøkkelinfo
- Boligtype
- Enebolig
- Eieform
- Eier (Selveier)
- Soverom
- 5
- Internt bruksareal
- 180 m² (BRA-i)
- Bruksareal
- 184 m²
- Eksternt bruksareal
- 4 m² (BRA-e)
- Balkong/Terrasse
- 35 m² (TBA)
- Byggeår
- 2007
- Energimerking
- D - Oransje
- Tomteareal
- 677 m² (eiet)
- Boligselgerforsikring
- Ja
Fasiliteter
Visning
Om boligen
Lys og moderne enebolig på solrik hjørnetomt i et attraktivt og familievennlig område på Prestmosen i Nannestad! Her bor du i et rolig og sentralt nabolag med kort vei til skoler, barnehager, idrettsanlegg, turstier og butikker - perfekt for den aktive familien.
Høydepunkter:
- Lys og romslig stue med gode vindusflater og peisovn
- Stilrent kjøkken fra Strai (2023) med eksklusiv dekton benkeplate og integrerte hvitevarer
- Nydelig lyspigmentert enstavs parkett i stue/kjøkken (2023)
- 2 flislagte bad og eget vaskerom
- 5 romslige og gode soverom
- Familievennlig loftstue
- Solrik, sydvestvendt markterrasse på 26 kvm
- Dobbelgarasje m/elbillader og stor steinbelagt gårdsplass
- Solrikt og pent opparbeidet uteområde på 677 kvm
- 12 min til Oslo Lufthavn
Kan dette være familieboligen dere har ventet på?
Velkommen!
Salgsoppgaven beskriver vesentlig og lovpålagt informasjon om eiendommen
Se komplett salgsoppgaveNyttige lenker
Nærområdet

PrivatMegleren Brustad & Partnere
Annonseinformasjon
| FINN-kode | 434886445 |
|---|---|
| Sist endret | 11. jan. 2026 03:10 |
| Referanse | 121250446 |
Annonsene kan være mangelfulle i forhold til lovpålagt opplysningsplikt. Før bindende avtale inngås oppfordres interessenter til å innhente komplett informasjon fra meglerforetaket, selger eller utleier.

























































