Bildegalleri

Velkommen til Helleveien 146!
Helle - Kragerø
Enebolig på Helle med romslig tomt og flott sjøutsikt. Stor parkering og carport. Usjenert uteplass
Prisantydning2 950 000 kr
Nøkkelinfo
- Boligtype
- Enebolig
- Eieform
- Eier (Selveier)
- Soverom
- 2
- Internt bruksareal
- 164 m² (BRA-i)
- Bruksareal
- 177 m²
- Eksternt bruksareal
- 4 m² (BRA-e)
- Innglasset balkong
- 9 m² (BRA-b)
- Balkong/Terrasse
- 77 m² (TBA)
- Etasje
- 2
- Byggeår
- 1974
- Energimerking
- F - Oransje
- Rom
- 4
- Tomteareal
- 1 343 m² (festet)
- Festeavgift
- 2 393 kr
Fasiliteter
Balkong/Terrasse
Barnevennlig
Bredbåndstilknytning
Garasje/P-plass
Hage
Kjæledyr tillatt
Offentlig vann/kloakk
Parkett
Rolig
Sentralt
Utsikt
Turterreng
Visning
mandag, 19. januar
16:00 – 17:00
Eiendomsmegler Norge sine visninger har påmelding. Påmelding gjøres enkelt ved å benytte knappen under. Ta kontakt med megler dersom oppsatt tidspunkt ikke passer. Det vil ikke bli avholdt visning uten påmelding, frist for påmelding er senest kl. 12.00 på visningsdagen. Husk å laste ned salgsoppgaven digitalt før visning. Velkommen til en hyggelig visning!
VisningspåmeldingOm boligen
Velkommen til Helleveien 146
Boligen har en sentral og attraktiv beliggenhet på Helle. Boligen har en usjenert og fin beliggenhet, med gode solforhold året rundt og har flott utsikt.
Boligen går over 2 etasjer, og har en fleksibel planløsning.
Boligen inneholder følgende:
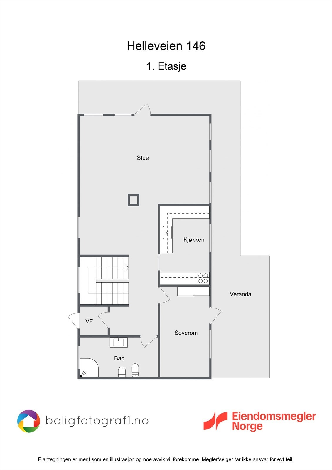
1.etasje: Vindfang, gang, stue/spisestue, kjøkken og bad. Mulighet for å re-etablere ett ekstra soverom
Underetasje: Gang/hall, soverom, kjellerstue med alkove, vaskerom, bod, verksted, hagestue.
Boligen har normal standard, og fremstår som normalt vedlikeholdt.
Tomten har en fin utforming med asfaltert adkomst og parkering, med tilhørende carport. Det er veranda som strekker seg rundt store deler av boligen, og flott uteplass i front mot sjøen, med både gressplen og platting.
Boligen har en sentral og attraktiv beliggenhet på Helle. Boligen har en usjenert og fin beliggenhet, med gode solforhold året rundt og har flott utsikt.
Boligen går over 2 etasjer, og har en fleksibel planløsning.
Boligen inneholder følgende:
1.etasje: Vindfang, gang, stue/spisestue, kjøkken og bad. Mulighet for å re-etablere ett ekstra soverom
Underetasje: Gang/hall, soverom, kjellerstue med alkove, vaskerom, bod, verksted, hagestue.
Boligen har normal standard, og fremstår som normalt vedlikeholdt.
Tomten har en fin utforming med asfaltert adkomst og parkering, med tilhørende carport. Det er veranda som strekker seg rundt store deler av boligen, og flott uteplass i front mot sjøen, med både gressplen og platting.
NB: Knappen for å vise hele beskrivelsen har kun en visuell effekt.
NB: Knappen for å vise hele beskrivelsen har kun en visuell effekt.
Salgsoppgaven beskriver vesentlig og lovpålagt informasjon om eiendommen
Se komplett salgsoppgaveNyttige lenker
Nærområdet
Eiendomsmegler Norge Kragerø
Best der du bor
Annonseinformasjon
| FINN-kode | 438830876 |
|---|---|
| Sist endret | 09. jan. 2026 11:23 |
| Referanse | 62250117 |
Annonsene kan være mangelfulle i forhold til lovpålagt opplysningsplikt. Før bindende avtale inngås oppfordres interessenter til å innhente komplett informasjon fra meglerforetaket, selger eller utleier.






















































