Bildegalleri

Velkommen til Brages vei 10 presentert av Eiendomsmegler Norge v/Gro Lillian Netland Hulløen
Solgt
Lund
Nyhet! Hel tomannsbolig med 2 stk 3-romsleiligheter. Flott og supersentral attraktiv beliggenhet på beste Lund!
Prisantydning6 900 000 kr
Nøkkelinfo
- Boligtype
- Tomannsbolig
- Eieform
- Eier (Selveier)
- Soverom
- 4
- Internt bruksareal
- 275 m² (BRA-i)
- Bruksareal
- 275 m²
- Balkong/Terrasse
- 23 m² (TBA)
- Etasje
- 3
- Byggeår
- 1954
- Energimerking
- G - Oransje
- Rom
- 7
- Tomteareal
- 529 m² (eiet)
Fasiliteter
Balkong/Terrasse
Barnevennlig
Hage
Offentlig vann/kloakk
Peis/Ildsted
Rolig
Sentralt
Turterreng
Om boligen
Eiendomsmegler Norge v/ Gro Lillian Netland Hulløen presenterer Brages vei 10 på beste Lund.
Dette er en horisontaldelt tomannsbolig med god standard og med mulighet for gode leieinntekter.
Boligen har felles trappegang og følgende innhold:
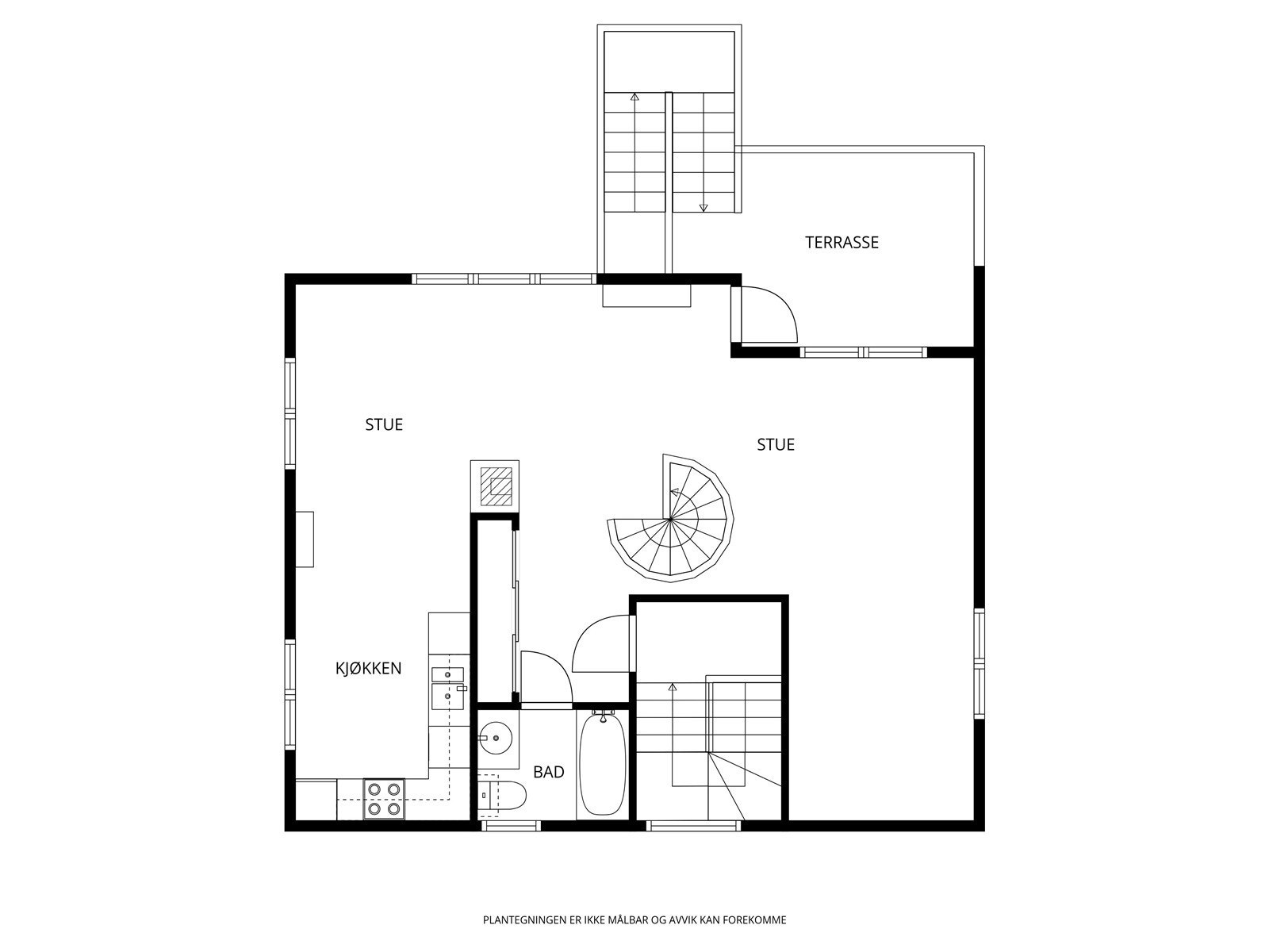
1. etasje: Gang, stue m/ utgang veranda, kjøkken, 2 soverom, dusjbad/wc.
2. etasje: Gang, vinkelstue m/ utgang veranda og trapp ned til hage, kjøkken, bad/wc.
3. etasje: Loftstue m/ utgang veranda, dusjbad/wc, 2 soverom. Kott i knevegger.
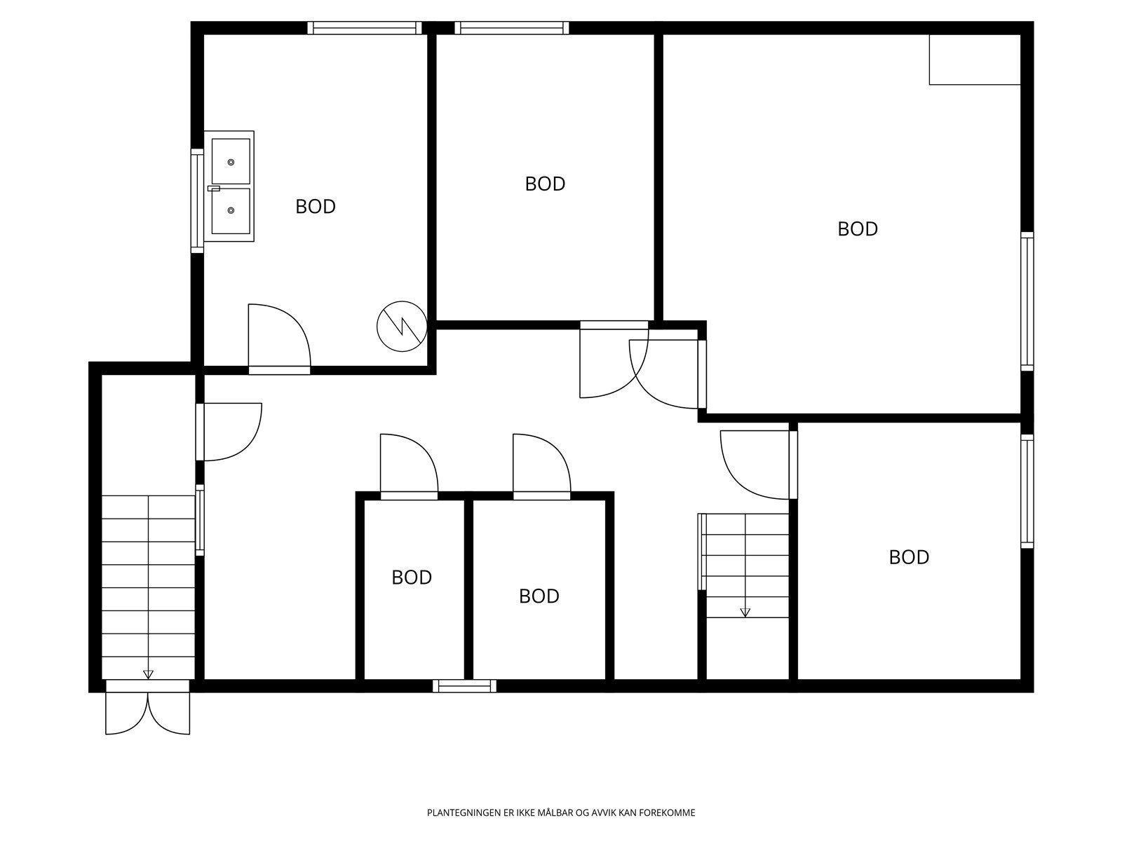
Kjeller: Gang m/ dør ut, vedbod, hobbyrom, vaskekjeller og diverse boder.
Bydelen har et godt utvalg av butikker, kaféer og servicetilbud, særlig etter den store utbyggingen på Marvikssletta er det blitt et rikholdig tilbud av f.eks matbutikker. Turterreng og sjøen rett i nærheten.
Velkommen!
Dette er en horisontaldelt tomannsbolig med god standard og med mulighet for gode leieinntekter.
Boligen har felles trappegang og følgende innhold:
1. etasje: Gang, stue m/ utgang veranda, kjøkken, 2 soverom, dusjbad/wc.
2. etasje: Gang, vinkelstue m/ utgang veranda og trapp ned til hage, kjøkken, bad/wc.
3. etasje: Loftstue m/ utgang veranda, dusjbad/wc, 2 soverom. Kott i knevegger.
Kjeller: Gang m/ dør ut, vedbod, hobbyrom, vaskekjeller og diverse boder.
Bydelen har et godt utvalg av butikker, kaféer og servicetilbud, særlig etter den store utbyggingen på Marvikssletta er det blitt et rikholdig tilbud av f.eks matbutikker. Turterreng og sjøen rett i nærheten.
Velkommen!
NB: Knappen for å vise hele beskrivelsen har kun en visuell effekt.
NB: Knappen for å vise hele beskrivelsen har kun en visuell effekt.
Salgsoppgaven beskriver vesentlig og lovpålagt informasjon om eiendommen
Se komplett salgsoppgaveNyttige lenker
Nærområdet
Eiendomsmegler Norge Kristiansand
Best der du bor
Annonseinformasjon
| FINN-kode | 441140109 |
|---|---|
| Sist endret | 18. jan. 2026 13:04 |
| Referanse | 51250069 |
Annonsene kan være mangelfulle i forhold til lovpålagt opplysningsplikt. Før bindende avtale inngås oppfordres interessenter til å innhente komplett informasjon fra meglerforetaket, selger eller utleier.
































































