Bildegalleri

Velkommen til Holmen 23 og 25! Presentert av Advanti & Partners
Øvre Alta
Stor eiendom på ca. 88,6 mål i Holmen - To eneboliger - To frittstående garasjer & Fjøs - Mulighet for elverett!
Prisantydning7 500 000 kr
Nøkkelinfo
- Boligtype
- Enebolig
- Eieform
- Eier (Selveier)
- Soverom
- 3
- Internt bruksareal
- 98 m² (BRA-i)
- Bruksareal
- 124 m²
- Eksternt bruksareal
- 26 m² (BRA-e)
- Balkong/Terrasse
- 10 m² (TBA)
- Etasje
- 3
- Byggeår
- 1948
- Energimerking
- G - Oransje
- Rom
- 4
- Tomteareal
- 88 689 m² (eiet)
Fasiliteter
Barnevennlig
Balkong/Terrasse
Garasje/P-plass
Peis/Ildsted
Turterreng
Rolig
Om boligen
Velkommen til Holmen 23 og 25! En sjelden mulighet til å erverve en omfattende eiendom med et betydelig potensial. Eiendommen består av en tomt på ca. 88,7 mål, med to eneboliger, to garasjer, et lager/fjøs og en utebod. Dette gir unike muligheter for den som ønsker mye plass, generasjonsbolig eller videre utvikling.
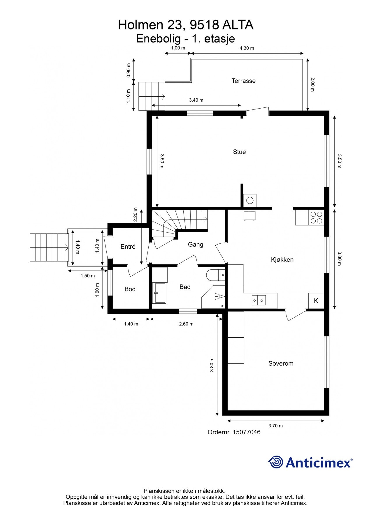
Hovedhuset fra 1948 går over tre plan og inneholder blant annet stue, kjøkken og soverom i første etasje, samt to soverom på loftet. Den andre eneboligen er på ett plan, og inneholder stue, kjøkken, bad og soverom.
Eiendommen har en landlig og fredelig beliggenhet, med kort kjørevei til barnehage og skole. Eiendommen består av 50,8 mål med fulldyrka jord og 32,9 mål med produktiv skog.
Det er inngått en avtale om leie på dyrka areal for kr. 0,- frem til 2033.
Velkommen på visning!
Hovedhuset fra 1948 går over tre plan og inneholder blant annet stue, kjøkken og soverom i første etasje, samt to soverom på loftet. Den andre eneboligen er på ett plan, og inneholder stue, kjøkken, bad og soverom.
Eiendommen har en landlig og fredelig beliggenhet, med kort kjørevei til barnehage og skole. Eiendommen består av 50,8 mål med fulldyrka jord og 32,9 mål med produktiv skog.
Det er inngått en avtale om leie på dyrka areal for kr. 0,- frem til 2033.
Velkommen på visning!
NB: Knappen for å vise hele beskrivelsen har kun en visuell effekt.
NB: Knappen for å vise hele beskrivelsen har kun en visuell effekt.
Salgsoppgaven beskriver vesentlig og lovpålagt informasjon om eiendommen
Se komplett salgsoppgaveNærområdet
Advanti & Partners
Verdien av lokalkunnskap
Annonseinformasjon
| FINN-kode | 441140639 |
|---|---|
| Sist endret | 27. feb. 2026 05:01 |
| Referanse | 89250224 |
Annonsene kan være mangelfulle i forhold til lovpålagt opplysningsplikt. Før bindende avtale inngås oppfordres interessenter til å innhente komplett informasjon fra meglerforetaket, selger eller utleier.











































