Bildegalleri

Velkommen til Sløyfa 45! Romslig og godt vedlikeholdt enebolig over tre plan. (Foto: EFKT v/ Pål Godager)
Ilseng
Innholdsrik og solid familiebolig med store uteplasser, dobbel carport og solrik tomt.
Prisantydning3 650 000 kr
Nøkkelinfo
- Boligtype
- Enebolig
- Eieform
- Eier (Selveier)
- Soverom
- 3
- Internt bruksareal
- 187 m² (BRA-i)
- Bruksareal
- 254 m²
- Eksternt bruksareal
- 67 m² (BRA-e)
- Balkong/Terrasse
- 85 m² (TBA)
- Etasje
- 3
- Byggeår
- 1952
- Energimerking
- D - Oransje
- Rom
- 4
- Tomteareal
- 1 326 m² (eiet)
Fasiliteter
Balkong/Terrasse
Barnevennlig
Bredbåndstilknytning
Garasje/P-plass
Hage
Kjæledyr tillatt
Kabel-TV
Offentlig vann/kloakk
Peis/Ildsted
Turterreng
Visning
For å delta på visning, ber vi om at du melder deg på. Da sikrer vi at du får nødvendig informasjon og at det er satt av tilstrekkelig med tid. Kontakt megler dersom annet tidspunkt ønskes. Husk å lese salgsoppgaven før visningen, så du stiller forberedt.
Ønsker du kun å bli holdt orientert, kan du fra eiendommens hjemmeside få varsel om solgtpris, eller kontakte megler.
VisningspåmeldingOm boligen
Velkommen til Sløyfa 45!
Romslig og godt vedlikeholdt enebolig over tre plan med praktisk planløsning og gode kvaliteter både inne og ute.
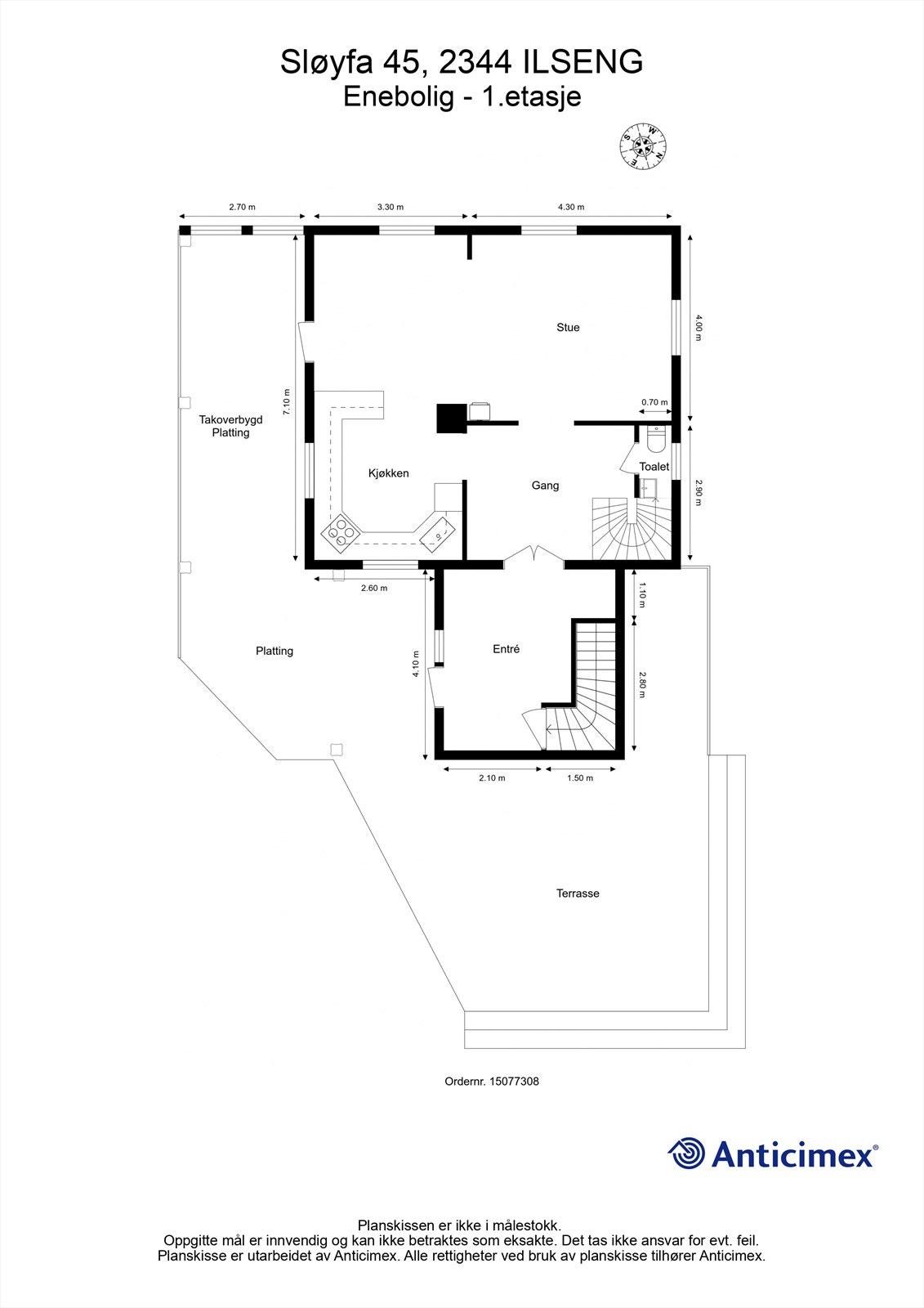
Boligen inneholder blant annet 3 soverom, 2 flislagte bad - hvorav ett er fra 2018, toalettrom, vaskerom, samt en lys hovedetasje med åpen løsning mellom kjøkken og stue.
Her er det mange smarte løsninger for oppbevaring og utnyttelse av arealene.
Eiendommen byr på hele 85 kvm terrasse og platting, barnevennlig hage med dyrkingsmuligheter, uthus, hønsehus og dobbel carport.
Beliggende i et rolig og etablert boligområde på Ilseng med kort vei til skole, barnehage, butikk, kollektivtransport og fine turmuligheter.
Velkommen til en hyggelig visning!
Romslig og godt vedlikeholdt enebolig over tre plan med praktisk planløsning og gode kvaliteter både inne og ute.
Boligen inneholder blant annet 3 soverom, 2 flislagte bad - hvorav ett er fra 2018, toalettrom, vaskerom, samt en lys hovedetasje med åpen løsning mellom kjøkken og stue.
Her er det mange smarte løsninger for oppbevaring og utnyttelse av arealene.
Eiendommen byr på hele 85 kvm terrasse og platting, barnevennlig hage med dyrkingsmuligheter, uthus, hønsehus og dobbel carport.
Beliggende i et rolig og etablert boligområde på Ilseng med kort vei til skole, barnehage, butikk, kollektivtransport og fine turmuligheter.
Velkommen til en hyggelig visning!
NB: Knappen for å vise hele beskrivelsen har kun en visuell effekt.
NB: Knappen for å vise hele beskrivelsen har kun en visuell effekt.
Salgsoppgaven beskriver vesentlig og lovpålagt informasjon om eiendommen
Se komplett salgsoppgaveNyttige lenker
Nærområdet
Krogsveen Hamar
Verdien av en god megler.
Annonseinformasjon
| FINN-kode | 443435162 |
|---|---|
| Sist endret | 13. jan. 2026 14:03 |
| Referanse | KR65.25312 |
Annonsene kan være mangelfulle i forhold til lovpålagt opplysningsplikt. Før bindende avtale inngås oppfordres interessenter til å innhente komplett informasjon fra meglerforetaket, selger eller utleier.










































