Bildegalleri

Velkommen til Døsserødveien 19! En flott andelsleilighet over to plan i Pilen Borettslag.
Stor gj.gående leilighet over 2 plan med peis, garasje, 2 balkonger. Rolig og sentralt | Forkjøpsrett avklart
Prisantydning3 190 000 kr
Nøkkelinfo
- Boligtype
- Leilighet
- Eieform
- Andel
- Soverom
- 3
- Internt bruksareal
- 129 m² (BRA-i)
- Bruksareal
- 135 m²
- Eksternt bruksareal
- 6 m² (BRA-e)
- Balkong/Terrasse
- 20 m² (TBA)
- Etasje
- 2
- Byggeår
- 2002
- Energimerking
- E - Rød
- Rom
- 4
- Tomteareal
- 6 025 m² (eiet)
Fasiliteter
Balkong/Terrasse
Barnevennlig
Garasje/P-plass
Kjæledyr tillatt
Peis/Ildsted
Rolig
Sentralt
Utsikt
Turterreng
Om boligen
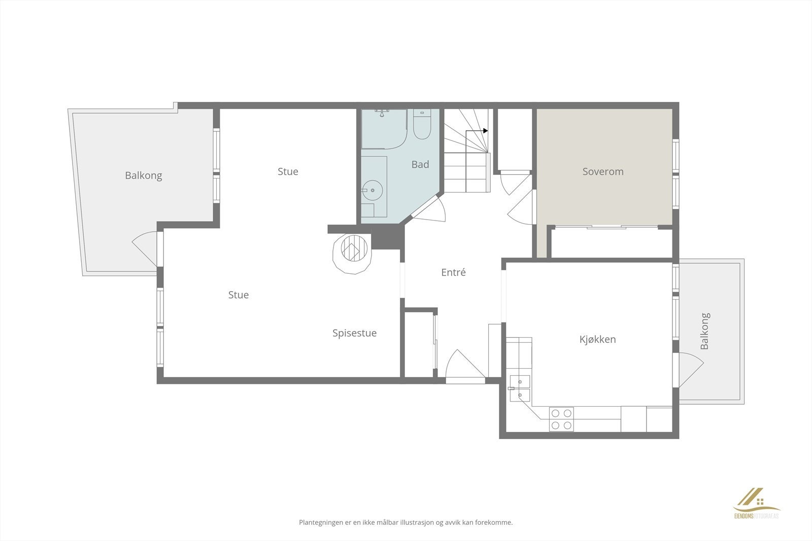
Velkommen til Døsserødveien 19, en romslig, gjennomgående andelsleilighet over 2 plan (2. og 3.etasje) med gjennomtenkt planløsning og en attraktiv beliggenhet nær Tønsberg sentrum. Denne leiligheten har to balkonger (mot øst og en mot vest), peisovn, garasjeplass i felles garasjeanlegg (med egen vaskeplass for beboere), to bad og holder en god standard. Moderne varmepumpe i stue.
Leiligheten byr på en god romfølelse med skråtak og store takvinduer som slipper inn rikelig med naturlig lys. Vestvendt balkong gir perfekte solforhold og en østvendt balkong med morgensol. Romslig soverom med god plass til oppbevaring, og et flislagt bad. Leiligheten ligger meget sentralt og med kort gangavstand til Olsrød Park med treningssenter, dagligvare og flere butikker.
Velkommen!
Leiligheten byr på en god romfølelse med skråtak og store takvinduer som slipper inn rikelig med naturlig lys. Vestvendt balkong gir perfekte solforhold og en østvendt balkong med morgensol. Romslig soverom med god plass til oppbevaring, og et flislagt bad. Leiligheten ligger meget sentralt og med kort gangavstand til Olsrød Park med treningssenter, dagligvare og flere butikker.
Velkommen!
NB: Knappen for å vise hele beskrivelsen har kun en visuell effekt.
NB: Knappen for å vise hele beskrivelsen har kun en visuell effekt.
Salgsoppgaven beskriver vesentlig og lovpålagt informasjon om eiendommen
Se komplett salgsoppgaveNyttige lenker
Nærområdet
EiendomsMegler 1 Tønsberg
En del av Sparebank 1 Sør-Norge
Annonseinformasjon
| FINN-kode | 450294625 |
|---|---|
| Sist endret | 23. feb. 2026 10:58 |
| Referanse | 2871260006 |
Annonsene kan være mangelfulle i forhold til lovpålagt opplysningsplikt. Før bindende avtale inngås oppfordres interessenter til å innhente komplett informasjon fra meglerforetaket, selger eller utleier.



















































