Bildegalleri

Klopvegen 17 en meget pen og modernisert enebolig i rekke med fin beliggenhet og nærhet til bhg, skoler samt sentrum
DOKKA
Meget pen enebolig i rekke - Rolig og barnevennlig boligområde - Solrikt - Terrasse og hage - Nærhet til "alt"
Prisantydning2 850 000 kr
Nøkkelinfo
- Boligtype
- Rekkehus
- Eieform
- Eier (Selveier)
- Soverom
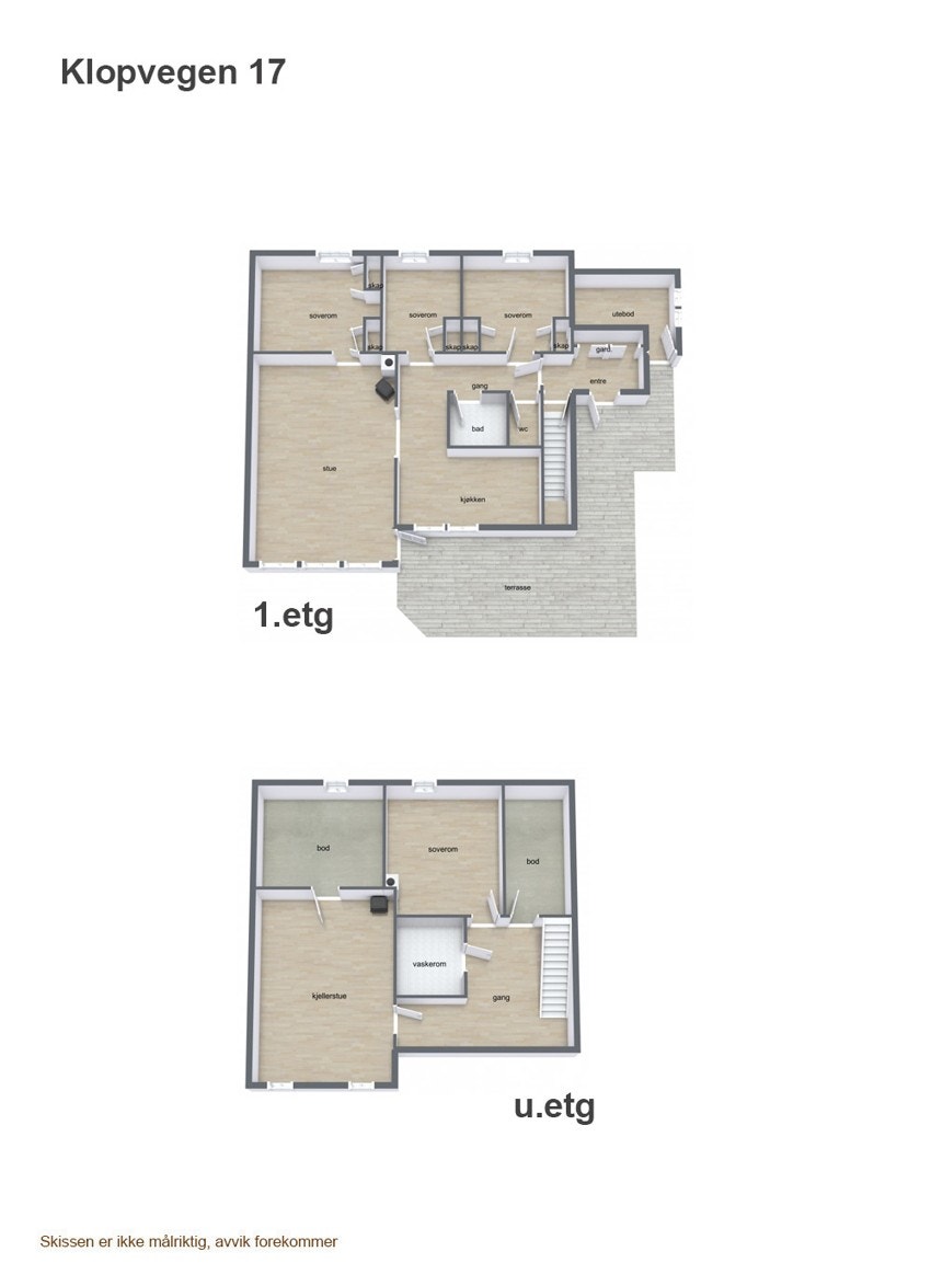
- 4
- Internt bruksareal
- 184 m² (BRA-i)
- Bruksareal
- 190 m²
- Eksternt bruksareal
- 6 m² (BRA-e)
- Balkong/Terrasse
- 16 m² (TBA)
- Byggeår
- 1976
- Energimerking
- E - Gul
- Tomteareal
- 554 m² (eiet)
Fasiliteter
Balkong/Terrasse
Peis/Ildsted
Barnevennlig
Rolig
Sentralt
Garasje/P-plass
Turterreng
Offentlig vann/kloakk
Visning
torsdag, 12. mars
16:30 – 17:00
Visningspåmelding til megler innen kl 15:00 samme dag som oppsatt visning. Visning blir ikke gjennomført uten påmeldte. For visning utenom oppsatt tid, ta kontakt med megler.
Husk å lese salgsoppgaven før visningen.
Velkommen!
VisningspåmeldingOm boligen
Velkommen til Klopvegen 17 - en meget pen og modernisert enebolig i rekke!
Boligen ligger fint til på enden av rekke i et attraktivt boligområde og noe av det vi kan friste med her er:
- Modernisert bad i 2015
- Pent kjøkken fra 2009
- Nytt stålrør i pipe 2021
- Vedovn i stue fra 2008
- Flere overflater er modernisert
- 4 soverom
- Elektrisk markise på veranda og utenfor kjøkkenvindu
- Innredet kjeller med kjellerstue og vaskerom
- To nye vinduer i kjeller fra 2023
- Garasjeplass i felles garasjebygg
- Biloppstillingsplass utenfor
- Solrikt
- Stille, rolig og barnevennlig
- Gangavstand til barnehager og skoler
Velkommen til en hygglig visning - husk visningspåmelding!
NB: Knappen for å vise hele beskrivelsen har kun en visuell effekt.
NB: Knappen for å vise hele beskrivelsen har kun en visuell effekt.
Salgsoppgaven beskriver vesentlig og lovpålagt informasjon om eiendommen
Se komplett salgsoppgaveNyttige lenker
Nærområdet
Partners Eiendomsmegling
Verdien av lokalkunnskap
Annonseinformasjon
| FINN-kode | 453807389 |
|---|---|
| Sist endret | 06. mars 2026 03:19 |
| Referanse | 61250056 |
Annonsene kan være mangelfulle i forhold til lovpålagt opplysningsplikt. Før bindende avtale inngås oppfordres interessenter til å innhente komplett informasjon fra meglerforetaket, selger eller utleier.


























































