Bildegalleri

Imøtekommende resepsjon
Presentabelt og innflyttingsklart kontorlokale - 3 minutter fra Nationaltheateret stasjon
Nøkkelinfo
- Areal
- 589 m²
- Etasje
- 3.
- Overtakelse
- Etter avtale
Type lokale
Fasiliteter
Om eiendommen
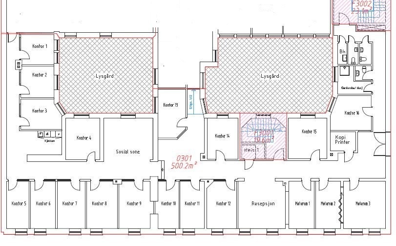
Universitetsgata er en av sidegatene til Karl Johans gate og ligger kun 3 minutter gange fra Nationaltheatret stasjon. Arealnr 301 har utsikt mot parken til Det juridiske fakultet og er enkelt å komme seg til for ansatte og besøkende. Dagens planløsning består av cellekontorer i ulike størrelser som både vender ut mot Universitetsgata og bakgård. I tillegg har lokalet allrom, møterom, kjøkken og toaletter med dusjfasiliteter. Lokalet ligger i 3. etasje og er på 589 m² brutto, 500 m² netto.
Ventilasjonsanlegget i enedommen er nylig oppgradert, og det er fiber i eiendommen.Adkomst
Eiendommen ligger kun 3 minutters gange fra Nationaltheatret stasjon med tog, flytog, trikk, buss og t-banestasjon. Nærmeste P-hus er Sentrum parkering.
Visning
Ta kontakt for å avtale visning.Thon Eiendom
Nærområdet
Annonseinformasjon
| FINN-kode | 329424894 |
|---|---|
| Sist endret | 18. jan. 2024 14:20 |
| Referanse | Eline Høyte |
Annonsene kan være mangelfulle i forhold til lovpålagt opplysningsplikt. Før bindende avtale inngås oppfordres interessenter til å innhente komplett informasjon fra meglerforetaket, selger eller utleier.

















