Bildegalleri

Privatmegleren ved John Granly Steen og Kristian Arthur Brunvoll har gleden av å presentere denne velholdte og trivelige eneboligen over 2 plan med garasje og romslig terrasse på Konnerud i Drammen.
Konnerud/Drammen - Velholdt, trivelig enebolig over 2 plan med garasje og romslig terrasse, på usjenert tomt mot skoghol
Nøkkelinfo
- Boligtype
- Enebolig
- Eieform
- Selveier
- Soverom
- 3
- Primærrom
- 115 m²
- Bruksareal
- 130 m²
- Byggeår
- 1990
- Energimerking
- F - Rød
- Rom
- 5
- Tomteareal
- 812 m² (eiet)
- Bruttoareal
- 138 m²
Fasiliteter
Presentasjon Klarinetten 5
Opplev boligen i en unik 3 D animasjon. Kopier denne linken inn i din nettleser og nyt denne unike boligen!
https://my.matterport.com/show/?m=p1zs7Bs7Kx9
Klarinetten 5 er en koselig enebolig over to plan, i usjenerte omgivelser. Strøket er barnevennlig og ligger med fin gangavstand til skoler, barnehager, idrettsfasiliteter, buss og butikker. Ikke minst er nærheten til marka et stort pluss for den som ønsker en aktiv familiehverdag. Utendørs har boligen en fin hage å oppholde seg i, samt både terrasse og veranda der solen kan nytes. Bilen kan du parkere i garasje eller på gårdsplass.
Eneboligen har fin planløsning, og i hele andre etasje er det gulvvarme. I første etasje ligger stuen som har en hyggelig spiseplass, innredet med hjørnebenk, bord og vitrineskap. Kjøkkenet ligger åpent til stuen og har en furuinnredning med tilhørende kjøleskap. Videre har boligen en trivelig loftstue, et velholdt bad med steamdusjkabinett og et separat wc-rom som ble oppgradert i 2017. Et vaskerom tilliggende entré benyttes som bod. Boligen har også tre soverom, hvorav ett med garderobeskap.
HØYDEPUNKTER
- Usjenert og koselig enebolig.
- Garasje og parkering på tomt.
- Hage, veranda og terrasse.
- Kjøkken med Siemens kjøleskap.
- Stue med møblert spiseplass.
- Loftstue, fin for ungdommen.
- Velholdt bad og et nyere wc-rom.
- Vaskerom, benyttes som bod.
- Opplegg for vaskemaskin på bad.
- Tre soverom, ett m/garderobeskap.
- Elskap med overspenningsvern.
- Viken Fiber (Altibox) er tilknyttet.
Beliggenhet
Eiendommen ligger i et etterspurt og meget barnevennlig boligområde på Konnerud i Drammen kommune, med gangavstand til skoler, barnehager, butikker og gode servicetilbud. Konnerud har marka som nærmeste nabo, hvor merkede stier, turveier og usjenerte fiskevann gir gode rekreasjonsmuligheter. Kun en kilometer fra boligen ligger Haukåstoppen, hvor du belønnes med fantastisk utsikt over Drammen.
Konnerud har dessuten både stadion og idrettshall. Konnerud IL er blant de største i landet og har en meget god idrettskultur. Området byr på et bredt spekter av treningsfasiliteter, inkludert Norges beste rulleskiløype, hvor også skilandslaget holder sine samlinger. I tillegg er det lysløype, skøyteis og treningssenter i nærheten.
Det er kort vei til både Stordammen, Blektjern og Inntakeren med fine bademuligheter. Alpine utfordringer finner du i både Haukåsbakken og Drammen Skisenter. En kort kjøretur unna ligger Drammensbadet, som er Norges største badeanlegg og byens populære elvepromenade med et yrende folkeliv, uteserveringer og grønne lunger.
Servicetilbud
Dagligvarehandelen kan gjøres ved bl.a. Kiwi, Meny, Coop Prix og Rema 1000 - alle på Konnerud. Ønsker du ytterligere servicetilbud har Konnerud et eget senter med flere butikker, apotek og kafé. Det er kort vei til Gulskogen med et rikt og variert butikkutvalg, samt Drammen sentrum med gågater, Torget Vest og Magasinet.
Det går buss fra Konnerud hvert 10. minutt til Drammen, og tog fra Drammen til Oslo ca. 4 ganger i timen. Nærmeste bussholdeplass er Skjelsbekk Nedre som ligger ca. 150 meter fra boligen. Ved å benytte bil tar det ca. 12 min til Drammen sentrum, 13 min til Gulskogen, 22 min til Liertoppen, 38 min til Kongsberg og 43 min til Oslo S.
Fra eiendommen er det gangavstand til Hallermoen barneskole og Svensedammen ungdomsskole. Det finnes et godt utvalg av både private og kommunale barnehager på Konnerud. I tillegg til flere videregående skoler i Drammen, ligger Høyskolen i Buskerud på Papirbredden, helt nede ved elva.
Bygninger
Enebolig over 2 plan med garasje.
Byggemåte
Grunnmasser av fjell, stein og jord. Bygget er oppført med såleblokk av leca, og bærende vegg midt under huset (krypkjeller). Veranda med impregnert bjelkelag og 28x120 imp terrassebord. Verandaen er bygget på støpte søyler ned til fjell. Vinduer med 2-lags isolerglass i trekarmer fra byggerår 1989. Enkelte vinduer er fra moderne tid. Saltak-konstruksjon. Dobbelkrum betongstein. Taket er bygget opp med rupanel undertak, duk, sløyfer, lekter og dobbelkrum takstein. Yttervegger er oppført som bindingsverk. Yttervegger er sannsynlig isolert etter tidligere krav og standard. Yttervegger er kledd med liggende kledning, som er malt.
For ytterligere informasjon se vedlagt protakstrapport.
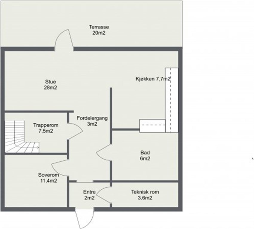
Arealer og fordeling per etasje
Primærrom: 115 kvm, Bruksareal: 130 kvm, Bruttoareal: 138 kvm
1.Etasje
Bta.:76 kvm.
Bra.: 72 kvm.
P-rom: 72 kvm.
P-rom inneholder: Stue, kjøkken, bad/vaskerom, teknisk rom, soverom, trapperom, entre og hall/fordelergang.
2.Etasje
Bta.: 45 kvm.
Bra.: 43 kvm.
P-rom: 43 kvm.
P-rom inneholder: Soverom 1, soverom 2, loftstue og wc.
Garasje
Bta.:17 kvm.
Bra.: 15 kvm.
S-rom. 15 kvm.
S-rom inneholder: Garasjerom.
Standard
Entré
Boligen har en trivelig velkomstterrasse under tak, der en hvitmalt ytterdør med vindu leder til entré. Entreen har belegg på gulv, vegger med trehvit brystning og gulmalte veggflater ellers. Himlingen har skråliggende panel og downlights.
Kjøkken
Kjøkkenet har en innredning med profilerte furufronter, vitrineskap og laminatbenkeplate med dobbel vaskekum. Over benken er det belysning. Innredningen består av overskap, hyller, benkeskap, skuffer og høyskap, og det er barløsning mot spiseplassen. På kjøkkenet medfølger Siemens kjøleskap, og det er ventilator over komfyrsplass, samt opplegg for oppvaskmaskin.
Stue
Stuen har gode vindusflater som sørger for innslipp av naturlig lys, og det er utgang til terrasse. Rommet har overflater med laminat, trepanel og teglstein som gir et tradisjonelt preg, samt en turkis fondvegg i kontrast. Hoveddelen av stuen lar seg enkelt innrede med sofamøblement, mens det ved kjøkkenet er en hyggelig spiseplass, innredet med hjørnebenk, bord og vitrineskap.
Loftstue
Loftstuen ligger mellom soverommene, noe som gir en fin ungdomsavdeling. Stuen har varme i gulv og skråhimling med belysning, for en lun atmosfære. Gulvet har mørkt parkett, veggene panel i dus gråfarge og himlingen trehvite bord. I rommet kan det møbleres med sofaløsning eller stoler og bord.
Bad/wc/vaskerom
Boligen har et bad og et vaskerom i første etasje, samt et nyere wc-rom i andre. Badet har velholdte fliser, hvorav enkelte med dekor, downlights i himling og gulvvarme. Innredningen fremstår som solid og har fronter med valnøttfarge. Innredningen består av servantskap, veggskap og speil med overlys. I rommet er det for øvrig vegghengt toalett, steamdusjkabinett og opplegg for vaskemaskin.
Vaskerom
Vaskerommet er praktisk tilliggende entré og har gulv med belegg og sluk, gulmalte vegger og et vindu som vender mot gårdsplass. Innerst i rommet er varmtvannsberederen plassert. Rommet benyttes i dag som bod.
Soverom og garderobe
Eneboligen har tre gode soverom, hvorav to lyse og ekstra romslige med gulvvarme i andre etasje. Fra det ene soverommet i andre etasje er det utgang til veranda. Soverommet i første etasje har garderobeskap, og det er lagringsplass med knevegg og innvendig bod.
Utstyr
Det er p.t. inngått avtale med selskaper for tv- og internettsignaler med Viken Fiber (Altibox).
Oppvarming - Teknisk
Boligen er oppvarmet med gulvvarme i hele andre etasje og på bad i første etasje. Ventilasjonen er basert på naturlig avtrekk. Varmtvannsberederen er på 200 liter, og sikringsskapet har automatsikringer og overspenningsvern. Viken Fiber (Altibox) er tilknyttet.
Parkering / Garasje
Det er parkering i en garasje med elektrisk port og biloppstillingsplasser på gårdsplass. Øvrig parkering etter områdets gjeldende bestemmelser.
Adkomst
Se vedlagt kartskisse på høyre side i annonsen. Ved å trykke på kartet får du enkelt tilgang til en spesifisert reiserute fra din startdestinasjon til boligen. På visningsdagen vil det bli skiltet med visningsskilter fra PrivatMegleren. Velkommen til visning!
Uteområde
Eiendommen er pent opparbeidet med plen både foran og bak huset. Prydbusker, hekk og store trær gir god skjerming til uterommet, og ekstra usjenert er det da eiendommen vender mot skogholt i bakkant. På to sider av tomten er det skigard, mens det i skillet mot eiendommen på nedsiden er fyldig, veltrimmet hekk. Gårdsplassen har lys grus, og her er det oppført garasje. Fra stue og soverom er det utgang til henholdsvis terrasse og en veranda med overbygg, hvor sol og utsyn til naturomgivelser kan nytes.
Tinglyste rettigheter og forpliktelser
Kommunen har legalpant som sikkerhet for betaling av kommunale avgifter. Legalpant er pant som følger av loven, og som ikke tinglyses. Legalpant følger derfor eiendommen ved salg. På eiendommen kan det være tinglyst erklæringer som f.eks. rett for kommunen til å vedlikeholde rørsystemer for vann- og kloakk. Disse erklæringene vil følge eiendommen ved salg. Kontakt megler for nærmere informasjon. Dette gjelder for alle eneboliger.
Servitutter
Servitutter i grunn:
Dagboknr.: 3041.
Best. om vann/kloakkledn.
Kan ikke slettes uten samtykke fra kommunen
Med flere bestemmelser
Gjelder denne registerenheten med flere
Dagboknr.: 2525.
Erklæring/avtale
Areal 812 m2
Dagboknr.: 4506.
Erklæring/avtale
Opprettelse av velforening, vedlikehold av ledningsnett, veigrøft m.v.. Heftelsen skal følge eiendommen.
Gjelder denne registerenheten med flere
Ingen andre registrerte rettigheter til eiendommen.
Vei / Vann / Avløp
Offentlig vann og avløp ifølge Drammen kommune.
Ferdigattest eller midl. brukstillatelse
Det er utstedt midlertidig brukstillatelse for bygningen ifølge Drammen kommune. Attesten ligger vedlagt i salgsoppgaven.
Verdi ved skattefastsetting
Verdien ved skattefastsetting som primærbolig kr 692 792,- pr 31.12.16
Verdien ved skattefastsetting som sekundærbolig kr 2 216 934,- pr 31.12.16
Reguleringsforhold
KOMMUNEPLANER
Id: 335
Navn: Kommuneplanens arealdel 2014-2036
Plantype: Kommuneplanens arealdel
Status Endelig: vedtatt arealplan
Ikrafttredelse: 05.10.2015
Bestemmelser: http://webhotel2.gisline.no/GisLinePlanarkiv/0602/Dokumenter/VedtaksDokumenter/KP_335_B20151015.pdf
Lovmerknad: PBL 2008
Delarealer:
Delareal: 777m
Arealbruk: Boligbebyggelse, Nåværende
Delareal: 35m
Arealbruk: Grønnstruktur, Nåværende
REGULERINGSPLANER
Id: 42B/12
Navn: REGULERINGSPLAN FOR OMRÅDET LØKKESVINGEN ØST. DRAMMEN KOMMUNE
Plantype: Eldre reguleringsplan
Status: Endelig vedtatt arealplan
Ikrafttredelse: 16.11.1984
Bestemmelser: http://webhotel2.gisline.no/GisLinePlanarkiv/0602/Dokumenter/VedtaksDokumenter/B19841116_1.PDF
Delarealer:
Delareal: 737m
Formål: Boliger
Delareal: 16 m
Formål: Offentlig friområde
Delareal: 59m
Formål: Kjørevei
For ytterligere informasjon se vedlagte reguleringskart med bestemmelser, kommuneplan, samt diverse dokumenter fra kommunen.
Faste, løpende kostnader
Nåværende eier hadde i 2017 et strømforbruk på ca. 11 627 KWh
Kommunale avgifter vann og avløp utgjør ca. kr 3 450,- per år. Det er installert vannmåler som må avleses.
Nåværende eier har bygningsforsikring i IF Skadeforsikring med polise nr. 1614009. kr. 4082,-. per år.
Andre utgifter:
- Årsgebyr renovasjon kr. 3 336,-. Standard.
- Det må påregnes kostnader til strøm, tv, internett, innboforsikring, bygningsforsikring og evt fasttelefon.
- Utgiftene vil variere avhengig av antall familiemedlemmer i husstanden, ønsket innetemperatur, egne fordelsavtaler, kanalvalg, hastighet på internett etc.
Oppgjør
Kjøpesum med tillegg av omkostninger skal være disponibelt på meglers klientkonto innen overtagelse.
Finansiering
Kontakt megler for avklaring av finansielle forhold, herunder lån til kjøp av eiendom. Privatmegleren har avtale med Nordea om formidling av lån og andre finansielle tjenester. Privatmegleren mottar godtgjørelse for dette.
Annen nyttig informasjon
Alle innvendige og utvendige arealangivelser og rombetegnelser er hentet fra vedlagte takstdokumenter. Takstmannen sin beskrivelse og rombetegnelse tar utgangspunkt i dagens bruk, uavhengig av hva som er godkjent av bygningsmyndighetene. Meglerforetaket har innhentet originale byggetegninger som ligger vedlagt i salgsoppgaven. Byggetegningene viser hva de ulike rommene er definert som. Kjøper anmodes til å sette seg inn i byggetegningene med tanke på hvilke rom som er godkjent til varig opphold.
Megler har innhentet opplysninger fra brann/feiervesen på eiendommen som ligger vedlagt i salgsoppgaven.
Med mindre annet er uttrykkelig avtalt gjelder NEFs normgivende liste over løsøre og tilbehør. Hvitevarer, som ikke er integrert i innredningen, medfølger ikke i handelen. Spotter/downlights på kjøkken er ikke operative, nåværende eier benytter seg av taklampe til belysning.
Adgang til utleie (boligformål)
Selger råder fritt over sin bolig med hensyn til utleie, enten hele eller deler av boligen.
Konsesjon / Odel
Ingen konsesjon eller odel.
Overtagelse
Etter nærmere avtale.
Eierskifteforsikring
Selger har tegnet eierskifteforsikring, og interessenter oppfordres til å sette seg inn i selgers egenerklæring før det inngis bud på eiendommen.
Budgiving
Bud kan legges inn via Privatmeglerens "gi bud-knapp" som finnes på Privatmegleren.no/eiendommens hjemmeside og i nettannonsen. Bud legges inn trygt og enkelt med bank-ID.
For mer informasjon om budgivning, se "Viktig informasjon" i salgsoppgaven.
Solgt 'som den er'
Eiendommen selges "som den er", jf. avhendingsloven (avhl) § 3-9.
Boligen har mangel i følgende tilfelle:
1) Når kjøper ikke har fått opplysninger om forhold ved boligen som selger kjente eller måtte kjenne til, og som kjøper hadde grunn til å regne med å få, jf. avhl § 3-7. Dette gjelder likevel bare dersom man kan gå ut fra at det har virket inn på avtalen at opplysningene ikke ble gitt.
2) Når selger har gitt uriktige opplysninger om boligen, jf. avhl § 3-8. Det samme gjelder dersom boligen ikke er i samsvar med opplysninger som er gitt i annonse, salgsprospekt eller ved annen markedsføring på vegne av selgeren. Dette gjelder likevel bare dersom man kan gå ut fra at opplysningene har virket inn på avtalen, og ikke på en tydelig måte er blitt rettet i tide.
3) Når boligen er i vesentlig dårligere stand enn kjøper hadde grunn til å regne med ut fra kjøpesummen og forholdene ellers, jf. avhl § 3-9.
Alle interessenter oppfordres til å sette seg godt inn i opplysninger som fremgår av salgsoppgave og vedlegg til denne, også egenerklæring fra selger. Videre oppfordres interessenter til å undersøke eiendommen nøye, gjerne sammen med fagkyndig. Deretter kan bud gis.
----------------------------------------------------------------------------
HAR DU SPØRSMÅL?
Ta kontakt med ansvarlig megler John Granly Steen på tlf. 936 93 381 eller john@privatmegleren.no dersom du har spørsmål vedrørende denne boligen.
Trenger du en markedsvurdering av din nåværende bolig? Ta kontakt på ovennevnte epost eller telefon for avtale.
For informasjon om eiendomsmegler John Granly Steen refereres det til: www.johngranlysteen.com
Ta kontakt med megler for komplett informasjon
Nærområdet

PrivatMegleren Drammen
Kristian Arthur Brunvoll
Medhjelper
Annonseinformasjon
| FINN-kode | 125722452 |
|---|---|
| Sist endret | 11. aug. 2018 11:29 |
| Referanse | 83170313 |
Annonsene kan være mangelfulle i forhold til lovpålagt opplysningsplikt. Før bindende avtale inngås oppfordres interessenter til å innhente komplett informasjon fra meglerforetaket, selger eller utleier.



















































