Bildegalleri

Stue
Solgt
Selfors
Stort, pent rekkehus over 3 plan med garasje, fine uteplasser og en flott beliggenhet rett ved elvebredden.
Prisantydning2 375 000 kr
Nøkkelinfo
- Boligtype
- Rekkehus
- Eieform
- Andel
- Soverom
- 3
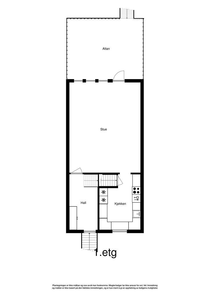
- Primærrom
- 94 m²
- Bruksareal
- 135 m²
- Etasje
- 2
- Byggeår
- 1954
- Energimerking
- G - Oransje
- Rom
- 4
- Tomteareal
- 42 175 m² (eiet)
Fasiliteter
Balkong/Terrasse
Barnevennlig
Garasje/P-plass
Hage
Offentlig vann/kloakk
Rolig
Bademulighet
Fiskemulighet
Om boligen
Velkommen til Elvebakken 7 C - Her får du en flott rekkehusleilighet over to etasjer med full kjeller. Du får en nærmest perfekt beliggenhet ved elvebredden, med fri utsikt. Leiligheten ligger som nest siste leilighet i en rekke på tilsammen 4 leiligheter. Innvendig får du en svært romslig og utbygget stue med utgang til stor terrasse og en fin hage. Fra stuen har du åpen løsning til et meget flott og godt utrustet kjøkken med blant annet side-by-side kjøleskap som er tilkoblet vann.
Denne leiligheten bør sees, og beliggenheten og stemningen bør oppleves.
Denne leiligheten bør sees, og beliggenheten og stemningen bør oppleves.
NB: Knappen for å vise hele beskrivelsen har kun en visuell effekt.
NB: Knappen for å vise hele beskrivelsen har kun en visuell effekt.
Salgsoppgaven beskriver vesentlig og lovpålagt informasjon om eiendommen
Se komplett salgsoppgaveNærområdet
Annonseinformasjon
| FINN-kode | 133073017 |
|---|---|
| Sist endret | 12. feb. 2019 19:20 |
| Referanse | 807180223 |
Annonsene kan være mangelfulle i forhold til lovpålagt opplysningsplikt. Før bindende avtale inngås oppfordres interessenter til å innhente komplett informasjon fra meglerforetaket, selger eller utleier.































