Bildegalleri

PRIVATmegleren ved John Granly Steen har gleden av å presentere denne flotte eneboligen med praktfull hage, ca. 1,9 mål tomt og garasje. Eiendommen har en utleiedel med leieinntekter på kr 9000,- pr. mnd.
Solgt
Mjøndalen Sentralt/Nedre Eiker
Modernisert enebolig med praktfull hage, tomt på 1,9 mål og garasje. Utleiedel med leieinntekter på ca. 9000,- pr. mnd.
Prisantydning5 690 000 kr
Nøkkelinfo
- Boligtype
- Enebolig
- Eieform
- Selveier
- Soverom
- 3
- Primærrom
- 243 m²
- Bruksareal
- 304 m²
- Byggeår
- 1960
- Energimerking
- F - Gul
- Rom
- 6
- Tomteareal
- 1 902 m² (eiet)
- Bruttoareal
- 323 m²
- Boligselgerforsikring
- Ja
Fasiliteter
Balkong/Terrasse
Barnevennlig
Rolig
Kabel-TV
Sentralt
Garasje/P-plass
Turterreng
Offentlig vann/kloakk
Bredbåndstilknytning
Om boligen
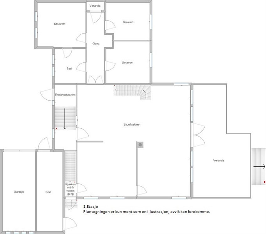
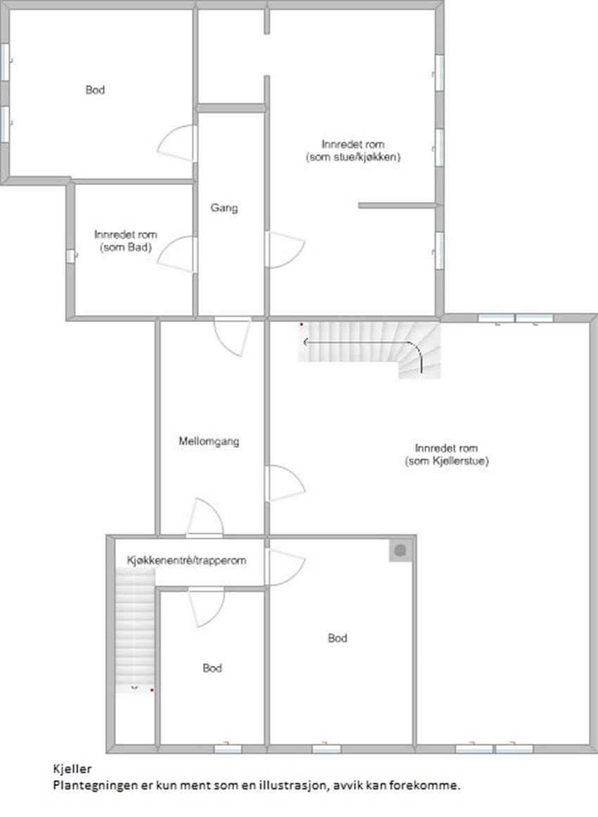
<P>Myrgata 5 er en modernisert enebolig o/2 plan med utleiedel med potensielle leieinntekter på kr 9 000,- pr. mnd., beliggende i et svært barnevennlig boligområde på Soløsjordet i Mjøndalen. Eiendommen på ca. 1,9 mål innehar flotte, velstelte plenarealer med et stort potensial. Boligen har også en trivelig terrasse med gode solforhold, dukkestue, og parkeringsplass i en garasje med sportsbod/innredet rom.</P><P>1.Etasje: P-rom: 144 kvm. Entrè/trapperom, stue, kjøkken, kjøkkenentrè/trappegang, soveromsgang, 3 soverom og bad/vaskerom.</P><P>U.etg: P-rom: 99 kvm. Innredet rom 1 innredet som kjellerstue og kjøkkenentrè/trapperom, mellomgang, gang, innredet rom 2 innredet som bad og innredet rom 3 innredet som stue/kjøkken/alkove. S-rom: 31 kvm. S-rom inneholder: 3 boder.</P><P>Garasje: S-rom: 31 kvm. Garasjerom, bod</P>
NB: Knappen for å vise hele beskrivelsen har kun en visuell effekt.
NB: Knappen for å vise hele beskrivelsen har kun en visuell effekt.
Salgsoppgaven beskriver vesentlig og lovpålagt informasjon om eiendommen
Se komplett salgsoppgaveNyttige lenker
Nærområdet

PrivatMegleren Drammen
Kun det beste på dine vegne
Annonseinformasjon
| FINN-kode | 133352670 |
|---|---|
| Sist endret | 07. mars 2019 02:11 |
| Referanse | 83180421 |
Annonsene kan være mangelfulle i forhold til lovpålagt opplysningsplikt. Før bindende avtale inngås oppfordres interessenter til å innhente komplett informasjon fra meglerforetaket, selger eller utleier.




























































