Bildegalleri

Velkommen til Unnebergveien 5.
Inaktiv
Trosvik / Fredrikstad sentralt
BUD AVSLÅTT - Flott beliggende og gedigen enebolig med mange kvaliteter. Kort avstand til byen, skoler, barnehage , mark
Prisantydning11 500 000 kr
Nøkkelinfo
- Boligtype
- Enebolig
- Eieform
- Selveier
- Soverom
- 5
- Primærrom
- 346 m²
- Bruksareal
- 403 m²
- Etasje
- 3
- Byggeår
- 1957
- Energimerking
- E - Gul
- Rom
- 7
- Tomteareal
- 930 m² (festet)
- Festeavgift
- 2 651 kr
- Bruttoareal
- 435 m²
Fasiliteter
Balkong/Terrasse
Barnevennlig
Bredbåndstilknytning
Garasje/P-plass
Hage
Kabel-TV
Offentlig vann/kloakk
Parkett
Peis/Ildsted
Rolig
Sentralt
Turterreng
Lademulighet
Visning
Velkommen! Fredrikstad 346 m2/Utleiedel/Meget sentralt
Det blir gjennomført kun privatvisninger etter avtale med oss eller selger på tlf: 907 20 402, samt til oppsatte dager!
Kontakt megler via linken VISNINGSPÅMELDING for å avtale tidspunkt for din visning. Det vil ikke bli avholdt visning uten påmelding, og vi må vite hvor mange du kommer i følge med. Husk å bruke munnbind, samt å lese salgsoppgaven digitalt før visning.
VisningspåmeldingOm boligen
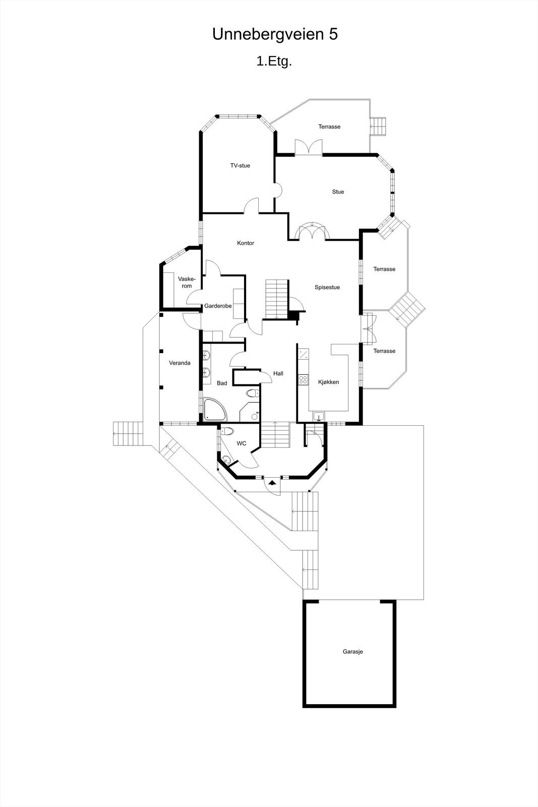
Velkommen til Unnebergveien 5
- Stor, velholdt og herskapelig villa.
- Betydelig modernisert de siste årene.
- Totalt ombygget i 1987 med ny etasje, stuer, karnapper, tak, vinduer, vegger.
- Svært lite igjen fra byggeår 1957.
- Kan selges med eiet tomt om viktig for kjøper.
- Nydelig område bak huset uten innsyn og sol hele dagen.
- 2-roms utleiedel på ca. 65 kvm.
- Utleiedel gir nå kr 10.000,- pr mnd.
- Parkmessig og privat eiendom.
- Solrikt med storslåtte uteplasser.
- Lekkert kjøkken med hvitevarer.
- Dagligstue, tv-stue og kontor.
- Spisestue med flott innsatspeis.
- Stort velværebad med boblekar.
- Bad, gjestetoalett og eget vaskerom.
- Garderoberom, boder og et kjølerom.
- Stor, velholdt og herskapelig villa.
- Betydelig modernisert de siste årene.
- Totalt ombygget i 1987 med ny etasje, stuer, karnapper, tak, vinduer, vegger.
- Svært lite igjen fra byggeår 1957.
- Kan selges med eiet tomt om viktig for kjøper.
- Nydelig område bak huset uten innsyn og sol hele dagen.
- 2-roms utleiedel på ca. 65 kvm.
- Utleiedel gir nå kr 10.000,- pr mnd.
- Parkmessig og privat eiendom.
- Solrikt med storslåtte uteplasser.
- Lekkert kjøkken med hvitevarer.
- Dagligstue, tv-stue og kontor.
- Spisestue med flott innsatspeis.
- Stort velværebad med boblekar.
- Bad, gjestetoalett og eget vaskerom.
- Garderoberom, boder og et kjølerom.
NB: Knappen for å vise hele beskrivelsen har kun en visuell effekt.
NB: Knappen for å vise hele beskrivelsen har kun en visuell effekt.
Salgsoppgaven beskriver vesentlig og lovpålagt informasjon om eiendommen
Se komplett salgsoppgaveNyttige lenker
Nærområdet
Krogsveen Fredrikstad
Verdien av en god megler.
Annonseinformasjon
| FINN-kode | 181770539 |
|---|---|
| Sist endret | 09. juli 2021 14:00 |
| Referanse | KR29.2055 |
Annonsene kan være mangelfulle i forhold til lovpålagt opplysningsplikt. Før bindende avtale inngås oppfordres interessenter til å innhente komplett informasjon fra meglerforetaket, selger eller utleier.





















































































