Bildegalleri

Kjerstin Falkum (922 04 707) ved Schala & Partners har gleden av å presentere denne unike topp-/studioleiligheten i i "Tårnet" på Torshov!
Råfin, arkitekttegnet studio-/toppleil. i "Tårnet" på Torshov | Solrik takterrasse på 15 kvm | Heis | Modernisert i 2013
Nøkkelinfo
- Boligtype
- Leilighet
- Eieform
- Andel
- Soverom
- 1
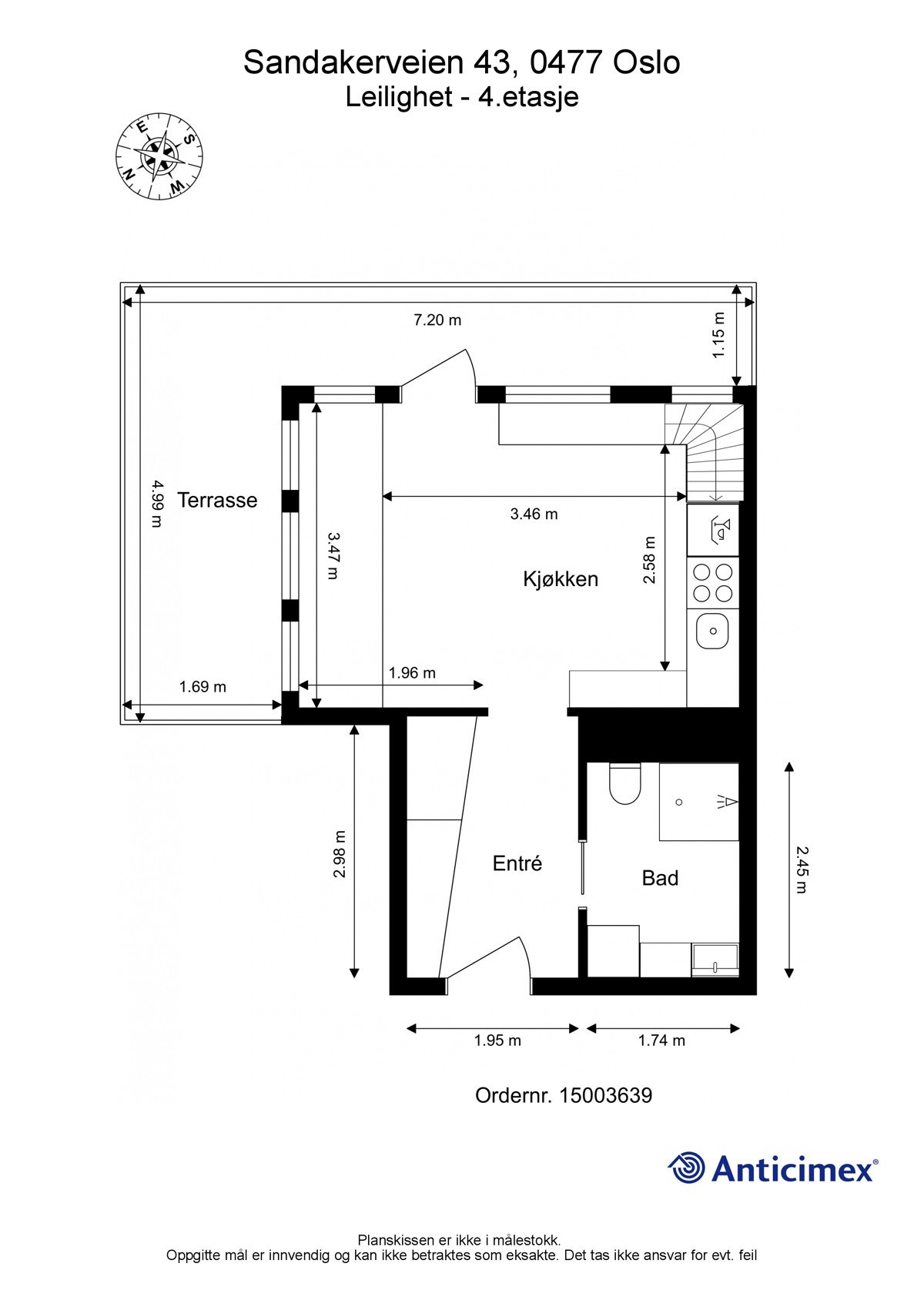
- Primærrom
- 29 m²
- Bruksareal
- 29 m²
- Etasje
- 4
- Byggeår
- 1940
- Energimerking
- G - Rød
- Rom
- 1
- Tomteareal
- 2 235 m² (eiet)
Fasiliteter
Om boligen
Velkommen til en særegen studioleilighet i "Tårnet" på Torshov. Dette er en toppleilighet (med heisadkomst), i et fabrikkbygg som ble modernisert og omgjort til leiligheter i 2013. Svært arealeffektiv planløsning, generøs takhøyde (nesten 4m), samt store vindusflater fra flere sider som slipper inn mye lys. Ikke ofte muligheter som denne dukker opp i markedet!
- Fantastisk takterrasse på ca. 15 kvm med supre solforhold og utsikt
- Flott stue med store vindusflater
- Ingen innsyn
- Arkitekttegnede løsninger
- Pent kjøkken med integrerte hvitevarer
- Praktisk sovehems i heltre eik
- Lekkert bad fra 2013 med våtromsbevis (se tilstandsrapport)
- Entré med plassbygd garderobe
- Bod i oppgang
- Heis
- Varmtvann, TV/bredbånd inkl.
- Garasje i U.etg med muligheter for leie + sykkelparkering
- Lave omk.
- Ingen forkjøp
- Kort vei til "alt"!
Salgsoppgaven beskriver vesentlig og lovpålagt informasjon om eiendommen
Se komplett salgsoppgaveNyttige lenker
Nærområdet
&Partners Carl Berner
Annonseinformasjon
| FINN-kode | 193512648 |
|---|---|
| Sist endret | 05. mars 2021 17:37 |
| Referanse | 17200147 |
Annonsene kan være mangelfulle i forhold til lovpålagt opplysningsplikt. Før bindende avtale inngås oppfordres interessenter til å innhente komplett informasjon fra meglerforetaket, selger eller utleier.












































