Bildegalleri

Velkommen til Heimdalsgata 4 - Presentert av Steinar Hånes (957 71 033)
Lys og moderne 3-roms hjørneleilighet med 7 m² balkong | Garasjemulighet* | Heis | IN-ordning og sikringsfond
Nøkkelinfo
- Boligtype
- Leilighet
- Eieform
- Andel
- Soverom
- 2
- Primærrom
- 60 m²
- Bruksareal
- 60 m²
- Etasje
- 2
- Byggeår
- 2006
- Energimerking
- D - Mørkegrønn
- Rom
- 3
- Tomteareal
- 2 192 m²
Fasiliteter
Visning
Om boligen
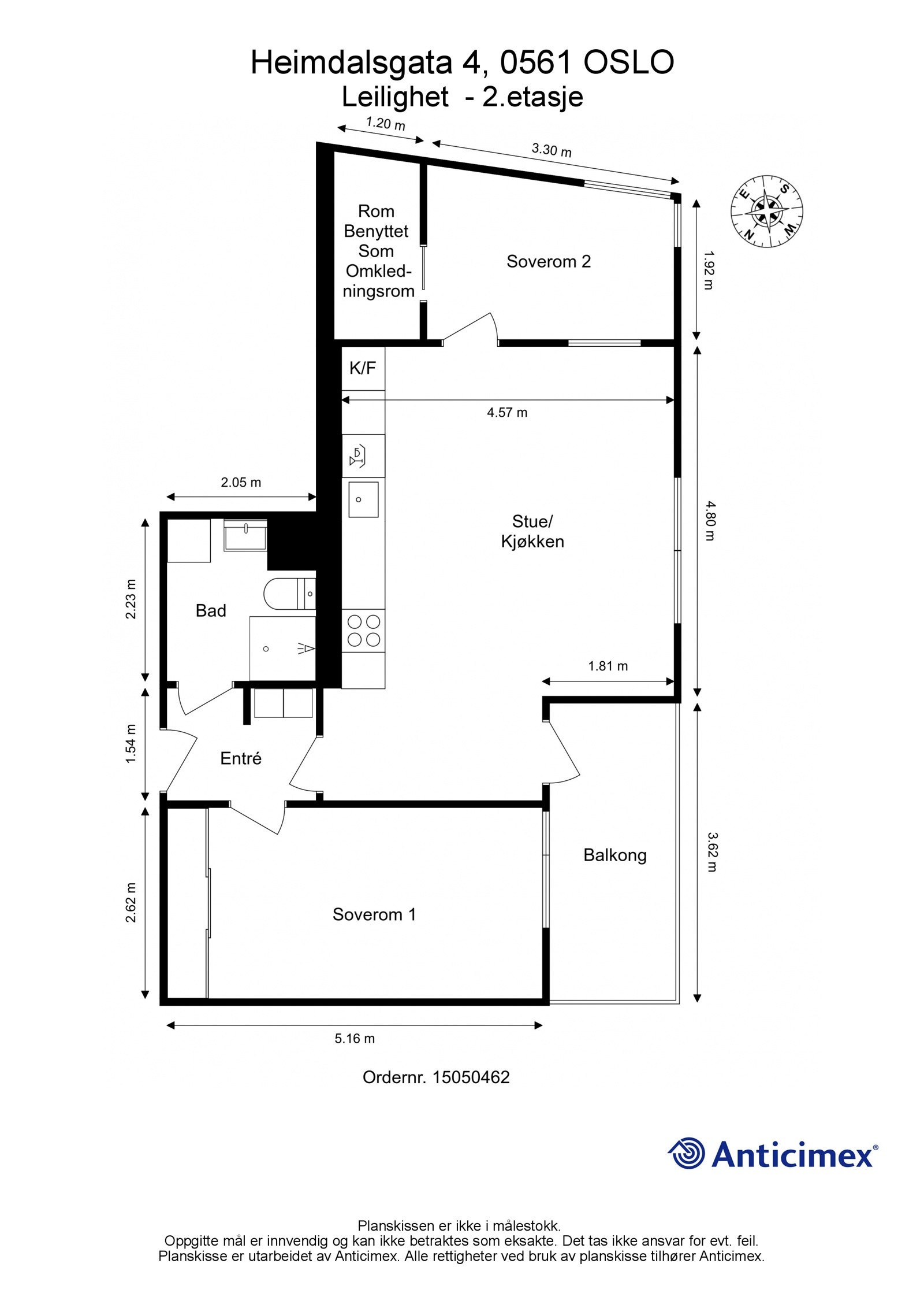
Velkommen til Heimdalsgata 4! En lys og romslig 3-roms hjørneleilighet med 7 m² sydvestvendt balkong i nyere bygg fra 2006. Boligen ligger fint til i byggets 2. etg med heisadkomst. Leiligheten har gode kvaliteter som god planløsning, store vinduer, romslig stue med gode møbleringsmuligheter, kjøkken med integrerte hvitevarer og to gode soverom.
Boligen har ellers en sentral og attraktiv beliggenhet med kort avstand til butikker, grønne parker, kaféer og kollektivtransport.
- Sydvestvendt balkong på 7 m²
- Mulighet for leie/kjøp av garasjeplass ved ledighet
- Praktisk omkledningsrom
- Integrerte hvitevarer
- Opplegg for vaskemaskin
- Fjernvarme
- IN-ordning og sikringsfond
- Ved nedbetaling av fellesgjeld blir felleskostnader kun ca kr 3.400,- pr mnd
- 1 bod i kjeller på 5 m²
- Ingen dokumentavgift eller forkjøpsrett
Salgsoppgaven beskriver vesentlig og lovpålagt informasjon om eiendommen
Se komplett salgsoppgaveNyttige lenker
Nærområdet
&Partners Grünerløkka
Annonsene kan være mangelfulle i forhold til lovpålagt opplysningsplikt. Før bindende avtale inngås oppfordres interessenter til å innhente komplett informasjon fra meglerforetaket, selger eller utleier.






























