Bildegalleri

EiendomsMegler 1 ved Jonas Andreassen har gleden av å presentere et flott rekkehus i Nedre flatåsveg 194!
STILRENT OG ROMSLIG REKKEHUS OVER TRE PLAN | Flere uteplasser og flott hage | Kjøkken TG1 | Ingen dok.avgift | Vedfyring
Nøkkelinfo
- Boligtype
- Rekkehus
- Eieform
- Andel
- Soverom
- 3
- Primærrom
- 141 m²
- Bruksareal
- 153 m²
- Byggeår
- 1980
- Energimerking
- E - Rød
- Rom
- 5
- Tomteareal
- 46 291 m² (eiet)
Fasiliteter
Om boligen
Her får du et flott og romslig rekkehus over 3 plan med god planløsning. Rekkehuset ligger i et stille og barnevennlig område på Flatåsen. Nærhet til flotte tur- og friluftsområder som bl.a. Granåsen skianlegg og Saupstad skisenter, noe som gir gode rekreasjonsmuligheter sommer og vinter.
Blant kvaliteter verdt å nevne:
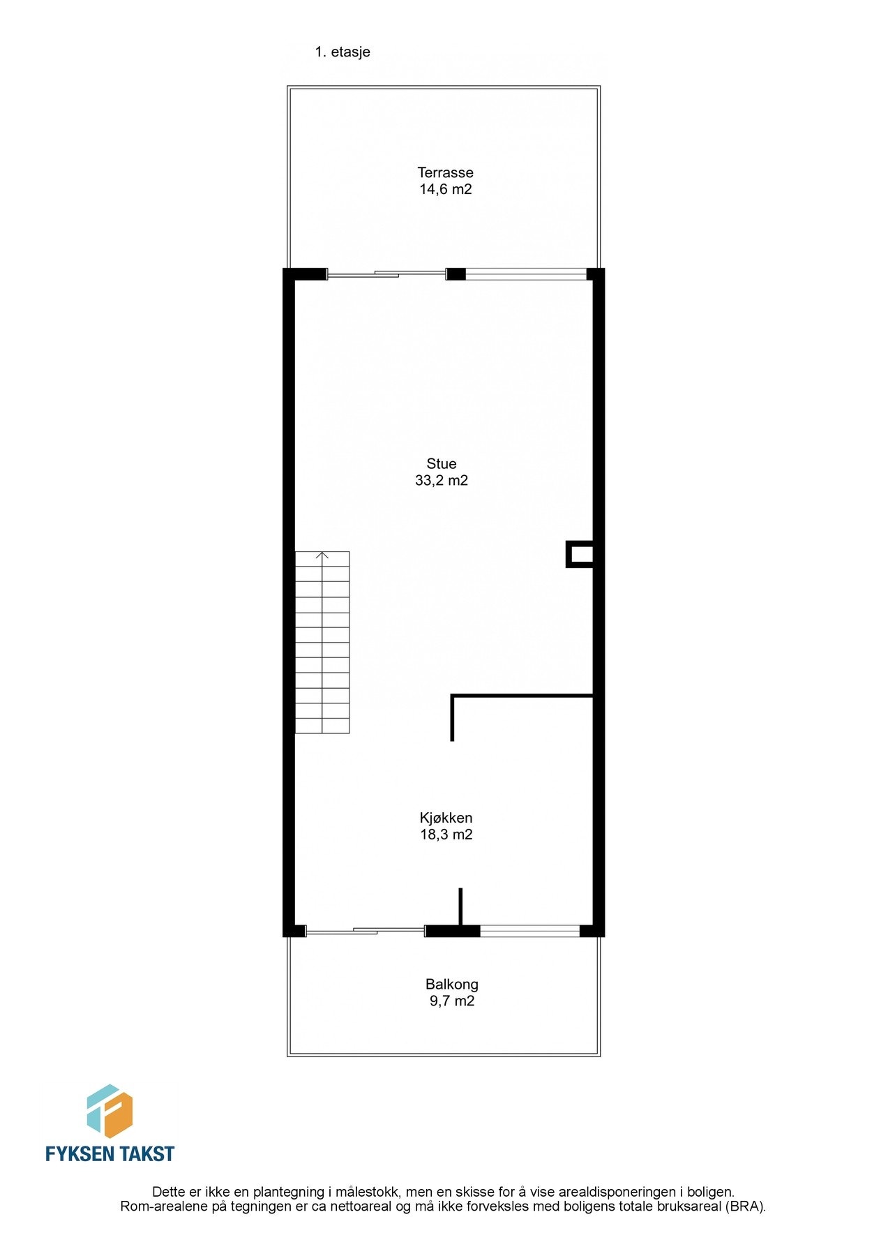
- Innholdsrikt rekkehus med bruksareal på 153 kvm.
- Store oppholdsrom som er lett å innrede.
- Delikat stue med direkte utgang til herlig uteplass.
- Kjøkkenet ble oppusset i 2010 og har fått TG1 av takstmann.
- 2 stk. uteplasser samt koselig hage fra 1.etasje.
- Koselig kjellerstue med gode møbleringsmuligheter.
- 3 stk. soverom.
- Eget vaskerom.
- Vedfyring.
- Godt med bodplass.
- Ingen dokumentavgift.
Velkommen til visning!
Salgsoppgaven beskriver vesentlig og lovpålagt informasjon om eiendommen
Se komplett salgsoppgaveNyttige lenker
Nærområdet
EiendomsMegler 1 Trondheim sentrum, Søndre gate
Prisstatistikk
Nedre Flatåsveg 194
på annonsen
prisantydning per kvadratmeter
Prisfordeling
Pris per m² ligger 8 379 kr under snittet for rekkehus i Trondheim Sør.
Grafen viser antall rekkehus solgt i Trondheim Sør siste året fordelt på pris per m² - totalt 178 rekkehus
Antall boliger
Kvadratmeterpris tilsvarer prisantydning pluss fellesgjeld per kvadratmeter (p-rom eller BRA-i). Prisene i grafen er avrundet til nærmeste 1000 kr.
Annonsene kan være mangelfulle i forhold til lovpålagt opplysningsplikt. Før bindende avtale inngås oppfordres interessenter til å innhente komplett informasjon fra meglerforetaket, selger eller utleier.























