Bildegalleri

Velkommen til Tryms vei 9 på Gullhaug i Holmestrand
Solgt
Holmestrand
Innholdsrik fin enebolig med meget solrik fin beliggenhet på Gullhaug -Solrikt ,barnevennlig nær barnehage.
Prisantydning4 990 000 kr
Nøkkelinfo
- Boligtype
- Enebolig
- Eieform
- Selveier
- Soverom
- 4
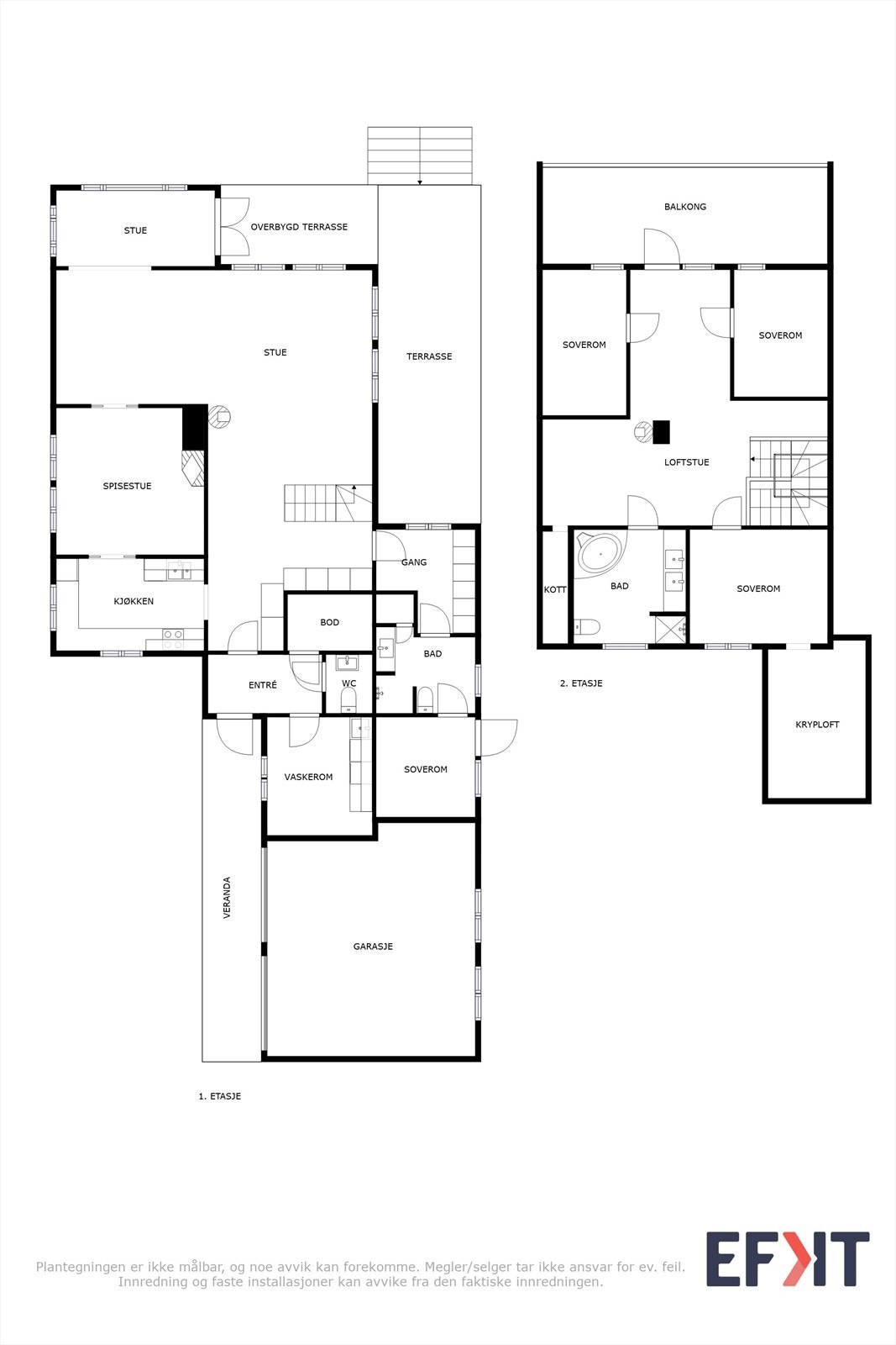
- Internt bruksareal
- 202 m² (BRA-i)
- Bruksareal
- 235 m²
- Eksternt bruksareal
- 33 m² (BRA-e)
- Balkong/Terrasse
- 61 m² (TBA)
- Byggeår
- 1983
- Energimerking
- F - Gul
- Rom
- 6
- Tomteareal
- 916 m² (eiet)
Fasiliteter
Alpinanlegg
Balkong/Terrasse
Barnevennlig
Garasje/P-plass
Hage
Offentlig vann/kloakk
Peis/Ildsted
Rolig
Utsikt
Turterreng
Om boligen
Velkommen til Tryms vei 9 på Gullhaug. Her får du en meget innholdsrik eiendom med 4 soverom og 2 bad, romslige oppholdsrom, loftstue og vinterstue.
Eiendommen har en flott beliggenhet i solrike og barnevennlige omgivelser nær lysløype, flere barnehager, skole og forretninger. Gode fritidstilbud i umiddelbar nærhet.
Stor gårdsplass med belegningsstein. Skiferbelagt svalgang fra dobbel garasje til inngang med plass til sittegruppe. Store delvis overbygde solrike terrasser med utsikt mot Gullhaug.
Stor usjenert beplantet hage som grenser til skogsterreng.
Gode pendlermuligheter. Kort vei til kjøring E-18,hvor det tar ca. 1 time å kjøre til Oslo, 25 min til Drammen og Tønsberg. Det er ca. 7 km til byens sentrum og togstasjon. Togturen til Oslo tar ca. 50 min.
Eiendommen har en flott beliggenhet i solrike og barnevennlige omgivelser nær lysløype, flere barnehager, skole og forretninger. Gode fritidstilbud i umiddelbar nærhet.
Stor gårdsplass med belegningsstein. Skiferbelagt svalgang fra dobbel garasje til inngang med plass til sittegruppe. Store delvis overbygde solrike terrasser med utsikt mot Gullhaug.
Stor usjenert beplantet hage som grenser til skogsterreng.
Gode pendlermuligheter. Kort vei til kjøring E-18,hvor det tar ca. 1 time å kjøre til Oslo, 25 min til Drammen og Tønsberg. Det er ca. 7 km til byens sentrum og togstasjon. Togturen til Oslo tar ca. 50 min.
NB: Knappen for å vise hele beskrivelsen har kun en visuell effekt.
NB: Knappen for å vise hele beskrivelsen har kun en visuell effekt.
Salgsoppgaven beskriver vesentlig og lovpålagt informasjon om eiendommen
Se komplett salgsoppgaveNyttige lenker
Nærområdet
Eiendomsmegler 1 Holmestrand
et foretak i SpareBank 1 Sør-Norge konsernet
Prisstatistikk
Tryms vei 9
15 384 klikk
på annonsen
24 702 kr
prisantydning per kvadratmeter
Prisfordeling
Pris per m² ligger 4 298 kr under snittet for eneboliger i Holmestrand.
Grafen viser antall eneboliger solgt i Holmestrand siste året fordelt på pris per m² - totalt 220 eneboliger
Antall boliger
Kvadratmeterpris tilsvarer prisantydning pluss fellesgjeld per kvadratmeter (p-rom eller BRA-i). Prisene i grafen er avrundet til nærmeste 1000 kr.
Annonseinformasjon
| FINN-kode | 347899763 |
|---|---|
| Sist endret | 20. aug. 2025 06:50 |
| Referanse | 7029240009 |
Annonsene kan være mangelfulle i forhold til lovpålagt opplysningsplikt. Før bindende avtale inngås oppfordres interessenter til å innhente komplett informasjon fra meglerforetaket, selger eller utleier.





















































