Bildegalleri

Camilla Forsland v/EiendomsMegler 1 har gleden av å presentere Stokkanhaugen 34!
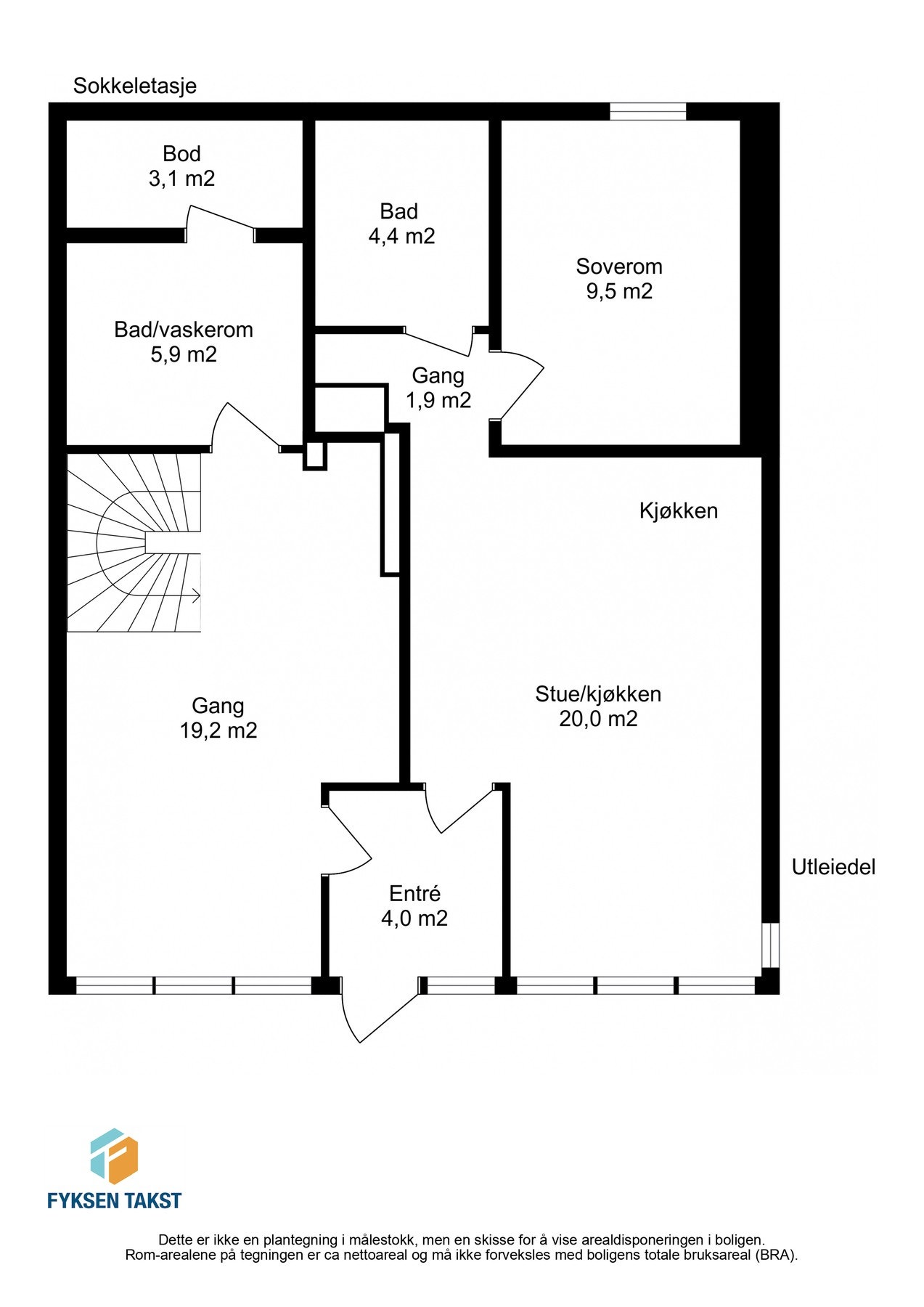
Innholdsrik og flott enebolig på 202 m² BRA-i over 3 plan | Utleiedel | Dobbeltgarasje | Familievennlig beliggenhet
Nøkkelinfo
- Boligtype
- Enebolig
- Eieform
- Selveier
- Soverom
- 4
- Internt bruksareal
- 202 m² (BRA-i)
- Bruksareal
- 276 m²
- Eksternt bruksareal
- 74 m² (BRA-e)
- Balkong/Terrasse
- 33 m² (TBA)
- Etasje
- 3
- Byggeår
- 1988
- Energimerking
- E - Rød
- Tomteareal
- 308 m² (eiet)
Fasiliteter
Om boligen
Nå har du muligheten til å sikre deg en meget innholdsrik enebolig, med attraktiv og familievennlig beliggenhet på Stokkanhaugen. Eiendommen befinner seg i et rolig boområde, med både lekeplasser og fotballbane i umiddelbar nærhet. Det er også kort avstand til blant annet helårs turterreng i Estenstadmarka.
Av kvaliteter trekkes fram:
- Gjennomgående god planløsning
- Romslig stue i 1. etasje på hele 46,8 kvm, samt loftstue på 18,9 kvm
- Egen utleiedel som p.t. er utleid for kroner 6.500, - per måned
- 3 Romslige soverom, samt 1 soverom i utleiedel
- Flere flotte uteplasser med gode solforhold
- Parkering i dobbeltgarasje samt på egen tomt
- Beliggenhet i et rolig og familievennlig område
Noen av boligens rom/bygningsdeler har fått TG2/TG3 i rapport av takstmann (se salgsoppgave)
Velkommen til en hyggelig visning!
Salgsoppgaven beskriver vesentlig og lovpålagt informasjon om eiendommen
Se komplett salgsoppgaveNyttige lenker
Nærområdet
EiendomsMegler 1 Grilstadporten
Prisstatistikk
Stokkanhaugen 34
på annonsen
prisantydning per kvadratmeter
Prisfordeling
Pris per m² ligger 6 357 kr under snittet for eneboliger i Trondheim Øst.
Grafen viser antall eneboliger solgt i Trondheim Øst siste året fordelt på pris per m² - totalt 262 eneboliger
Antall boliger
Kvadratmeterpris tilsvarer prisantydning pluss fellesgjeld per kvadratmeter (p-rom eller BRA-i). Prisene i grafen er avrundet til nærmeste 1000 kr.
Annonseinformasjon
| FINN-kode | 348863972 |
|---|---|
| Sist endret | 10. aug. 2025 08:13 |
| Referanse | 33240063 |
Annonsene kan være mangelfulle i forhold til lovpålagt opplysningsplikt. Før bindende avtale inngås oppfordres interessenter til å innhente komplett informasjon fra meglerforetaket, selger eller utleier.































