Bildegalleri

Solgt
Velkommen til Haugenstua
Arealeffektiv 3-roms sentralt på Haugenstua med balkong, nærhet til togstasjon og marka V.V. og fyring inkl. *P-plass
Prisantydning3 000 000 kr
Nøkkelinfo
- Boligtype
- Leilighet
- Eieform
- Andel
- Soverom
- 2
- Internt bruksareal
- 74 m² (BRA-i)
- Bruksareal
- 76 m²
- Eksternt bruksareal
- 2 m² (BRA-e)
- Etasje
- 4
- Byggeår
- 1969
- Energimerking
- G - Mørkegrønn
- Rom
- 3
- Tomteareal
- 72 637 m² (eiet)
Fasiliteter
Barnevennlig
Balkong/Terrasse
Heis
Offentlig vann/kloakk
Parkett
Turterreng
Fellesvaskeri
Sentralt
Moderne
Rolig
Om boligen
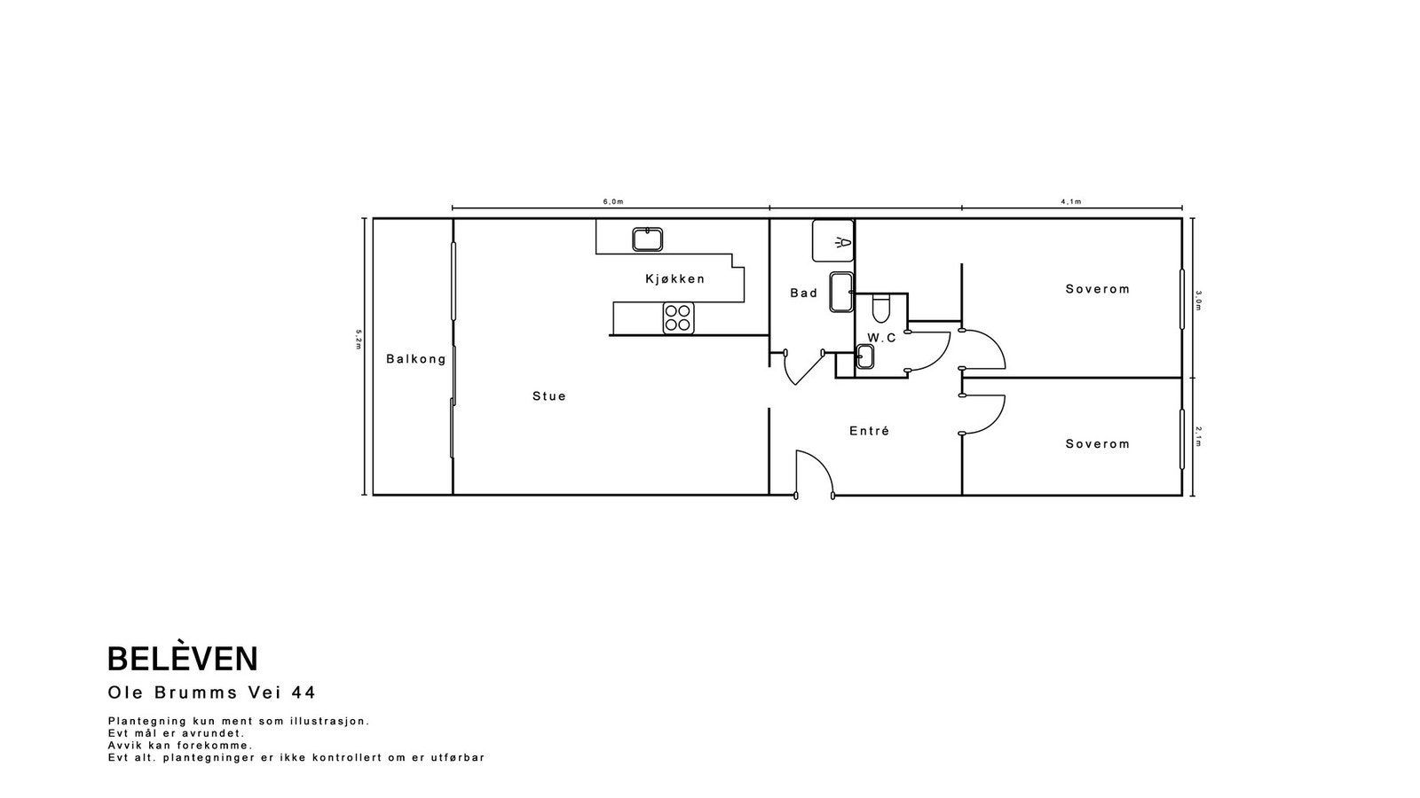
I et sentralt område på Haugenstua finner du Ole Brumms vei 44. En lys og gjennomgående andelsleilighet beliggende i byggets 4.etasje, med flott utsyn over nærområdet. Her bor du rolig til i et populært område med kort vei til de fleste servicetilbud, kafeer og spisesteder, offentlig kommunikasjon og flotte turområder. Leiligheten har åpen stue- og spisestue løsning med god plass til spisestue. Klassisk kjøkken fra Kvik med gode skap- og benkeplass, samt hvitevarer fra Bosch. Bad, toalett og to rolige soverom, hvorav et med tilgang til walk-in-closet. Fra stuen er det utgang til balkong på ca. 7,3 kvm.
Nærhet til turområder som blant annet Lillomarka, Østmarka og Gjelleråsmarka med sine mange skogsveier, fiskevann og lysløyper åpner for gode turmuligheter sommer som vinter. Borettslaget har store, fine grøntarealer og flere lekeplasser som ligger godt skjermet for trafikk. Det er mulig å leie parkeringsplass. Varmtvann og fyring er inkl. i felleskostnadene. Kjellerbod på ca. 2,5 kvm.
Nærhet til turområder som blant annet Lillomarka, Østmarka og Gjelleråsmarka med sine mange skogsveier, fiskevann og lysløyper åpner for gode turmuligheter sommer som vinter. Borettslaget har store, fine grøntarealer og flere lekeplasser som ligger godt skjermet for trafikk. Det er mulig å leie parkeringsplass. Varmtvann og fyring er inkl. i felleskostnadene. Kjellerbod på ca. 2,5 kvm.
NB: Knappen for å vise hele beskrivelsen har kun en visuell effekt.
NB: Knappen for å vise hele beskrivelsen har kun en visuell effekt.
Salgsoppgaven beskriver vesentlig og lovpålagt informasjon om eiendommen
Se komplett salgsoppgaveNærområdet
Belèven Eiendomsmegling
Prisstatistikk
Ole Brumms vei 44
7 917 klikk
på annonsen
44 178 kr
prisantydning per kvadratmeter
Prisfordeling
Pris per m² ligger 12 822 kr under snittet for leiligheter i Stovner.
Grafen viser antall leiligheter solgt i Stovner siste året fordelt på pris per m² - totalt 357 leiligheter
Antall boliger
Kvadratmeterpris tilsvarer prisantydning pluss fellesgjeld per kvadratmeter (p-rom eller BRA-i). Prisene i grafen er avrundet til nærmeste 1000 kr.
Annonsene kan være mangelfulle i forhold til lovpålagt opplysningsplikt. Før bindende avtale inngås oppfordres interessenter til å innhente komplett informasjon fra meglerforetaket, selger eller utleier.
























