Bildegalleri

Silje Dammen ved EIE Løren har gleden av å ønske velkommen til Freserveien 17!
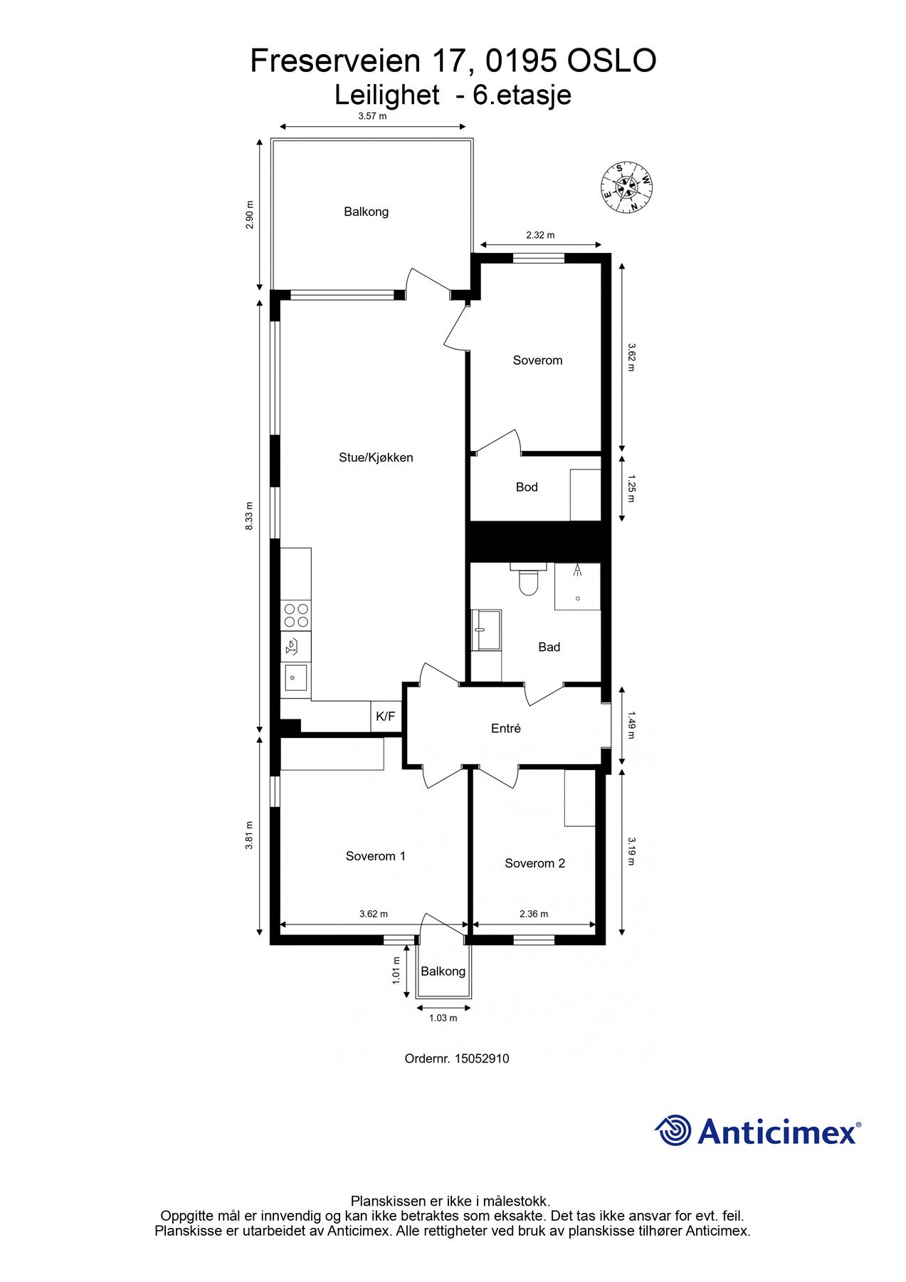
Tiltalende 4-roms endeleilighet med god takhøyde og solrik balkong. Garasjeplass. Heis. IN-ordning. V.v/fyring inkl.
Nøkkelinfo
- Boligtype
- Leilighet
- Eieform
- Andel
- Soverom
- 3
- Internt bruksareal
- 76 m² (BRA-i)
- Bruksareal
- 81 m²
- Eksternt bruksareal
- 5 m² (BRA-e)
- Balkong/Terrasse
- 11 m² (TBA)
- Etasje
- 6
- Byggeår
- 2018
- Energimerking
- D - Mørkegrønn
- Tomteareal
- 6 711 m² (eiet)
Fasiliteter
Om boligen
Dette er en lys, moderne 4-roms endeleilighet fra 2018 med to balkonger. Store vindusflater fra flere sider som slipper inn mye naturlig lys kombinert med takhøyden på 2,8 meter og den gjennomgående, gode planløsningen gir leiligheten en herlig atmosfære og romfølelse
Boligen inneholder et lyst kjøkken med mye plass og integrerte hvitevarer i åpen løsning mot stuen, samt tre gode soverom. Videre er det et flislagt bad med opplegg for vaskemaskin, innvendig bod og en lys entré. Beboerne har også gleden av en felles takterrasse.
Med boligen følger en garasjeplass og kjellerbod på 5 kvm. A-konto varmtvann og oppvarming, tv/bredbånd er inkludert.
Kværnerbyen ligger mellom Vålerenga, Gamlebyen og Bjørvika. Her bor du kun fem minutter unna Oslo sentrum, med tilgang til alle servicetilbud man kan tenke seg.
Velkommen til en hyggelig visning!
Salgsoppgaven beskriver vesentlig og lovpålagt informasjon om eiendommen
Se komplett salgsoppgaveNyttige lenker
Nærområdet
EIE eiendomsmegling Løren
Prisstatistikk
Freserveien 17
på annonsen
prisantydning per kvadratmeter
Prisfordeling
Pris per m² ligger 18 232 kr under snittet for leiligheter i Gamle Oslo.
Grafen viser antall leiligheter solgt i Gamle Oslo siste året fordelt på pris per m² - totalt 2 103 leiligheter
Antall boliger
Kvadratmeterpris tilsvarer prisantydning pluss fellesgjeld per kvadratmeter (p-rom eller BRA-i). Prisene i grafen er avrundet til nærmeste 1000 kr.
Annonseinformasjon
| FINN-kode | 351413872 |
|---|---|
| Sist endret | 03. mars 2025 12:43 |
| Referanse | 71230331 |
Annonsene kan være mangelfulle i forhold til lovpålagt opplysningsplikt. Før bindende avtale inngås oppfordres interessenter til å innhente komplett informasjon fra meglerforetaket, selger eller utleier.
















































