Bildegalleri

Eiendomsmegler / Salgsleder / Partner Ken Martin Wigand presenterer Nordre Toppe 35
VIDUNDERLIG TOPPLEILIGHET MED MISUNNELSESVERDIG SJØUTSIKT, ETTERMIDDAG / KVELDSSOL PÅ DEN FREMTIDIGE HELÅRSBALKONGEN.
Nøkkelinfo
- Boligtype
- Leilighet
- Eieform
- Andel
- Soverom
- 2
- Internt bruksareal
- 72 m² (BRA-i)
- Bruksareal
- 72 m²
- Balkong/Terrasse
- 7 m² (TBA)
- Etasje
- 3
- Byggeår
- 1972
- Energimerking
- F - Rød
- Rom
- 3
- Tomteareal
- 110 744 m² (eiet)
- Boligselgerforsikring
- Ja
Fasiliteter
Om boligen
450 meter fra Kiwi, 500 meter fra busstoppet og 600 meter fra EVO ligger Nordre Toppe 35. En beliggenhet som uten problemer vil overbevise deg som ønsker å bo i nærheten av varierte turmuligheter og kollektivtransport med hyppige avganger. Her kommer dere hjem til en stilren og romslig treroms med en av borettslagets beste beliggenheter. På balkongen dukker solstrålene opp tidlig ettermiddag og forsvinner ikke før sen kveld. Om veldig kort tid blir leiligheten litt større når blokken er neste i rekken til at balkongen blir omgjort til en helårsbalkong med stor skyvedør og praktisk varmepumpe. Forkjøpsretten har allerede blitt utlyst i forkant av salget for rask avklaring.
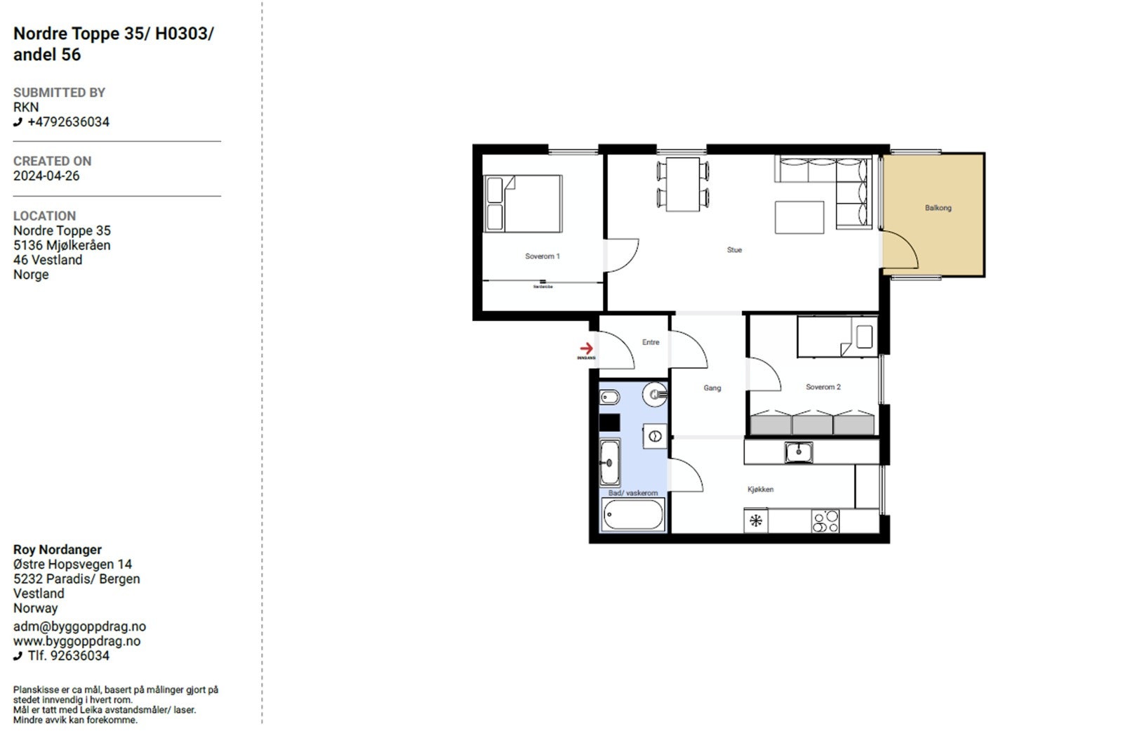
Tredje etasje: Entré, stue, fremtidig helårsbalkong, kjøkken badeværelse og to soveværelse.
Salgsoppgaven beskriver vesentlig og lovpålagt informasjon om eiendommen
Se komplett salgsoppgaveNyttige lenker
Nærområdet
Proaktiv Eiendomsmegling Sandviken & Bergen Nord

Sara Wilhelmsen
Trainee
Annonsene kan være mangelfulle i forhold til lovpålagt opplysningsplikt. Før bindende avtale inngås oppfordres interessenter til å innhente komplett informasjon fra meglerforetaket, selger eller utleier.








































