Bildegalleri

Stian M. Baklie har gleden av å presentere Hammerstads gate 11C
Inaktiv
Majorstuen
Lekker 3-roms toppleilighet med stor hems - *120 kvm gulvareal *Mulig takterrasse, se bilder - Peis -Flott beliggenhet
Prisantydning7 990 000 kr
Nøkkelinfo
- Boligtype
- Leilighet
- Eieform
- Selveier
- Soverom
- 2
- Internt bruksareal
- 78 m² (BRA-i)
- Bruksareal
- 83 m²
- Eksternt bruksareal
- 5 m² (BRA-e)
- Etasje
- 4
- Byggeår
- 1902
- Energimerking
- G - Rød
- Rom
- 3
- Tomteareal
- 632 m² (eiet)
Fasiliteter
Bredbåndstilknytning
Offentlig vann/kloakk
Peis/Ildsted
Rolig
Sentralt
Utsikt
Visning
KONTAKT MEGLER PÅ 411 05 849 FOR PRIVATVISNING
OBS! Alle våre visninger har påmelding. Meld deg på visning ved å trykke på lenken visningspåmelding. Passer ikke tidspunktet, send megler en e-post og avtal tid for privatvisning.
VisningspåmeldingOm boligen
Velkommen til en meget pen og lys toppleilighet med attraktiv beliggenhet.
Boligen er innbydende og har en flott kombinasjon av moderne løsninger og klassisk sjarm. Hoveddelen av boligen ligger i fjerde etasje og det er innvendig trapp opp til hems. *Hemsen kan brukes som oppholdsrom med 40 kvm gulvareal, hos naboen er noe innlemmet som primærareal etter senking av gulv for totalt 98 kvm p-rom.
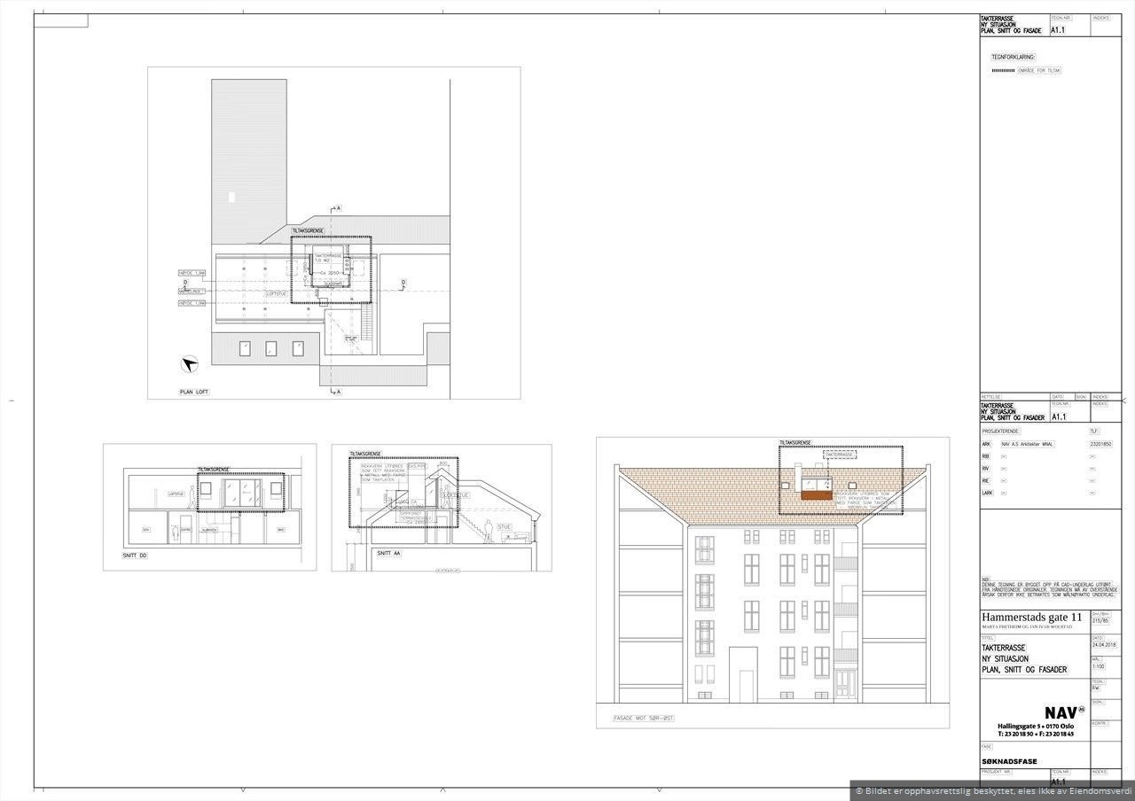
*Naboen har bygget ut hemsen med takterrasse og soverom, og det antas at dette også er mulig for denne seksjonen, det må i så fall søkes byantikvaren og plan og bygningsetaten på kjøpers ansvar. Se bilder fra naboens hems og terrasse.
- Store vinduer gir mye lys
- 120 kvm gulvareal inkludert hems
- Peis
- Lekkert oppusset bad med god størrelse
- Pent og klassisk kjøkken
- Etterspurt beliggenhet
Boligen er innbydende og har en flott kombinasjon av moderne løsninger og klassisk sjarm. Hoveddelen av boligen ligger i fjerde etasje og det er innvendig trapp opp til hems. *Hemsen kan brukes som oppholdsrom med 40 kvm gulvareal, hos naboen er noe innlemmet som primærareal etter senking av gulv for totalt 98 kvm p-rom.
*Naboen har bygget ut hemsen med takterrasse og soverom, og det antas at dette også er mulig for denne seksjonen, det må i så fall søkes byantikvaren og plan og bygningsetaten på kjøpers ansvar. Se bilder fra naboens hems og terrasse.
- Store vinduer gir mye lys
- 120 kvm gulvareal inkludert hems
- Peis
- Lekkert oppusset bad med god størrelse
- Pent og klassisk kjøkken
- Etterspurt beliggenhet
NB: Knappen for å vise hele beskrivelsen har kun en visuell effekt.
NB: Knappen for å vise hele beskrivelsen har kun en visuell effekt.
Salgsoppgaven beskriver vesentlig og lovpålagt informasjon om eiendommen
Se komplett salgsoppgaveNyttige lenker
Nærområdet
Nordvik St.Hanshaugen
Annonseinformasjon
| FINN-kode | 352019278 |
|---|---|
| Sist endret | 07. juni 2024 13:19 |
| Referanse | 5-0079/24 |
Annonsene kan være mangelfulle i forhold til lovpålagt opplysningsplikt. Før bindende avtale inngås oppfordres interessenter til å innhente komplett informasjon fra meglerforetaket, selger eller utleier.












































