Bildegalleri

Velkommen til Sandakerveien 101F. Toppleilighet med hjørnebalkong og spektakulær utsikt.
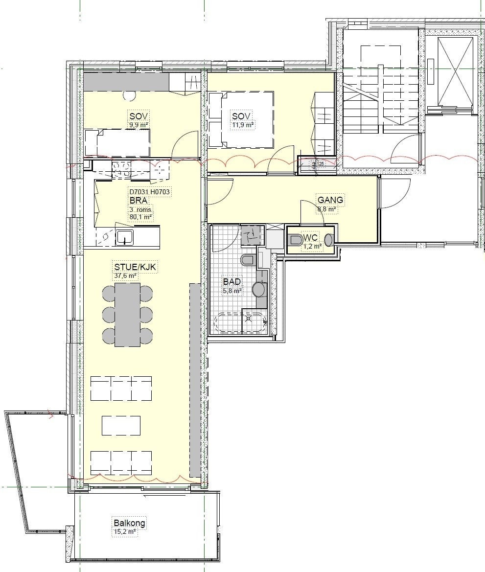
3-roms selveier. Toppleilighet med fantastisk utsikt, stor solrik hjørnebalkong, heis og garasje.
Nøkkelinfo
- Boligtype
- Leilighet
- Eieform
- Selveier
- Soverom
- 2
- Internt bruksareal
- 80 m² (BRA-i)
- Bruksareal
- 88 m²
- Eksternt bruksareal
- 8 m² (BRA-e)
- Balkong/Terrasse
- 15 m² (TBA)
- Etasje
- 8
- Byggeår
- 2013
- Energimerking
- G - Mørkegrønn
- Rom
- 3
- Tomteareal
- 5 903 m² (eiet)
Fasiliteter
Om boligen
Romslig stue med god plass til sofagruppe og spisestue. Vinduer på 2 vegger gir masse lys og flott utsikt fra sitteplass og spiseplass. Både dusjbad med opplegg for vaskesøyle og eget gjestetoalett. Hovedsoverom har walk-in garderobe. Romslig soverom 2. Praktisk U-kjøkken. Heis fra inngangsplan og fra garasje. Egen garasjeplass. Både innvendig bod og kjellerbod. Tilbaketrukket fra omliggende veier - trafikkstille beliggenhet men supersentralt.
Salgsoppgaven beskriver vesentlig og lovpålagt informasjon om eiendommen
Se komplett salgsoppgaveNyttige lenker
Nærområdet
Sem & Johnsen
Prisstatistikk
Sandakerveien 101F
på annonsen
prisantydning per kvadratmeter
Prisfordeling
Pris per m² ligger 4 750 kr under snittet for leiligheter i Sagene - Torshov.
Grafen viser antall leiligheter solgt i Sagene - Torshov siste året fordelt på pris per m² - totalt 2 397 leiligheter
Antall boliger
Kvadratmeterpris tilsvarer prisantydning pluss fellesgjeld per kvadratmeter (p-rom eller BRA-i). Prisene i grafen er avrundet til nærmeste 1000 kr.
Annonseinformasjon
| FINN-kode | 352423441 |
|---|---|
| Sist endret | 10. sep. 2024 12:30 |
| Referanse | 21-24-0405 |
Annonsene kan være mangelfulle i forhold til lovpålagt opplysningsplikt. Før bindende avtale inngås oppfordres interessenter til å innhente komplett informasjon fra meglerforetaket, selger eller utleier.


















































