Bildegalleri

Velkommen til Karl Staaffs vei 24. En lekker 3-roms endeleilighet med solrik balkong.
Flott 3-roms endeleilighet med solrik balkong, god standard og optimal planløsning. V.v. og fyring inkl. Sentrumsnært!
Nøkkelinfo
- Boligtype
- Leilighet
- Eieform
- Andel
- Soverom
- 2
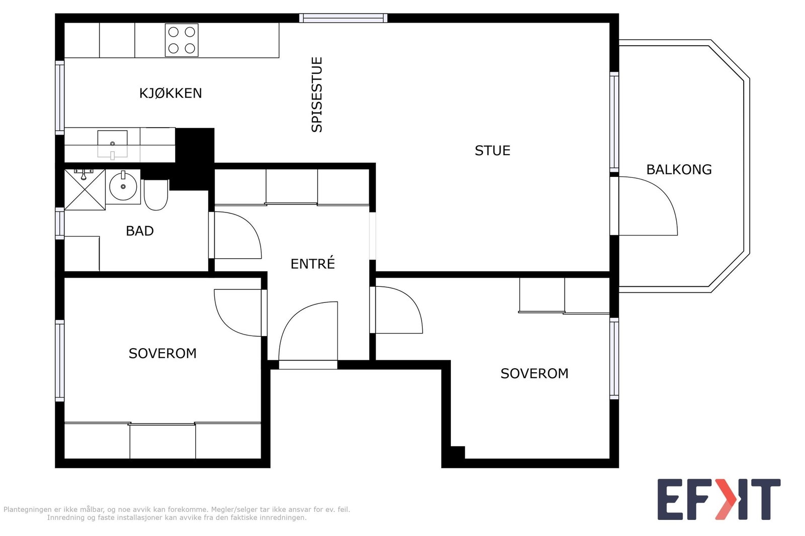
- Internt bruksareal
- 73 m² (BRA-i)
- Bruksareal
- 66 m²
- Eksternt bruksareal
- 6 m² (BRA-e)
- Innglasset balkong
- 7 m² (BRA-b)
- Etasje
- 4
- Byggeår
- 1958
- Tomteareal
- 54 507 m² (eiet)
Fasiliteter
Om boligen
Velkommen til denne meget lekre 3-roms endeleilighet med solrik balkong på ca 7 kvm!
Boligen holder en gjennomgående god standard med utsøkt farge- og materialvalg. Gulvflater er belagt med en-stavs parkett på gulv og overflater er malt i moderne fargekombinasjoner. Planløsningen er meget arealeffektiv og gjennomgående med vinduer på tre sider som sikrer gode lysforhold og en herlig atmosfære.
God lagringsplass finnes i to disponible kjellerboder. Varmtvann og fyring er inkl. i felleskostnadene.
Velkommen!
Beliggenhet
Leiligheten er sentrumsnær og attraktivt beliggende i en rolig blindvei på Ulven, skjermet for støy og gjennomgangstrafikk. Ulvenjordet ligger i nærheten, som er et felles grøntområde for alle borettslagene i området. Her er det blant annet opprettet parsellhage i regi av bydelen. Det er kort vei til det meste du trenger i hverdagen, samt kort vei til sentrum med både buss og T-bane.
Annet
Det er ingen forkjøpsrett på boligen. Om du ikke har mulighet til å komme på visning, holder jeg gjerne privatvisning. Ta kontakt, så finner vi en tid
Felleskostnader inkluderer
Varmtvann, fyring, kabel-TV og bredbånd, nedbetaling av fellesgjeld, kommunale avgifter, felles bygningsforsikring, festeavgift, forretningsførsel, diverse honorarer, vaktmestertjenester, drift og vedlikehold.
Omkostninger
4 350 000 kr (Prisantydning)
239 968 kr (Andel av fellesgjeld)
---
4 589 968 kr (Pris inkl. fellesgjeld)
Omkostninger
8 200 kr (HELP boligkjøperforsikring (valgfritt))
500 kr (Tinglysing av pantedokument)
500 kr (Tinglysing av skjøte)
---
9 200 kr (Omkostninger totalt)
---
4 599 168 kr (Totalpris inkl. omkostninger)
NB: Regnestykket forutsetter at det kun tinglyses én låneobligasjon og at eiendommen selges til prisantydning.
Det tas forbehold om endringer i offentlige og private gebyrer.
Selger er selv ansvarlig for følgende gebyr:
500 kr (Panterett med urådighet)
6 385 kr (Eierskiftegebyr)
Salgsoppgaven beskriver vesentlig og lovpålagt informasjon om eiendommen
Se komplett salgsoppgaveNyttige lenker
Nærområdet
Annonsene kan være mangelfulle i forhold til lovpålagt opplysningsplikt. Før bindende avtale inngås oppfordres interessenter til å innhente komplett informasjon fra meglerforetaket, selger eller utleier.


































