Bildegalleri

Ronny Varma v/DNB Eiendom har gleden av å presentere Ole Brumms vei 8!
Solgt
HAUGENSTUA
Lys og sjarmerende 3-roms leilighet med Sydvendt balkong på ca. 7 m²| Tilbaketrukket, samtidig sentralt| V.V/fyring inkl
Prisantydning3 400 000 kr
Nøkkelinfo
- Boligtype
- Leilighet
- Eieform
- Andel
- Soverom
- 2
- Internt bruksareal
- 74 m² (BRA-i)
- Bruksareal
- 76 m²
- Eksternt bruksareal
- 2 m² (BRA-e)
- Balkong/Terrasse
- 7 m² (TBA)
- Etasje
- 4
- Byggeår
- 1969
- Energimerking
- F - Mørkegrønn
- Rom
- 3
- Tomteareal
- 72 635 m² (eiet)
Fasiliteter
Barnevennlig
Bredbåndstilknytning
Kjæledyr tillatt
Kabel-TV
Rolig
Sentralt
Vaktmester-/vektertjeneste
Om boligen
Velkommen til Ole brumms vei 8!
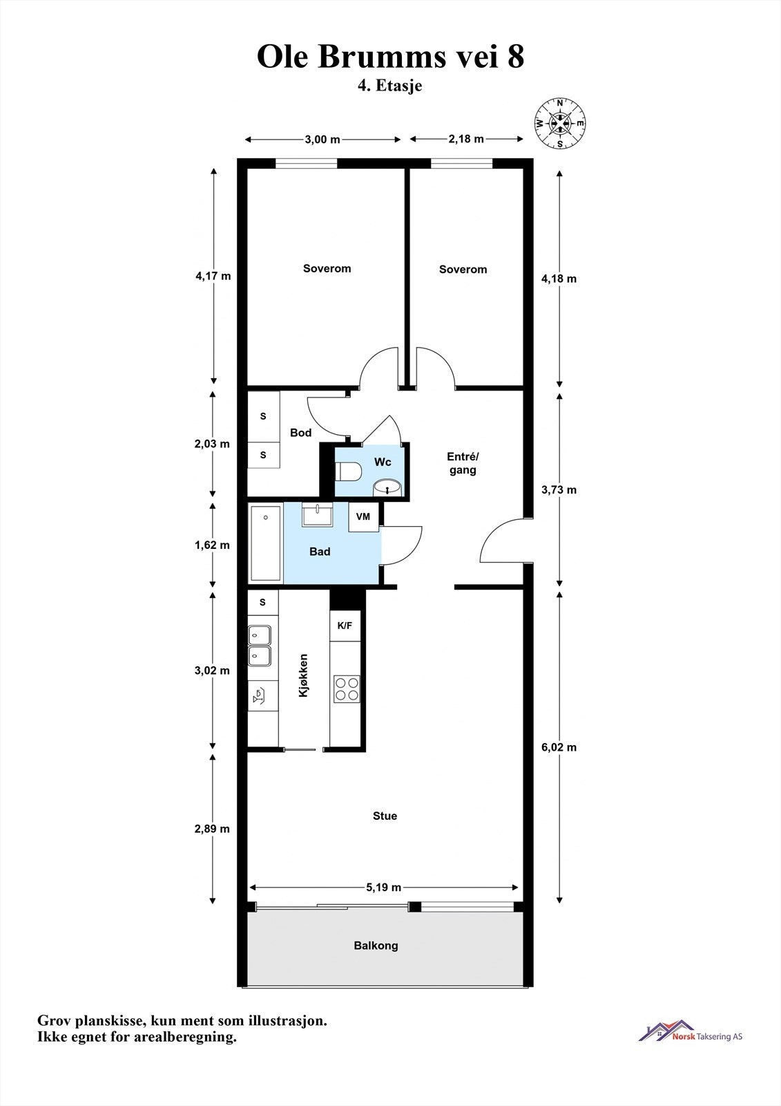
Lys og sjarmerende andelsleilighet i boligbyggets 4. etasje med sydvendt balkong på ca. 7 m². Her får du gode oppholdsrom, delikate fargetoner og generøse vindusflater med flott lysinnslipp. Planløsningen er god bestående av en innbydende entré, lys og møbleringsvennlig stue, kjøkken med malte profilerte fronter, baderom, wc og to romslige soverom. For ytterligere oppbevaring følger det en bod på ca. 2,3 m². Varmtvann og fyring er inkludert.
Borettslaget har flotte grøntarealer utenfor, med umiddelbar nærhet til et rikt utvalg fritidsaktiviteter. Beliggenheten er tilbaketrukket og rolig, men samtidig i et sentralt bomiljø på Haugenstua med kort vei til tog, buss og t-bane, noe som gjør hverdagen enklere for enhver som ønsker å bo utenfor sentrum.
Lys og sjarmerende andelsleilighet i boligbyggets 4. etasje med sydvendt balkong på ca. 7 m². Her får du gode oppholdsrom, delikate fargetoner og generøse vindusflater med flott lysinnslipp. Planløsningen er god bestående av en innbydende entré, lys og møbleringsvennlig stue, kjøkken med malte profilerte fronter, baderom, wc og to romslige soverom. For ytterligere oppbevaring følger det en bod på ca. 2,3 m². Varmtvann og fyring er inkludert.
Borettslaget har flotte grøntarealer utenfor, med umiddelbar nærhet til et rikt utvalg fritidsaktiviteter. Beliggenheten er tilbaketrukket og rolig, men samtidig i et sentralt bomiljø på Haugenstua med kort vei til tog, buss og t-bane, noe som gjør hverdagen enklere for enhver som ønsker å bo utenfor sentrum.
NB: Knappen for å vise hele beskrivelsen har kun en visuell effekt.
NB: Knappen for å vise hele beskrivelsen har kun en visuell effekt.
Salgsoppgaven beskriver vesentlig og lovpålagt informasjon om eiendommen
Se komplett salgsoppgaveNyttige lenker
Nærområdet
DNB Eiendom AS
Verdifulle salg
Prisstatistikk
Ole Brumms vei 8
2 833 klikk
på annonsen
49 567 kr
prisantydning per kvadratmeter
Prisfordeling
Pris per m² ligger 7 433 kr under snittet for leiligheter i Stovner.
Grafen viser antall leiligheter solgt i Stovner siste året fordelt på pris per m² - totalt 360 leiligheter
Antall boliger
Kvadratmeterpris tilsvarer prisantydning pluss fellesgjeld per kvadratmeter (p-rom eller BRA-i). Prisene i grafen er avrundet til nærmeste 1000 kr.
Annonseinformasjon
| FINN-kode | 353316060 |
|---|---|
| Sist endret | 30. aug. 2024 06:29 |
| Referanse | 305240102 |
Annonsene kan være mangelfulle i forhold til lovpålagt opplysningsplikt. Før bindende avtale inngås oppfordres interessenter til å innhente komplett informasjon fra meglerforetaket, selger eller utleier.

























