Bildegalleri

Sigrid Seim v/DNB Eiendom har gleden av å presentere Gangstuveien 12!
Solgt
KALBAKKEN
Lys og pen 3-roms hjørneleilighet|Innglasset balkong på 9m2 med nydelig utsikt| V-vann, fyring, internett, kabel-tv inkl
Prisantydning3 775 000 kr
Nøkkelinfo
- Boligtype
- Leilighet
- Eieform
- Andel
- Soverom
- 2
- Primærrom
- 63 m²
- Bruksareal
- 74 m²
- Etasje
- 7
- Byggeår
- 1959
- Energimerking
- G - Mørkegrønn
- Rom
- 3
- Tomteareal
- 90 346 m²
Fasiliteter
Balkong/Terrasse
Barnevennlig
Bredbåndstilknytning
Fellesvaskeri
Garasje/P-plass
Heis
Kjæledyr tillatt
Offentlig vann/kloakk
Rolig
Sentralt
Utsikt
Vaktmester-/vektertjeneste
Turterreng
Om boligen
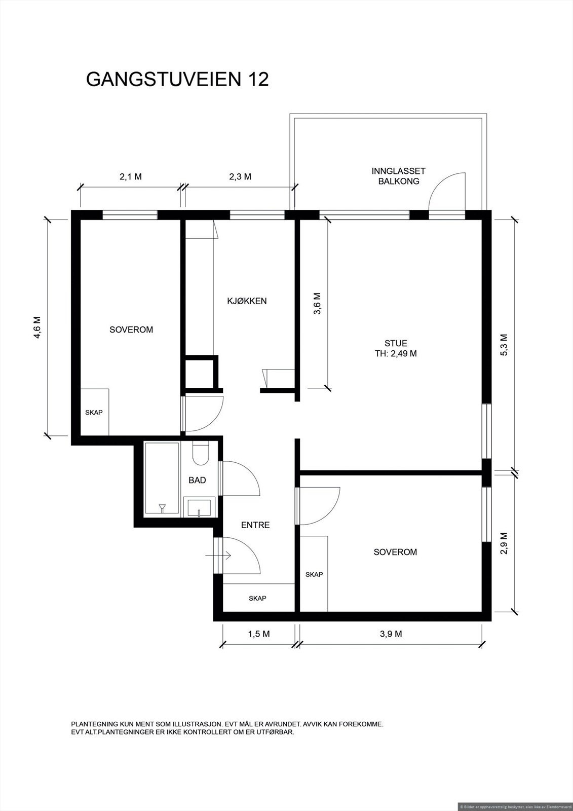
Sigrid Seim v/DNB eiendom har gleden av å ønske deg velkommen til en lys og sentral 3-roms andelsleilighet i grønne og rolige omgivelser på Kalbakken. Det er kort vei til dagligvarebutikker og offentlig kommunikasjon. Leiligheten inneholder bl.a. Entré, baderom, kjøkken, stue, to soverom og stor innglasset balkong.
Verdt å merke seg:
Verdt å merke seg:
- Nye gulv og vegger i hele leiligheten
- Installert nye sikringer og kurser
- Bad pusset opp i regi av brl i ca. 2010
- Tilgang til fellesvaskeri
- Stor innglasset balkong på 9 m2
- Kort vei til butikk, T-bane og buss
- Kort vei til marka
- Vv., fyring, internett og kabel-tv inkl.
- Mulig å leie p-plass og garasje
- Ingen forkjøpsrett!
- Meget flott utsikt over Groruddalen og Alnaelven rett utenfor soveromsvinduet
- Hjørneleilighet
NB: Knappen for å vise hele beskrivelsen har kun en visuell effekt.
NB: Knappen for å vise hele beskrivelsen har kun en visuell effekt.
Salgsoppgaven beskriver vesentlig og lovpålagt informasjon om eiendommen
Se komplett salgsoppgaveNyttige lenker
Nærområdet
DNB Eiendom AS
Verdifulle salg
Prisstatistikk
Gangstuveien 12
1 935 klikk
på annonsen
61 142 kr
prisantydning per kvadratmeter
Prisfordeling
Pris per m² ligger 8 858 kr under snittet for leiligheter i Grorud.
Grafen viser antall leiligheter solgt i Grorud siste året fordelt på pris per m² - totalt 448 leiligheter
Antall boliger
Kvadratmeterpris tilsvarer prisantydning pluss fellesgjeld per kvadratmeter (p-rom eller BRA-i). Prisene i grafen er avrundet til nærmeste 1000 kr.
Annonseinformasjon
| FINN-kode | 354064049 |
|---|---|
| Sist endret | 23. sep. 2024 08:49 |
| Referanse | 324240055 |
Annonsene kan være mangelfulle i forhold til lovpålagt opplysningsplikt. Før bindende avtale inngås oppfordres interessenter til å innhente komplett informasjon fra meglerforetaket, selger eller utleier.
































