Bildegalleri

Privatmegleren Park v/ Christoffer Brekke-Hammersland har gleden av å presentere Landingsveien 40!
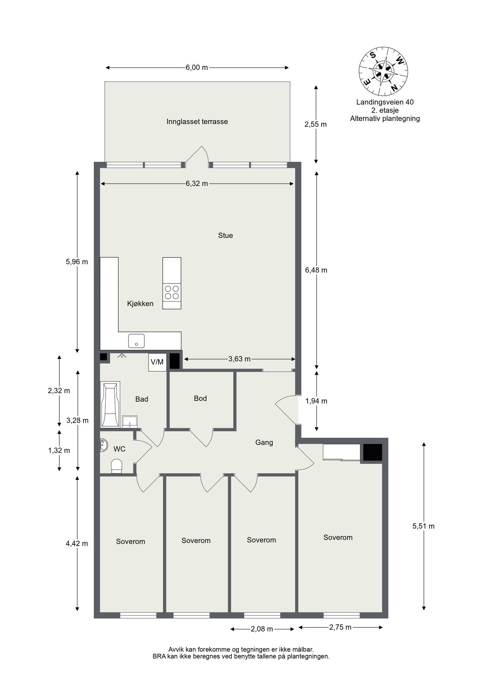
Oppusset og nydelig sydvendt 4(5)-roms i fantastiske Jarbakken | Barnevennlig og bilfri beliggenhet | Garasje med lader
Nøkkelinfo
- Boligtype
- Leilighet
- Eieform
- Andel
- Soverom
- 3
- Internt bruksareal
- 106 m² (BRA-i)
- Eksternt bruksareal
- 4 m² (BRA-e)
- Innglasset balkong
- 16 m² (BRA-b)
- Etasje
- 2
- Byggeår
- 1975
- Energimerking
- E - Rød
- Rom
- 4
- Tomt
- Eiet
- Boligselgerforsikring
- Ja
Fasiliteter
Om boligen
Innbydende 4-roms leilighet beliggende i Jarbakken, et av Oslos mest attraktive og populære borettslag, grunnet sine store, bilfrie og grønne fellesarealer som gir deg følelsen av å bo i en park. Tennisbane i borettslaget. Kort vei til T-bane, buss og butikker, Tufteparken i Mærradalen, samt flere lekeplasser, sandkasser, klatrestativ, fotballbinge og områdets råeste akebakke for barna. Jarbakken borettslag ligger rolig til ved foten av Holmenkollåsen
Kort fortalt:
- Lys og innbydende 4-roms leilighet med soverom av god størrelse
- Orginalt en 5-roms (slått sammen to sov til hovedsoverom)
- Garasje med el-billader
- Innglasset balkong
- Utekjøkken
- Kjellerbod
- Bilfrie og barnevennlige omgivelser omkranset av grøntarealer
- Kort vei til dagligvare, idrettsanlegg, skoler, barnehager og kollektivtransport
Velkommen
Salgsoppgaven beskriver vesentlig og lovpålagt informasjon om eiendommen
Se komplett salgsoppgaveNyttige lenker
Nærområdet

PrivatMegleren Park
Lisa Bakka Sandbu
Medhjelper
Prisstatistikk
Landingsveien 40
på annonsen
prisantydning per kvadratmeter
Prisfordeling
Pris per m² ligger 16 661 kr under snittet for leiligheter i Røa.
Grafen viser antall leiligheter solgt i Røa siste året fordelt på pris per m² - totalt 488 leiligheter
Antall boliger
Kvadratmeterpris tilsvarer prisantydning pluss fellesgjeld per kvadratmeter (p-rom eller BRA-i). Prisene i grafen er avrundet til nærmeste 1000 kr.
Annonsene kan være mangelfulle i forhold til lovpålagt opplysningsplikt. Før bindende avtale inngås oppfordres interessenter til å innhente komplett informasjon fra meglerforetaket, selger eller utleier.











































