Bildegalleri

Velkommen på visning i Landingsveien 16!
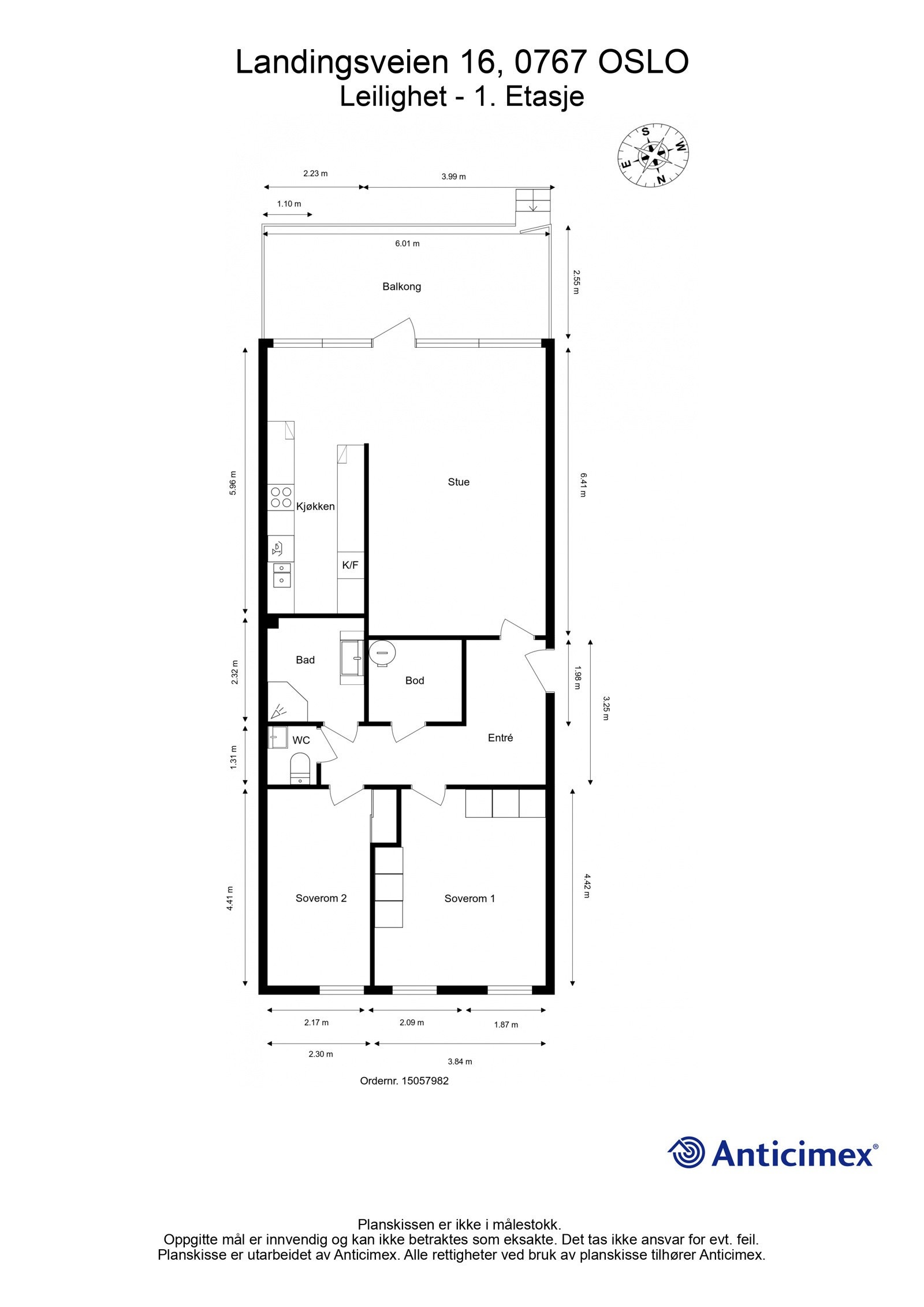
3-roms gjennomgående endeleilighet med moderniseringsbehov. Stor balkong ca 15 kvm. Garasjeplass. Ingen dok.avgift!
Nøkkelinfo
- Boligtype
- Leilighet
- Eieform
- Andel
- Soverom
- 2
- Internt bruksareal
- 90 m² (BRA-i)
- Bruksareal
- 94 m²
- Eksternt bruksareal
- 4 m² (BRA-e)
- Balkong/Terrasse
- 15 m² (TBA)
- Etasje
- 1
- Byggeår
- 1976
- Energimerking
- G - Rød
- Rom
- 3
- Tomteareal
- 23 156 m² (eiet)
Fasiliteter
Om boligen
Velkommen til visning i Landingsveien 16! Stor og gjennomgående leilighet med moderniseringsbehov så her har du en fin anledning til å sette ditt eget preg på boligen.
Entré, 2 soverom av god størrelse, delvis åpen kjøkkenløsning mot spiseplass, stor stue med utg. til solrik balkong, flislagt bad med gulvvarme fra 2003 samt separat toalettrom med gulvvarme og servan
Borettslaget har en meget barnevennlig beliggenhet med fellesareal som er pent opparbeidet med lekeplasser. Et veletablert og attraktivt boligområde med skoler, barnehager, idrettstilbud, nærbutikk og fantastiske turområder like utenfor døren. Garasjeplass følger.
Salgsoppgaven beskriver vesentlig og lovpålagt informasjon om eiendommen
Se komplett salgsoppgaveNyttige lenker
Nærområdet
OBOS eiendomsmeglere - Oslo Sentrum
Prisstatistikk
Landingsveien 16
på annonsen
prisantydning per kvadratmeter
Prisfordeling
Pris per m² ligger 23 478 kr under snittet for leiligheter i Røa.
Grafen viser antall leiligheter solgt i Røa siste året fordelt på pris per m² - totalt 491 leiligheter
Antall boliger
Kvadratmeterpris tilsvarer prisantydning pluss fellesgjeld per kvadratmeter (p-rom eller BRA-i). Prisene i grafen er avrundet til nærmeste 1000 kr.
Annonseinformasjon
| FINN-kode | 356954208 |
|---|---|
| Sist endret | 22. juni 2024 11:59 |
| Referanse | 701240054 |
Annonsene kan være mangelfulle i forhold til lovpålagt opplysningsplikt. Før bindende avtale inngås oppfordres interessenter til å innhente komplett informasjon fra meglerforetaket, selger eller utleier.





















