Bildegalleri

Inaktiv
Velkommen til Tjuvholmen
Unik front- og hjørneleilighet med spektakulære detaljer, sensasjonell utsikt og vinduer i tre retninger
Prisantydning85 000 000 kr
Nøkkelinfo
- Boligtype
- Leilighet
- Eieform
- Selveier
- Soverom
- 4
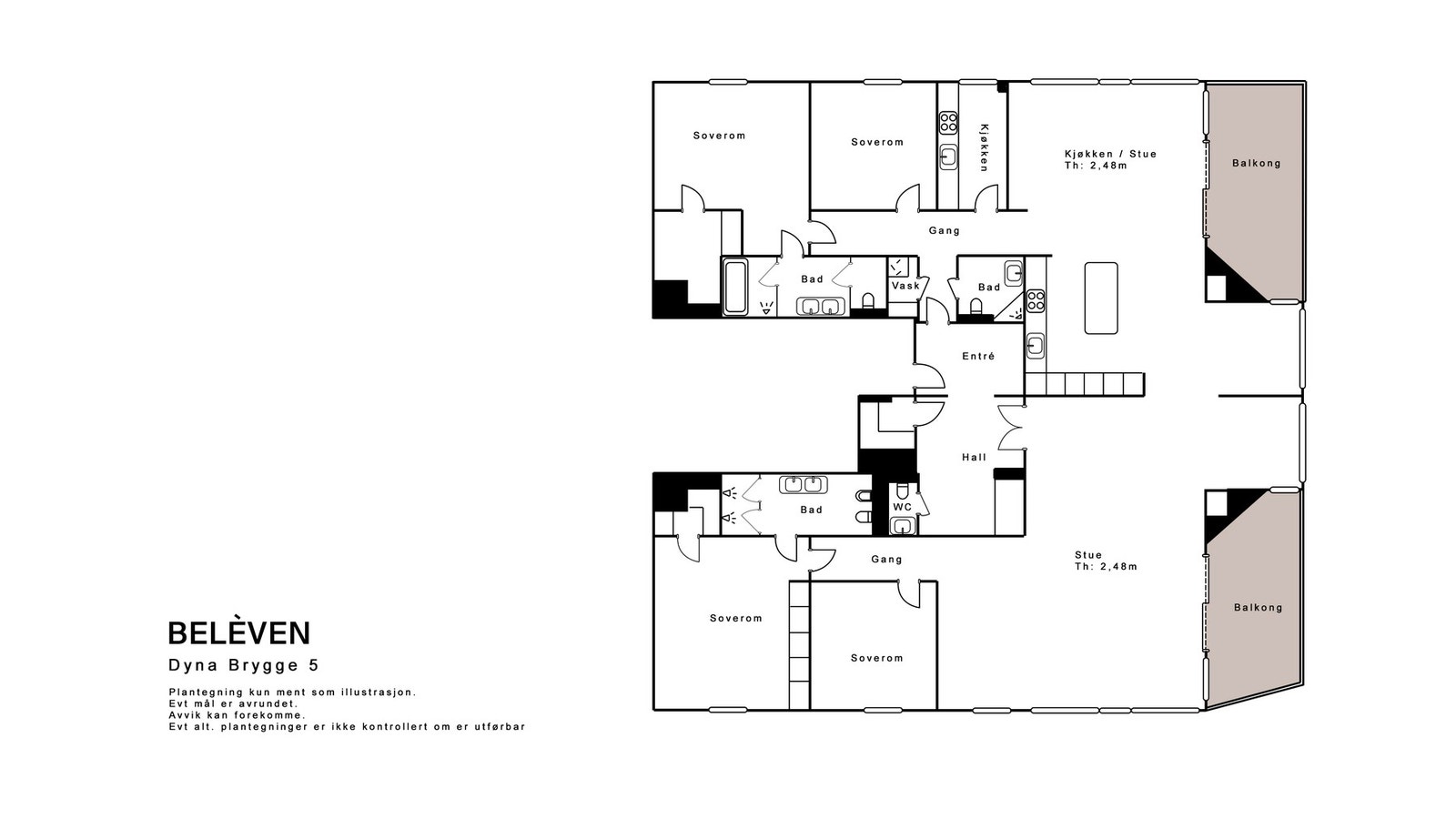
- Internt bruksareal
- 305 m² (BRA-i)
- Bruksareal
- 305 m²
- Balkong/Terrasse
- 35 m² (TBA)
- Etasje
- 8
- Byggeår
- 2013
- Energimerking
- D - Mørkegrønn
- Rom
- 6
- Tomteareal
- 927 m² (eiet)
Fasiliteter
Barnevennlig
Balkong/Terrasse
Garasje/P-plass
Kabel-TV
Heis
Offentlig vann/kloakk
Ingen gjenboere
Parkett
Peis/Ildsted
Utsikt
Vaktmester-/vektertjeneste
Sentralt
Bredbåndstilknytning
Moderne
Rolig
Bademulighet
Lademulighet
Balansert ventilasjon
Om boligen
En sjelden anledning - hel frontleilighet ytterst på eksklusive Tjuvholmen. Det er utgangspunktet for det som er en spektakulær eiendom med helt enestående kvaliteter.
Oppramsing av detaljer er på grensen til unødvendig, men for å gi et inntrykk har leiligheten gulv-til-tak-vinduer i tre retninger som gir utsikt mot både Oslofjorden og Holmenkollen, tre garasjeplasser etter hverandre som legger til rette for optimal logistikk og du møter det ypperste av kvalitet fra det øyeblikket du går inn entréen.
Dette er et smykke av en eiendom, og av sjeldent kaliber i Oslo.
Det er vanskelig, også med eiendomsmeglerprosa, å yte denne eiendommen rettferdighet. Den må oppleves og erfares.
Oppramsing av detaljer er på grensen til unødvendig, men for å gi et inntrykk har leiligheten gulv-til-tak-vinduer i tre retninger som gir utsikt mot både Oslofjorden og Holmenkollen, tre garasjeplasser etter hverandre som legger til rette for optimal logistikk og du møter det ypperste av kvalitet fra det øyeblikket du går inn entréen.
Dette er et smykke av en eiendom, og av sjeldent kaliber i Oslo.
Det er vanskelig, også med eiendomsmeglerprosa, å yte denne eiendommen rettferdighet. Den må oppleves og erfares.
NB: Knappen for å vise hele beskrivelsen har kun en visuell effekt.
NB: Knappen for å vise hele beskrivelsen har kun en visuell effekt.
Salgsoppgaven beskriver vesentlig og lovpålagt informasjon om eiendommen
Se komplett salgsoppgaveNærområdet
Belèven Eiendomsmegling
Annonsene kan være mangelfulle i forhold til lovpålagt opplysningsplikt. Før bindende avtale inngås oppfordres interessenter til å innhente komplett informasjon fra meglerforetaket, selger eller utleier.





























