Bildegalleri

Eiendomsmegler Krogsveen v/ Iselin Knudsen har gleden av å ønske velkommen til Starveien 12!
Stor og flott familiebolig med herlig, solrik terrasse | Endeleilighet | To bad | Gasspeis | Garasjeplass m/elbillader
Nøkkelinfo
- Boligtype
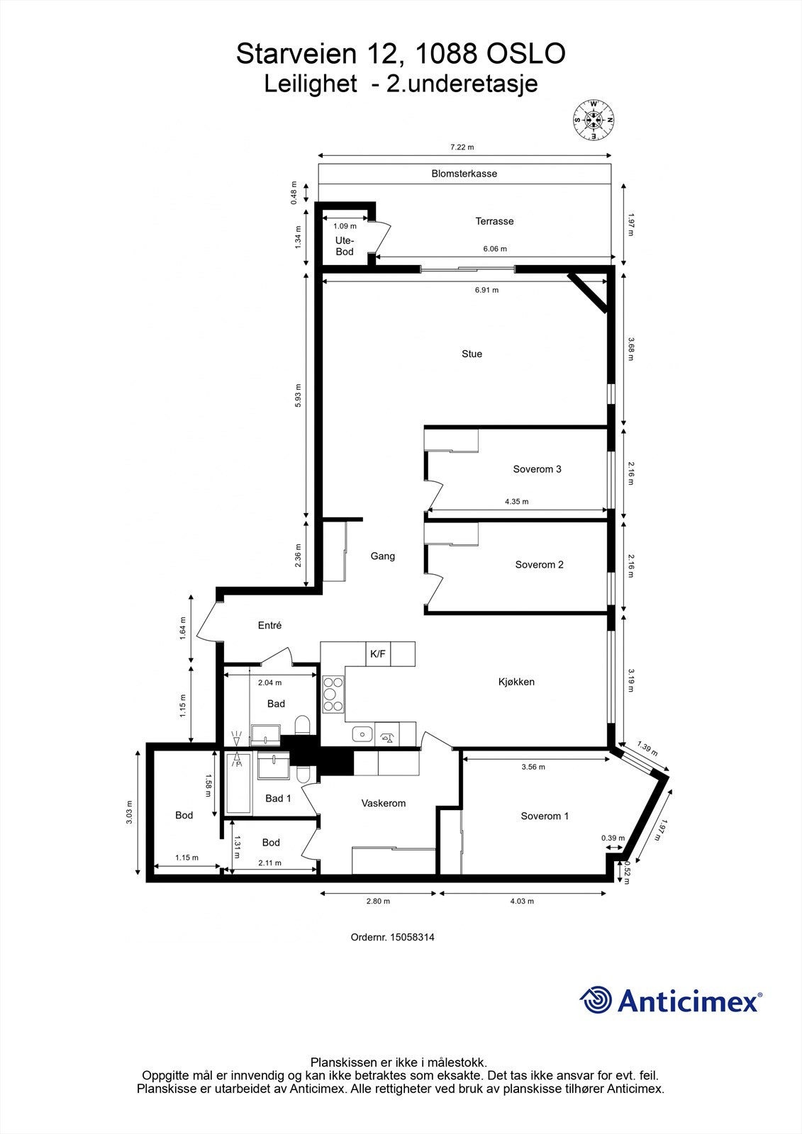
- Leilighet
- Eieform
- Andel
- Soverom
- 3
- Internt bruksareal
- 121 m² (BRA-i)
- Bruksareal
- 123 m²
- Eksternt bruksareal
- 2 m² (BRA-e)
- Balkong/Terrasse
- 12 m² (TBA)
- Etasje
- -2
- Byggeår
- 1979
- Energimerking
- G - Rød
- Rom
- 4
- Tomteareal
- 51 731 m² (eiet)
Fasiliteter
Om boligen
Verdt å merke seg:
- 3 romslige soverom
- 2 bad og vaskerom
- Gasspeis i stue
- Garasjeplass
- TV, internett og varmtvann inkl.
- Barnevennlig område
- Vestvendt terrasse med gode solforhold
- Attraktiv og sentral beliggenhet med nærhet til nydelig turmuligheter i Østmarka
- Godt tilbud av offentlig kommunikasjon, servicetilbud og andre fasiliteter
- God oppbevaringsplass i boder
Velkommen til visning!
Salgsoppgaven beskriver vesentlig og lovpålagt informasjon om eiendommen
Se komplett salgsoppgaveNyttige lenker
Nærområdet
Krogsveen Hasle
Prisstatistikk
Starveien 12
på annonsen
prisantydning per kvadratmeter
Prisfordeling
Pris per m² ligger 14 381 kr under snittet for leiligheter i Furuset.
Grafen viser antall leiligheter solgt i Furuset siste året fordelt på pris per m² - totalt 453 leiligheter
Antall boliger
Kvadratmeterpris tilsvarer prisantydning pluss fellesgjeld per kvadratmeter (p-rom eller BRA-i). Prisene i grafen er avrundet til nærmeste 1000 kr.
Annonseinformasjon
| FINN-kode | 357198989 |
|---|---|
| Sist endret | 28. okt. 2024 16:54 |
| Referanse | KR37.24254 |
Annonsene kan være mangelfulle i forhold til lovpålagt opplysningsplikt. Før bindende avtale inngås oppfordres interessenter til å innhente komplett informasjon fra meglerforetaket, selger eller utleier.














































