Bildegalleri

Velkommen til Tampereveien 4A! En stor og pen 3-roms leilighet med attraktiv beliggenhet i 10. etasje i et rolig og populært boområde.
Pen og romslig 3-roms med fantastisk utsikt | Heis | Balkong | Parkering | Solrikt | Sentralt | Kort vei til bymarka
Nøkkelinfo
- Boligtype
- Leilighet
- Eieform
- Andel
- Soverom
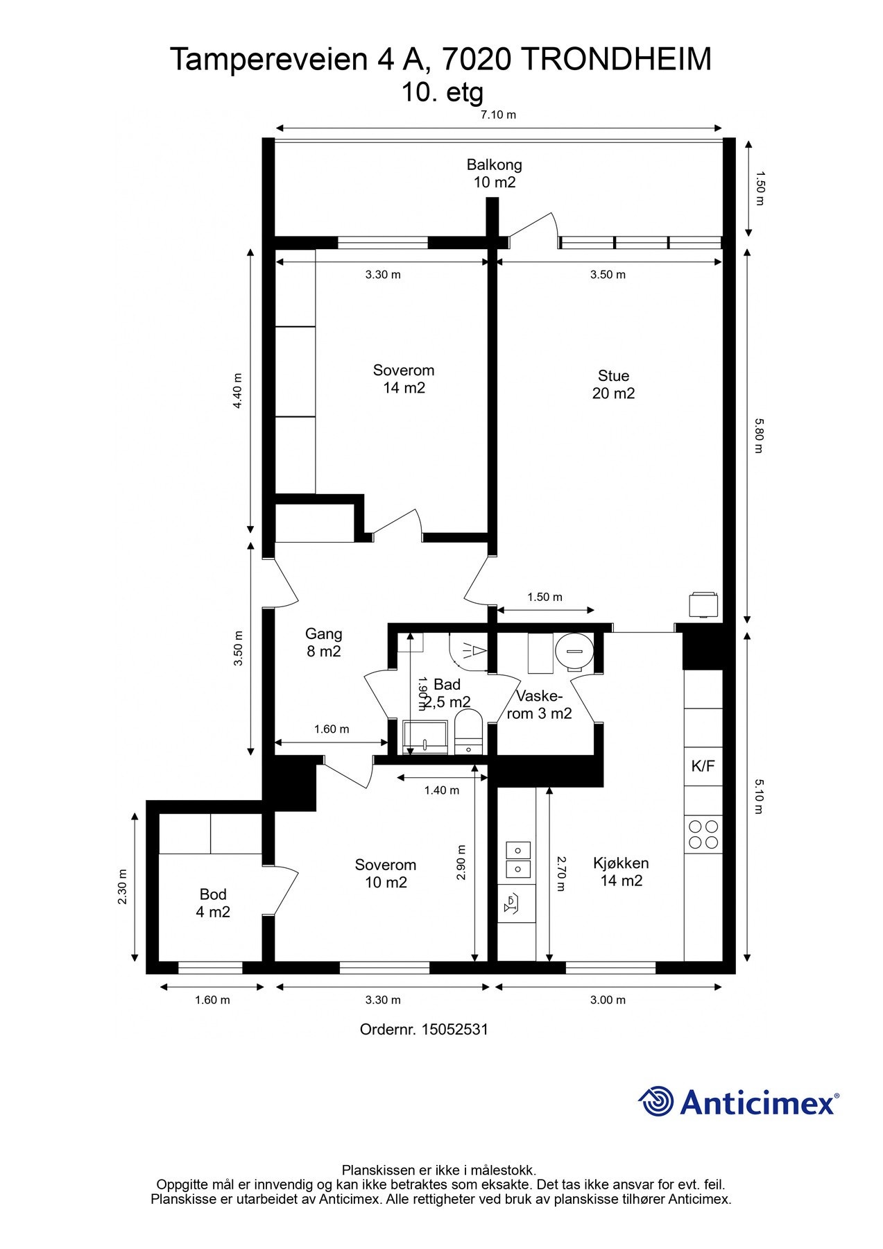
- 2
- Internt bruksareal
- 81 m² (BRA-i)
- Bruksareal
- 86 m²
- Eksternt bruksareal
- 5 m² (BRA-e)
- Balkong/Terrasse
- 10 m² (TBA)
- Etasje
- 10
- Byggeår
- 1960
- Energimerking
- G - Rød
- Tomt
- Eiet
Fasiliteter
Om boligen
Av kvaliteter kan man nevne:
- Umiddelbar nærhet til Bymarka med sine turmuligheter både sommer og vinter
- Oppkjørte skiløyper rett utenfor eiendommen
- Heis i bygget
- De fleste rom er nymalt og har nye gulv
- Romslig balkong med gode solforhold og flott utsikt
- To store soverom på 14 og 10 kvm, samt kontor
- Stort kjøkken
- Rikelig med bodplass
- Kort vei til dagligvarebutikk, barnehage og skole
- Sentral beliggenhet med umiddelbar nærhet til buss
- Fantastisk utsikt i begge retninger
- Vedfyring
- Borettslaget har 72 garasjeplasser som tildeles etter søknad, samt 90 parkeringsplasser for fri parkering
Velkommen til en hyggelig visning!
Salgsoppgaven beskriver vesentlig og lovpålagt informasjon om eiendommen
Se komplett salgsoppgaveNærområdet
Nylander &Partners, Trondheim sentrum
Prisstatistikk
Tampereveien 4 A
på annonsen
prisantydning per kvadratmeter
Prisfordeling
Pris per m² ligger 11 526 kr under snittet for leiligheter i Trondheim Vest.
Grafen viser antall leiligheter solgt i Trondheim Vest siste året fordelt på pris per m² - totalt 485 leiligheter
Antall boliger
Kvadratmeterpris tilsvarer prisantydning pluss fellesgjeld per kvadratmeter (p-rom eller BRA-i). Prisene i grafen er avrundet til nærmeste 1000 kr.
Annonsene kan være mangelfulle i forhold til lovpålagt opplysningsplikt. Før bindende avtale inngås oppfordres interessenter til å innhente komplett informasjon fra meglerforetaket, selger eller utleier.
























