Bildegalleri

June Marie Brovold v/ EiendomsMegler 1 har gleden av å presentere Nedre Flatåsveg 348.
FLOTT OG INNHOLDSRIKT REKKEHUS MED ATTRAKTIV BELIGGENHET. Stor, solrik terrasse. 3 soverom. Vedfyring. Barnevennlig.
Nøkkelinfo
- Boligtype
- Rekkehus
- Eieform
- Andel
- Soverom
- 3
- Internt bruksareal
- 116 m² (BRA-i)
- Bruksareal
- 121 m²
- Eksternt bruksareal
- 5 m² (BRA-e)
- Balkong/Terrasse
- 52 m² (TBA)
- Byggeår
- 1980
- Energimerking
- F - Oransje
- Rom
- 5
- Tomteareal
- 18 800 m² (eiet)
Fasiliteter
Om boligen
EiendomsMegler 1 ved June Marie Brovold har gleden av å presentere et innholdsrikt og flott rekkehus over 2 plan. Boligen har en svært attraktiv og tilbaketrukket beliggenhet i borettslaget med solrike uteområder. Fra boligen er det gangavstand til alt man behøver i hverdagen som barnehage, skole, dagligvare, bussforbindelser og flotte turmuligheter. Selve boligen oppleves lys og luftig med en praktisk planløsning og store oppholdsrom.
Kvaliteter verdt å nevne:
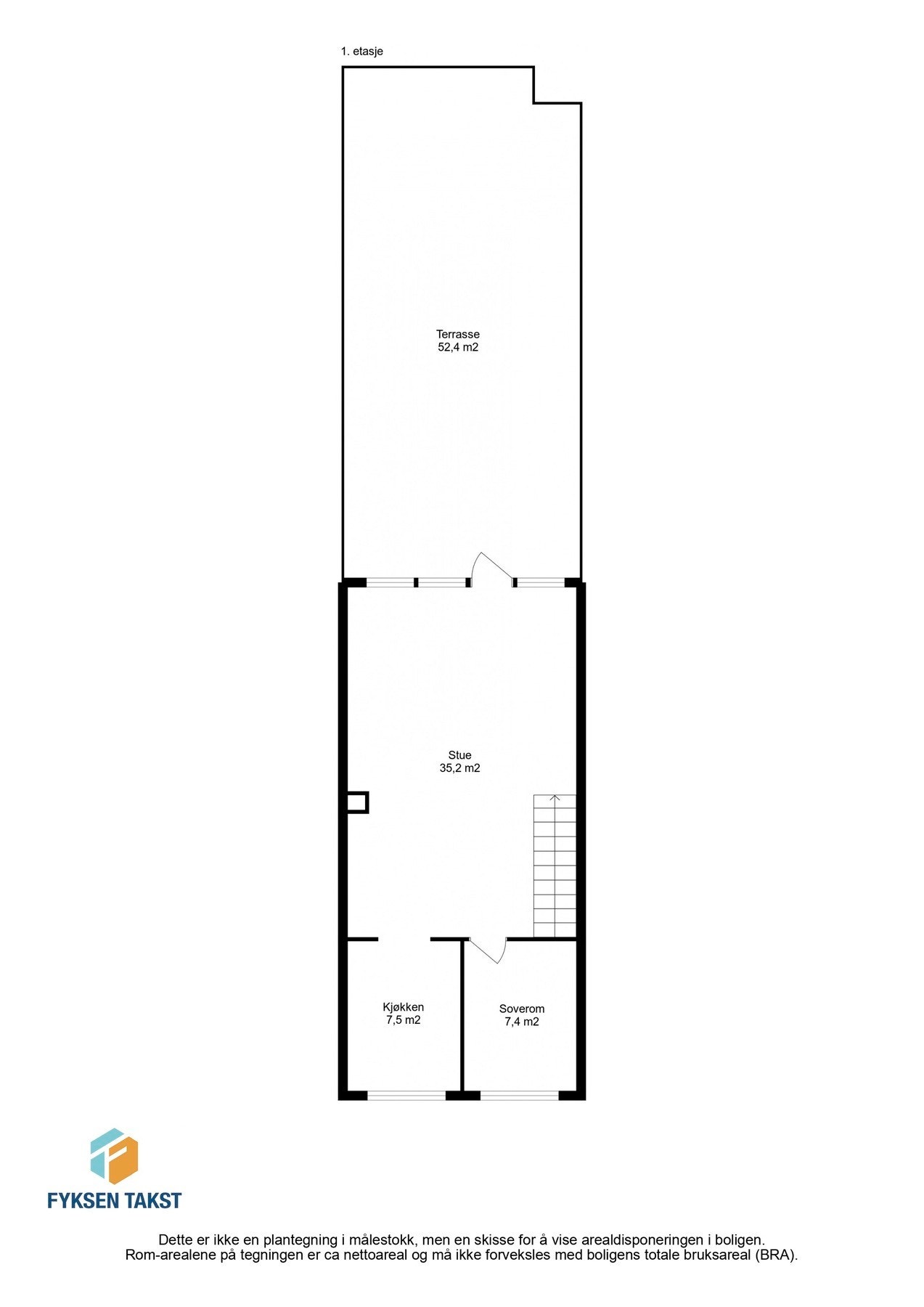
- Bruksareal på 121 kvm fordelt på to etasjer
- Solrik terrasse på 52,4 kvm vendt mot friområde
Romslig stue - med gode møbleringsmuligheter og vedfyring
- Pent kjøkken med integrerte hvitevarer, som er vurdert til tilstandsgrad 1 av takstmann
- soverom av god størrelse
- Lyst, flislagt baderom med dusjkabinett
- Praktisk vaskerom og separat toalettrom
- Godt med lagringsplass i boligen, på loft og utvendig bod
- Veldrevet borettslag
- Internett og kabel-TV inkludert i felleskostnadene
- Parkering på borettslagets eiendom, samt mulighet for tildeling av plass i garasje
- Flotte fellesarealer og oppgraderte lekeplasser i borettslaget
- Tak skiftet i perioden 2021-2023 i regi av borettslaget
Velkommen til en hyggelig visning!
Salgsoppgaven beskriver vesentlig og lovpålagt informasjon om eiendommen
Se komplett salgsoppgaveNærområdet
EiendomsMegler 1 Heimdal
Prisstatistikk
Nedre Flatåsveg 348
på annonsen
prisantydning per kvadratmeter
Prisfordeling
Pris per m² ligger 1 532 kr over snittet for rekkehus i Trondheim Sør.
Grafen viser antall rekkehus solgt i Trondheim Sør siste året fordelt på pris per m² - totalt 178 rekkehus
Antall boliger
Kvadratmeterpris tilsvarer prisantydning pluss fellesgjeld per kvadratmeter (p-rom eller BRA-i). Prisene i grafen er avrundet til nærmeste 1000 kr.
Annonseinformasjon
| FINN-kode | 359823967 |
|---|---|
| Sist endret | 20. okt. 2024 08:46 |
| Referanse | 31240213 |
Annonsene kan være mangelfulle i forhold til lovpålagt opplysningsplikt. Før bindende avtale inngås oppfordres interessenter til å innhente komplett informasjon fra meglerforetaket, selger eller utleier.
































