Bildegalleri

Kasper Hillås har gleden av å presentere Toftes gate 16
Solgt
Lyst og luftig på øvre Grünerløkka
Nydelig, stor og klassisk 2-roms med balkong - Rosett, stukkatur og vedovn - Generøs takhøyde - Soverom mot bakgård
Prisantydning5 250 000 kr
Nøkkelinfo
- Boligtype
- Leilighet
- Eieform
- Selveier
- Soverom
- 1
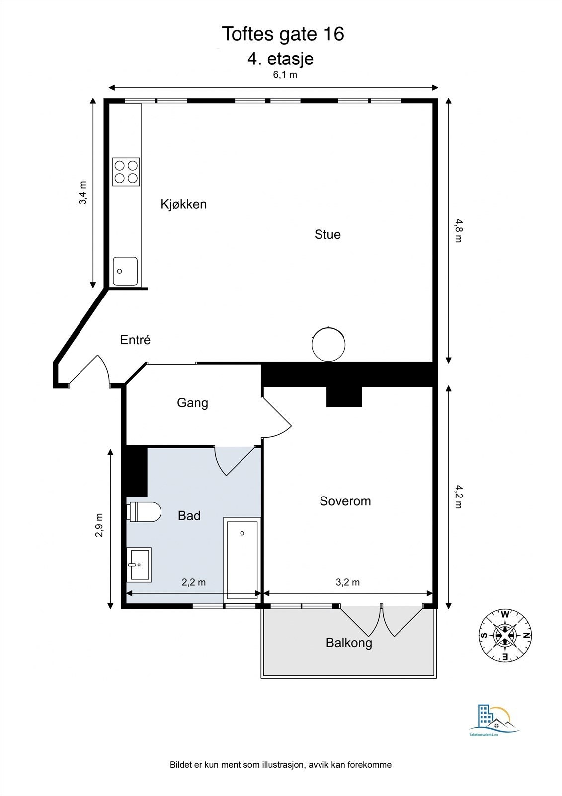
- Internt bruksareal
- 56 m² (BRA-i)
- Bruksareal
- 63 m²
- Eksternt bruksareal
- 7 m² (BRA-e)
- Etasje
- 4
- Byggeår
- 1897
- Energimerking
- G - Oransje
- Rom
- 2
- Tomteareal
- 277 m² (eiet)
Fasiliteter
Balkong/Terrasse
Barnevennlig
Bredbåndstilknytning
Kabel-TV
Offentlig vann/kloakk
Parkett
Peis/Ildsted
Rolig
Sentralt
Turterreng
Om boligen
Velkommen til Toftes gate 16 - En nydelig, klassisk og romslig 2-roms selveier med balkong, stilrene overflater og nytt kjøkken. Leiligheten har en gjennomgående og svært god planløsning, og består av innbydende entré, åpen kjøkken- og stueløsning, lunt soverom og stort bad.
Leiligheten har en attraktiv beliggenhet på øvre Grünerløkka med kort vei til alt det unike service- og kulturlivet området er kjent for samt god tilknytning til offentlig kommunikasjon.
Leiligheten har en attraktiv beliggenhet på øvre Grünerløkka med kort vei til alt det unike service- og kulturlivet området er kjent for samt god tilknytning til offentlig kommunikasjon.
- Balkong på 4 kvm. med morgensol
- Soverom og balkong vendt mot en idyllisk bakgård
- Generøs takhøyde på 2,9M og store vindusflater
- Nytt, moderne kjøkken med dyp benkeplate i stein og vinskap
- En-stavs parkett og delikate fargevalg
- Rosett og stukkatur
- Vedovn
- To kjellerboder
- Varmtvann og internett inkl
NB: Knappen for å vise hele beskrivelsen har kun en visuell effekt.
NB: Knappen for å vise hele beskrivelsen har kun en visuell effekt.
Salgsoppgaven beskriver vesentlig og lovpålagt informasjon om eiendommen
Se komplett salgsoppgaveNyttige lenker
Nærområdet
Nordvik St.Hanshaugen
Annonseinformasjon
| FINN-kode | 362545533 |
|---|---|
| Sist endret | 28. okt. 2024 13:36 |
| Referanse | 5-0196/24 |
Annonsene kan være mangelfulle i forhold til lovpålagt opplysningsplikt. Før bindende avtale inngås oppfordres interessenter til å innhente komplett informasjon fra meglerforetaket, selger eller utleier.












































