Bildegalleri

Kjøkkenet er et luftig rom som ligger adskilt fra stuen.
Delikat oppusset 4-roms med flott spisekjøkken, lekkert bad og solrik balkong. Varmtvann inkl. - Ingen dok.avgift
Nøkkelinfo
- Boligtype
- Leilighet
- Eieform
- Andel
- Soverom
- 3
- Internt bruksareal
- 90 m² (BRA-i)
- Bruksareal
- 96 m²
- Eksternt bruksareal
- 6 m² (BRA-e)
- Balkong/Terrasse
- 10 m² (TBA)
- Etasje
- 2
- Byggeår
- 1978
- Energimerking
- E - Rød
- Rom
- 4
- Tomteareal
- 9 651 m² (eiet)
- Boligselgerforsikring
- Ja
Fasiliteter
Om boligen
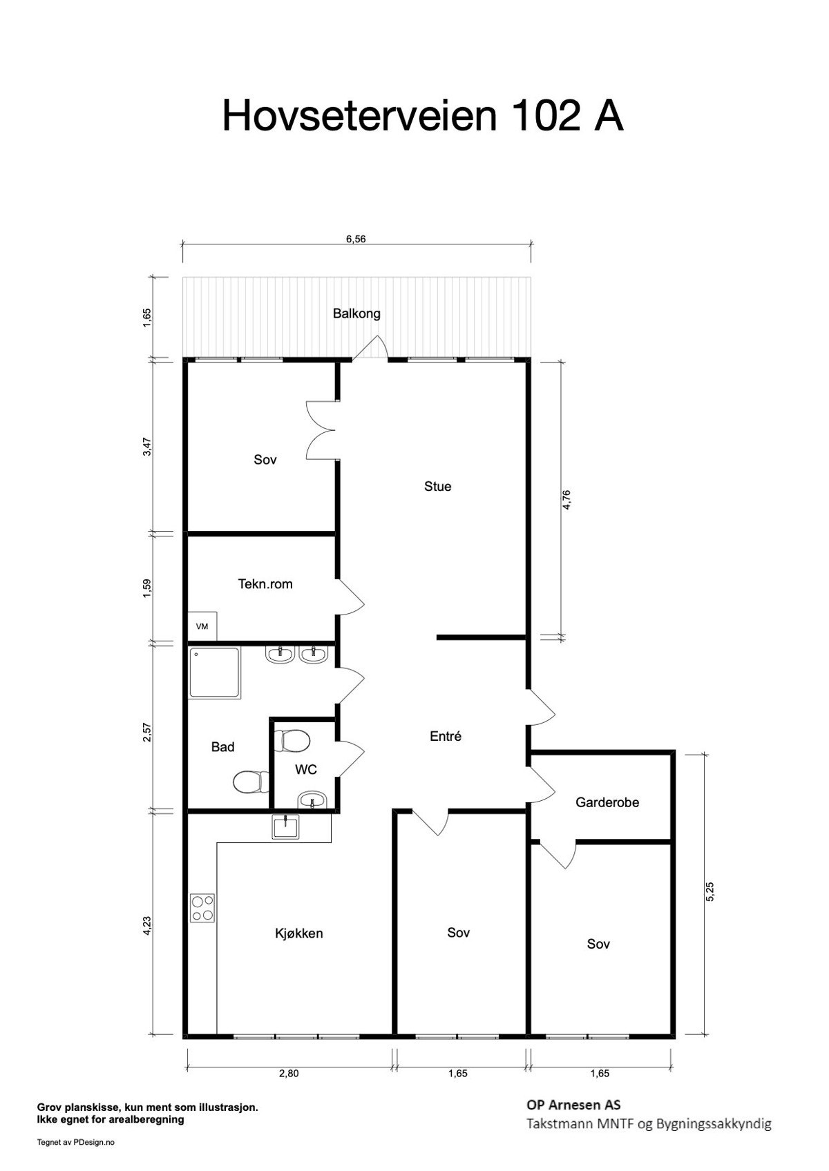
Dette er en delikat 4-roms andelsleilighet i andre etasje. Leiligheten har gjennomgående planløsning, og fra stuen er det utgang til en sydvendt, solrik balkong på ca. 10 kvm som var ny i 2014/15. Borettslaget fremstår som velholdt og har en rekke fasiliteter til felles hygge som blant annet takterrasser, hybler, trimrom, badstue, bibliotek, vaskeri, samt serverings- og festlokale.
Leiligheten ble ombygd og pusset opp i 2021 med nytt enstavs laminatgulv, nye vegger og overflatebehandling, innerdører, et lekkert bad med regndusj og et flott, velutstyrt spisekjøkken. Videre er det entré med skyvedørsgarderobe, wc og tre soverom. Varmtvann kommer fra felles anlegg, og det er opplegg for vaskemaskin i teknisk rom. 2 boder medfølger.
Salgsoppgaven beskriver vesentlig og lovpålagt informasjon om eiendommen
Se komplett salgsoppgaveNyttige lenker
Nærområdet

PrivatMegleren Scenario
Prisstatistikk
Hovseterveien 102A
på annonsen
prisantydning per kvadratmeter
Prisfordeling
Pris per m² ligger 13 135 kr under snittet for leiligheter i Røa.
Grafen viser antall leiligheter solgt i Røa siste året fordelt på pris per m² - totalt 487 leiligheter
Antall boliger
Kvadratmeterpris tilsvarer prisantydning pluss fellesgjeld per kvadratmeter (p-rom eller BRA-i). Prisene i grafen er avrundet til nærmeste 1000 kr.
Annonseinformasjon
| FINN-kode | 365425655 |
|---|---|
| Sist endret | 01. sep. 2024 10:14 |
| Referanse | 117240051 |
Annonsene kan være mangelfulle i forhold til lovpålagt opplysningsplikt. Før bindende avtale inngås oppfordres interessenter til å innhente komplett informasjon fra meglerforetaket, selger eller utleier.













































