Bildegalleri

Cecilia Johansen v/ EIE Løren ønsker velkommen til Frydenbergveien 52!
Solgt
Frydenberg / Løren
Lys og hyggelig 2-roms i 6. etg | Fyring, varmtvann og internett inkl | Perfekt førstegangskjøp | Garasje*
Prisantydning3 950 000 kr
Nøkkelinfo
- Boligtype
- Leilighet
- Eieform
- Andel
- Soverom
- 1
- Internt bruksareal
- 31 m² (BRA-i)
- Bruksareal
- 35 m²
- Eksternt bruksareal
- 4 m² (BRA-e)
- Balkong/Terrasse
- 6 m² (TBA)
- Etasje
- 6
- Byggeår
- 2007
- Energimerking
- D - Mørkegrønn
- Rom
- 2
- Tomteareal
- 938 m² (eiet)
Fasiliteter
Balkong/Terrasse
Garasje/P-plass
Heis
Offentlig vann/kloakk
Sentralt
Bredbåndstilknytning
Moderne
Rolig
Om boligen
Cecilia Johansen v/ EIE Løren ønsker velkommen til Frydenbergveien 52!
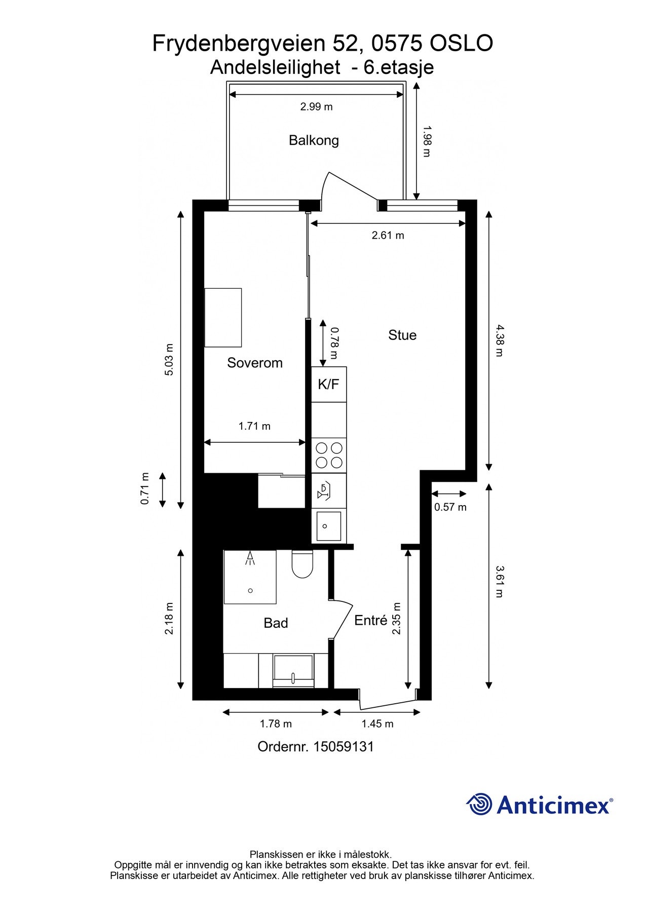
Leiligheten ligger i byggets 6.etasje med heisadkomst, og har en arealeffektiv og fin planløsning. Boligen inneholder entré, stue/kjøkken, bad og et soverom. Det er utgang fra stue til en solrik balkong på 6 m².
Her bor du sentralt til på Frydenberg/Løren med kort gangavstand til Løren T-banestasjon og alt hva Løren har å tilby. Det er i tillegg kort vei til skoler og barnehager.
- Meget attraktiv beliggenhet på Frydenberg/Løren
- Innbydende stue med store vindusflater
- Tidløst kjøkken i åpen løsning
- Flislagt bad med gulvvarme og opplegg for vaskemaskin
- Varmtvann, fyring og strøm a-konto inkludert
- Kjellerbod på 4 m²
- Mulighet for kjøp av parkeringsplass til beboerpris fra kun kr. 300 000,-*
- Mulighet for leie av parkeringsplass
- Ingen forkjøpsrett og ingen dok.avg!
Leiligheten ligger i byggets 6.etasje med heisadkomst, og har en arealeffektiv og fin planløsning. Boligen inneholder entré, stue/kjøkken, bad og et soverom. Det er utgang fra stue til en solrik balkong på 6 m².
Her bor du sentralt til på Frydenberg/Løren med kort gangavstand til Løren T-banestasjon og alt hva Løren har å tilby. Det er i tillegg kort vei til skoler og barnehager.
- Meget attraktiv beliggenhet på Frydenberg/Løren
- Innbydende stue med store vindusflater
- Tidløst kjøkken i åpen løsning
- Flislagt bad med gulvvarme og opplegg for vaskemaskin
- Varmtvann, fyring og strøm a-konto inkludert
- Kjellerbod på 4 m²
- Mulighet for kjøp av parkeringsplass til beboerpris fra kun kr. 300 000,-*
- Mulighet for leie av parkeringsplass
- Ingen forkjøpsrett og ingen dok.avg!
NB: Knappen for å vise hele beskrivelsen har kun en visuell effekt.
NB: Knappen for å vise hele beskrivelsen har kun en visuell effekt.
Salgsoppgaven beskriver vesentlig og lovpålagt informasjon om eiendommen
Se komplett salgsoppgaveNyttige lenker
Nærområdet
EIE eiendomsmegling Løren
Annonseinformasjon
| FINN-kode | 366804056 |
|---|---|
| Sist endret | 03. mars 2025 13:18 |
| Referanse | 71240205 |
Annonsene kan være mangelfulle i forhold til lovpålagt opplysningsplikt. Før bindende avtale inngås oppfordres interessenter til å innhente komplett informasjon fra meglerforetaket, selger eller utleier.

































