Bildegalleri

Velkommen til Sigurd Hoels vei 51!
Solgt
ENSJØ / TIEDEMANNSBYEN
Nyere og skjermet 3-roms fra 2016! Garasje m/lader. Nydelig balkong med utsikt. Heis. Oppvarming og internett inkludert!
Prisantydning6 600 000 kr
Nøkkelinfo
- Boligtype
- Leilighet
- Eieform
- Selveier
- Soverom
- 2
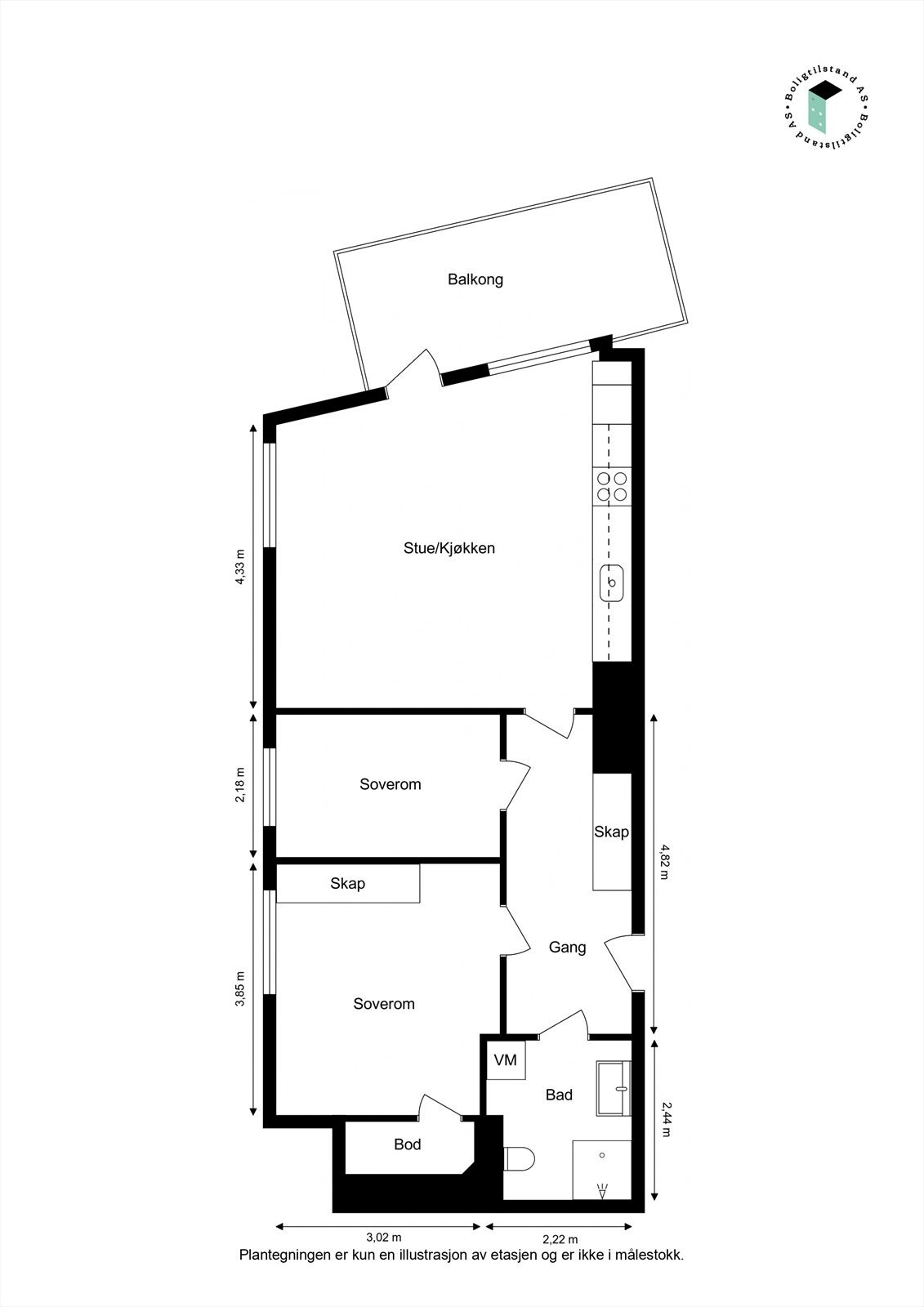
- Internt bruksareal
- 66 m² (BRA-i)
- Bruksareal
- 74 m²
- Eksternt bruksareal
- 8 m² (BRA-e)
- Balkong/Terrasse
- 11 m² (TBA)
- Etasje
- 6
- Byggeår
- 2016
- Energimerking
- B - Mørkegrønn
- Rom
- 3
- Tomteareal
- 6 779 m² (eiet)
Fasiliteter
Balkong/Terrasse
Barnevennlig
Bredbåndstilknytning
Garasje/P-plass
Heis
Kjæledyr tillatt
Kabel-TV
Offentlig vann/kloakk
Parkett
Rolig
Sentralt
Utsikt
Vaktmester-/vektertjeneste
Turterreng
Lademulighet
Balansert ventilasjon
Om boligen
Velkommen til Sigurd Hoels vei 51 - en lekker 3-roms hjørneleilighet!
Kvaliteter:
- Nybygg fra 2016
- 6. etasje m/heis
- Direkte adkomst til garasjeplass med el-bil lader i kjeller
- Herlig balkong på hele 11 kvm med nydelig utsikt
- Luftig hjørnestue med åpen kjøkkenløsning
- 2 lyse og romslige soverom vendt mot bilfrie grøntarealer
- Moderne bad med gulvvarme og opplegg for vaskemaskin
- Innvendig bod og 2 eksterne boder
- Akonto varmtvann/fyring og internett inkludert i felleskostnader
Boligen ligger sentralt på Ensjø, et populært område i sterk vekst og utvikling. Boligens flotte balkong er spesielt idyllisk om sommeren med nydelige solforhold og vidstrakt utsikt mot resten av byen. Her bor man tilbaketrukket, men samtidig i umiddelbar nærhet til "alt" man trenger i hverdagen!
Kvaliteter:
- Nybygg fra 2016
- 6. etasje m/heis
- Direkte adkomst til garasjeplass med el-bil lader i kjeller
- Herlig balkong på hele 11 kvm med nydelig utsikt
- Luftig hjørnestue med åpen kjøkkenløsning
- 2 lyse og romslige soverom vendt mot bilfrie grøntarealer
- Moderne bad med gulvvarme og opplegg for vaskemaskin
- Innvendig bod og 2 eksterne boder
- Akonto varmtvann/fyring og internett inkludert i felleskostnader
Boligen ligger sentralt på Ensjø, et populært område i sterk vekst og utvikling. Boligens flotte balkong er spesielt idyllisk om sommeren med nydelige solforhold og vidstrakt utsikt mot resten av byen. Her bor man tilbaketrukket, men samtidig i umiddelbar nærhet til "alt" man trenger i hverdagen!
NB: Knappen for å vise hele beskrivelsen har kun en visuell effekt.
NB: Knappen for å vise hele beskrivelsen har kun en visuell effekt.
Salgsoppgaven beskriver vesentlig og lovpålagt informasjon om eiendommen
Se komplett salgsoppgaveNyttige lenker
Nærområdet
Aktiv Gamle Oslo/Bjørvika
Prisstatistikk
Sigurd Hoels vei 51
3 718 klikk
på annonsen
100 000 kr
prisantydning per kvadratmeter
Prisfordeling
Pris per m² ligger 4 000 kr under snittet for leiligheter i Gamle Oslo.
Grafen viser antall leiligheter solgt i Gamle Oslo siste året fordelt på pris per m² - totalt 2 086 leiligheter
Antall boliger
Kvadratmeterpris tilsvarer prisantydning pluss fellesgjeld per kvadratmeter (p-rom eller BRA-i). Prisene i grafen er avrundet til nærmeste 1000 kr.
Annonseinformasjon
| FINN-kode | 367184148 |
|---|---|
| Sist endret | 05. sep. 2024 19:09 |
| Referanse | 1002240147 |
Annonsene kan være mangelfulle i forhold til lovpålagt opplysningsplikt. Før bindende avtale inngås oppfordres interessenter til å innhente komplett informasjon fra meglerforetaket, selger eller utleier.






































