Bildegalleri

Velkommen til Brekkeveien 12! 4-roms toppleilighet med stor takterrasse og utsikt
Solgt
Brekke/Frysja - sentralt + v/marka
Sjelden sjanse! Solrik toppleilighet med heis, 2 x garasjeplasser, 2 bad og vidunderlig terrasse med hyggelig utsyn.
Prisantydning13 250 000 kr
Nøkkelinfo
- Boligtype
- Leilighet
- Eieform
- Selveier
- Soverom
- 3
- Internt bruksareal
- 108 m² (BRA-i)
- Bruksareal
- 115 m²
- Eksternt bruksareal
- 7 m² (BRA-e)
- Balkong/Terrasse
- 48 m² (TBA)
- Etasje
- 5
- Byggeår
- 2011
- Energimerking
- D - Mørkegrønn
- Rom
- 5
- Tomteareal
- 4 842 m² (eiet)
Fasiliteter
Balkong/Terrasse
Garasje/P-plass
Hage
Heis
Bademulighet
Turterreng
Lademulighet
Om boligen
Sjelden mulighet i populært sameie med flott beliggenhet, med umiddelbar adgang til flotte turmuligheter i marka. Lysløypene starter i gåavstand fra leiligheten og det er gangavstand til badeplasser, matbutikker, skole, off. komm. og flere andre servicetilbud. I Frysjaparken er det et stadig voksende servicetilbud og nabolaget kan allerede nyte godt av Grains, Meny, Floriss, Apotek, Sushi med mer.
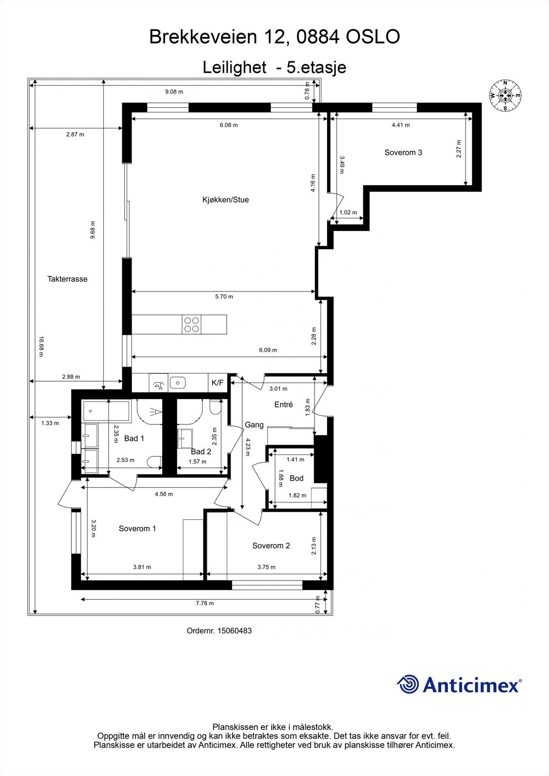
Leiligheten ligger flott til i toppetasjen. Det er god planløsning med romslig og lys stue/kjøkkendel, 3 soverom, 2 bad og innvendig bod. Utgang til en herlig terrasse som er delvis overbygget, noe som forlenger utsesesongen. Meget gode solforhold fra ca. kl.14 til solnedgang, men det er også deler av balkongen som har morgensol. 2 romslige garasjeplasser med tilhørende boder.
Velkommen!
Leiligheten ligger flott til i toppetasjen. Det er god planløsning med romslig og lys stue/kjøkkendel, 3 soverom, 2 bad og innvendig bod. Utgang til en herlig terrasse som er delvis overbygget, noe som forlenger utsesesongen. Meget gode solforhold fra ca. kl.14 til solnedgang, men det er også deler av balkongen som har morgensol. 2 romslige garasjeplasser med tilhørende boder.
Velkommen!
NB: Knappen for å vise hele beskrivelsen har kun en visuell effekt.
NB: Knappen for å vise hele beskrivelsen har kun en visuell effekt.
Salgsoppgaven beskriver vesentlig og lovpålagt informasjon om eiendommen
Se komplett salgsoppgaveNyttige lenker
Nærområdet
Krogsveen Grefsen
Verdien av en god megler.
Annonseinformasjon
| FINN-kode | 367345802 |
|---|---|
| Sist endret | 21. jan. 2025 06:44 |
| Referanse | KR41.2474 |
Annonsene kan være mangelfulle i forhold til lovpålagt opplysningsplikt. Før bindende avtale inngås oppfordres interessenter til å innhente komplett informasjon fra meglerforetaket, selger eller utleier.


















































