Bildegalleri

- Velkommen til Ammerudhellinga 35, presentert av lokalmegler Shan Konesalingam v/EiendomsMegler1-
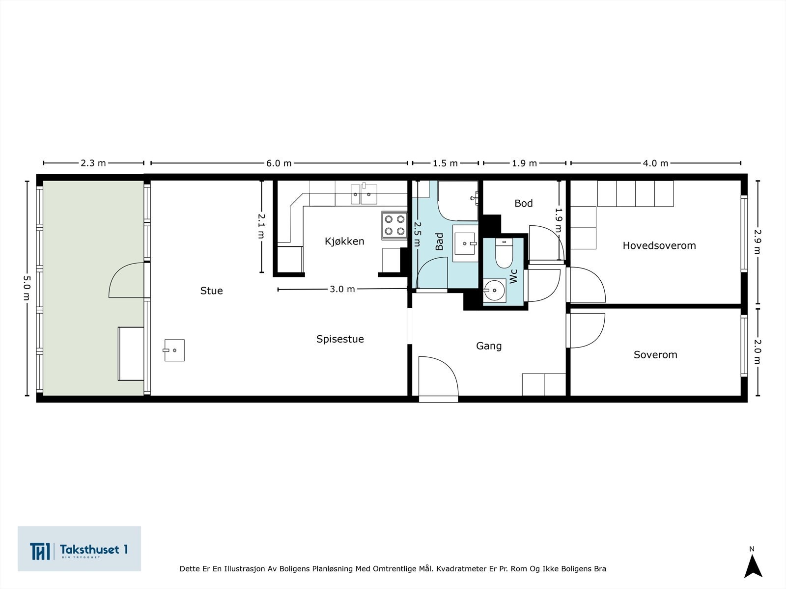
AMMERUD: 3-R med stor innglasset balkong på ca. 12 kvm |V.v & fyring inkl.| Kort vei til T-bane
Nøkkelinfo
- Boligtype
- Leilighet
- Eieform
- Andel
- Soverom
- 2
- Internt bruksareal
- 74 m² (BRA-i)
- Bruksareal
- 76 m²
- Eksternt bruksareal
- 2 m² (BRA-e)
- Balkong/Terrasse
- 13 m² (TBA)
- Etasje
- 2
- Byggeår
- 1965
- Energimerking
- E - Mørkegrønn
- Rom
- 3
- Tomteareal
- 13 717 m² (eiet)
Fasiliteter
Om boligen
Eiendommen ligger i et veldrevet borettslag, med nærhet til skoler, flere barnehager, samt kort vei til fasiliteter og servicetilbud.
Kort fortalt: Familievennlig leilighet
- Vestvendt innglasset balkong på ca.12 m²
- Lys og gjennomgående løsning
- Åpen stue-/kjøkkenløsning
- Flislagt bad m/opplegg for v.maskin
- Separat wc-rom
- Innvendig og ekstern bod
- Heisadkomst
- Felles sykkelparkering og vaskeri
- Etablert og populært boligområde
- Godt kollektivtilbud
Ta kontakt for en hyggelig prat!
Salgsoppgaven beskriver vesentlig og lovpålagt informasjon om eiendommen
Se komplett salgsoppgaveNyttige lenker
Nærområdet
EiendomsMegler 1 Sør-Norge avd Oslo
Prisstatistikk
Ammerudhellinga 35
på annonsen
prisantydning per kvadratmeter
Prisfordeling
Pris per m² ligger 23 529 kr under snittet for leiligheter i Grorud.
Grafen viser antall leiligheter solgt i Grorud siste året fordelt på pris per m² - totalt 448 leiligheter
Antall boliger
Kvadratmeterpris tilsvarer prisantydning pluss fellesgjeld per kvadratmeter (p-rom eller BRA-i). Prisene i grafen er avrundet til nærmeste 1000 kr.
Annonseinformasjon
| FINN-kode | 368174572 |
|---|---|
| Sist endret | 23. jan. 2025 21:06 |
| Referanse | 2801240053 |
Annonsene kan være mangelfulle i forhold til lovpålagt opplysningsplikt. Før bindende avtale inngås oppfordres interessenter til å innhente komplett informasjon fra meglerforetaket, selger eller utleier.









































