Bildegalleri

Velkommen til Schweigaards gate 84B! Presentert av Katrine Edvardsen v/ Aktiv Eiendom.
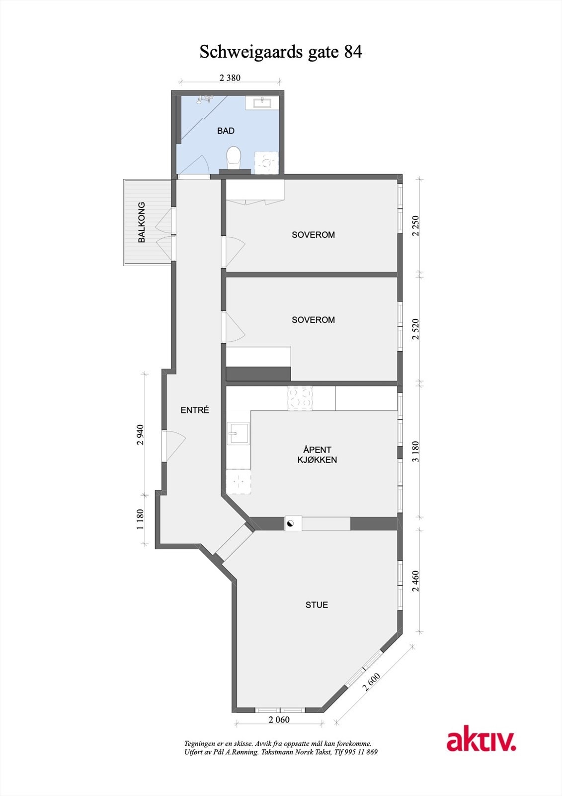
Klassisk, sjelfull og nyoppusset 3-roms m/balkong i 4. etg. - Generøs takhøyde, teglstein og store vinduer - Peisovn
Nøkkelinfo
- Boligtype
- Leilighet
- Eieform
- Andel
- Soverom
- 2
- Internt bruksareal
- 71 m² (BRA-i)
- Bruksareal
- 75 m²
- Eksternt bruksareal
- 4 m² (BRA-e)
- Balkong/Terrasse
- 3 m² (TBA)
- Etasje
- 4
- Byggeår
- 1895
- Energimerking
- G - Oransje
- Rom
- 3
- Tomteareal
- 512 m² (eiet)
Fasiliteter
Om boligen
Drømmer du om en klassisk leilighet med bøttevis av sjarm og sjel er dette virkelig et herlig eksemplar. Man føler den gode og koselige atmosfæren idet man setter foten innenfor døra. Den fine stuen med de store vinduene, gode takhøyden og teglsteinsveggen mot kjøkkenet vil nok begeistre deg. Din egen balkong gir deg lengsler til sol og sommer! Like utenfor døra finner du grønne lunger, uteservering, mat fra hele verden og badebrygger å nyte sommerdagene på.
- Balkong fra 2021
- Moderne stilrent kjøkken fra 2020
- Bad fra 2016
- 2 romslige soverom
- Varmtvann og fiberbredbånd inkl.
- Varmefolie i gulv i gang, stue og kjøkken
- 3 boder (loft, kjeller og trappeoppgang)
Salgsoppgaven beskriver vesentlig og lovpålagt informasjon om eiendommen
Se komplett salgsoppgaveNyttige lenker
Nærområdet
Aktiv Gamle Oslo/Bjørvika
Prisstatistikk
Schweigaards gate 84B
på annonsen
prisantydning per kvadratmeter
Prisfordeling
Pris per m² ligger 15 586 kr under snittet for leiligheter i Gamle Oslo.
Grafen viser antall leiligheter solgt i Gamle Oslo siste året fordelt på pris per m² - totalt 2 083 leiligheter
Antall boliger
Kvadratmeterpris tilsvarer prisantydning pluss fellesgjeld per kvadratmeter (p-rom eller BRA-i). Prisene i grafen er avrundet til nærmeste 1000 kr.
Annonseinformasjon
| FINN-kode | 368471323 |
|---|---|
| Sist endret | 28. jan. 2025 07:40 |
| Referanse | 1002240254 |
Annonsene kan være mangelfulle i forhold til lovpålagt opplysningsplikt. Før bindende avtale inngås oppfordres interessenter til å innhente komplett informasjon fra meglerforetaket, selger eller utleier.


































