Bildegalleri

Velkommen til lekre Fernanda Nissens gate 10B - Presentert av Silje Heggø v/ Nordvik!
Solgt
NYDALEN
Lekker 3-roms fra 2014 - Stor vestvendt balkong på 15m² - Garasjeplass m/lader - Á-konto fyring & V.vann inkl. - Heis
Prisantydning9 350 000 kr
Nøkkelinfo
- Boligtype
- Leilighet
- Eieform
- Selveier
- Soverom
- 2
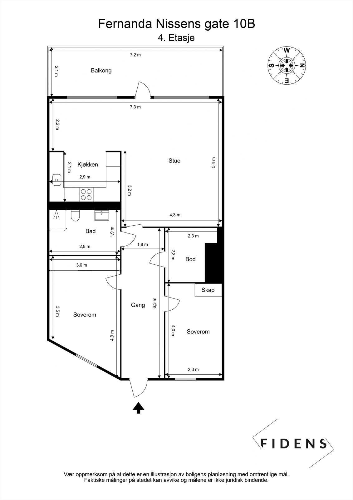
- Internt bruksareal
- 84 m² (BRA-i)
- Bruksareal
- 89 m²
- Eksternt bruksareal
- 5 m² (BRA-e)
- Balkong/Terrasse
- 15 m² (TBA)
- Etasje
- 5
- Byggeår
- 2014
- Energimerking
- C - Mørkegrønn
- Rom
- 3
- Tomteareal
- 6 640 m² (eiet)
Fasiliteter
Balkong/Terrasse
Barnevennlig
Bredbåndstilknytning
Garasje/P-plass
Heis
Kjæledyr tillatt
Kabel-TV
Parkett
Rolig
Sentralt
Utsikt
Vaktmester-/vektertjeneste
Lademulighet
Balansert ventilasjon
Om boligen
Velkommen til lekre Fernanda Nissens gate 10B! En innflytningsklar og moderne 3-roms i bygg fra 2014. Her bor du høyt og luftig i byggets 5. etasje med utgang til en stor, solrik balkong vendt ut rolige og hyggelig grøntområder. Romslig og lys planløsning som byr på en sosial romløsning med delvis åpen stue og kjøkken, 2 gode soverom og ett flott bad. Leiligheten ligger usjenert innerst i en blindvei, med flott utsikt til elv og uten trafikkstøy.
Her bor du i sentralt ved populære Nydalen, med kort vei til et omfattende service- og kollektivtilbud.
FASILITETER
- Store vindusflater
- Balansert ventilasjon
- Garasjeplass med lader
- Vestvendt balkong på 15m²
- Gjennomgående planløsning
- Bygg fra 2014 med heisadkomst
- Fyring og v.vann (a-konto), TV og internett inkl.
Her bor du i sentralt ved populære Nydalen, med kort vei til et omfattende service- og kollektivtilbud.
FASILITETER
- Store vindusflater
- Balansert ventilasjon
- Garasjeplass med lader
- Vestvendt balkong på 15m²
- Gjennomgående planløsning
- Bygg fra 2014 med heisadkomst
- Fyring og v.vann (a-konto), TV og internett inkl.
NB: Knappen for å vise hele beskrivelsen har kun en visuell effekt.
NB: Knappen for å vise hele beskrivelsen har kun en visuell effekt.
Salgsoppgaven beskriver vesentlig og lovpålagt informasjon om eiendommen
Se komplett salgsoppgaveNyttige lenker
Nærområdet
Nordvik Bjørvika
Vi vet hva det er verdt
Annonseinformasjon
| FINN-kode | 371512043 |
|---|---|
| Sist endret | 11. okt. 2024 15:14 |
| Referanse | 34-0128/24 |
Annonsene kan være mangelfulle i forhold til lovpålagt opplysningsplikt. Før bindende avtale inngås oppfordres interessenter til å innhente komplett informasjon fra meglerforetaket, selger eller utleier.





















































