Bildegalleri

Velkommen til John Strandruds vei 7 v/Håkon Sæther i PrivatMegleren Bærum
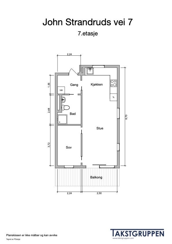
Lys og høytliggende 2-roms endeleilighet m/ 10 kvm balkong - Oppvarming inkl. - Takterrasse - Heis - 2 store boder
Nøkkelinfo
- Boligtype
- Leilighet
- Eieform
- Selveier
- Soverom
- 1
- Internt bruksareal
- 41 m² (BRA-i)
- Bruksareal
- 52 m²
- Eksternt bruksareal
- 11 m² (BRA-e)
- Balkong/Terrasse
- 10 m² (TBA)
- Etasje
- 7
- Byggeår
- 2015
- Energimerking
- C - Mørkegrønn
- Tomteareal
- 7 618 m² (eiet)
- Boligselgerforsikring
- Ja
Fasiliteter
Om boligen
Velkommen til visning av denne flotte og funksjonelle 2-roms hjørneleiligheten i John Strandruds vei 7. Leiligheten ligger i 7. etasje og byr på meget fine lysforhold og flott utsikt. Den har en attraktiv beliggenhet på Fornebu, med kort vei til butikker, offentlig transport, naturskjønne områder og sjøen.
Med en solrik balkong på 10 kvm og vinduer i tre retninger, oppleves boligen som lys og romslig. I tillegg følger det med to store kjellerboder på tilsammen 11 kvm. Sameiet har også en felles takterrasse som beboerne kan nyte.
Bygget fra 2015 har heisadkomst fra både inngangspartiet og kjelleren, noe som gir enkel tilgang til alle fasiliteter. *
Energiøkonomiske løsninger som vannbåren gulvvarme og varmtvann er inkludert i felleskostnadene.
Velkommen til en hyggelig visning!
Salgsoppgaven beskriver vesentlig og lovpålagt informasjon om eiendommen
Se komplett salgsoppgaveNyttige lenker
Nærområdet
PrivatMegleren Bærum
Annonsene kan være mangelfulle i forhold til lovpålagt opplysningsplikt. Før bindende avtale inngås oppfordres interessenter til å innhente komplett informasjon fra meglerforetaket, selger eller utleier.

























